Voluntari 3 camere 89 mp 7 2025

Esti in cautarea unei locuinte noi, spatioase si moderne? SVN Residentialist iti prezinta spre inchiriere un apartament de 3 camere situat in complexul Residence 5 Pipera, chiar langa Pipera Plaza. Finalizat in 2025, apartamentul este la prima inchiriere, oferind confortul si siguranta unei constructii de ultima generatie.

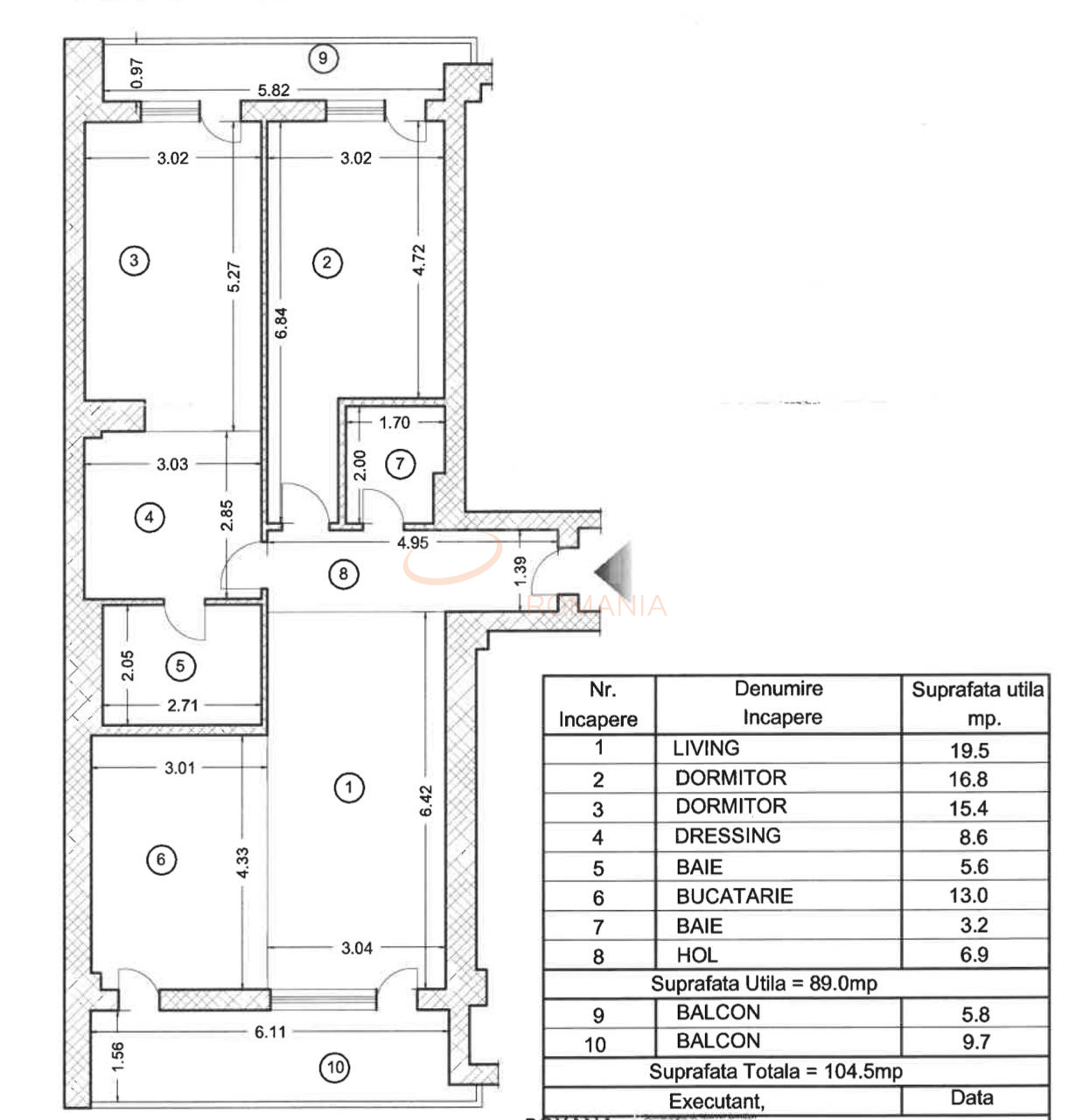
Detalii cheie:

Suprafata generoasa: 104.5 mp utili, configuratie inteligenta si luminoasa.
Etaj 7/8: Vedere mixta (Est si Vest), beneficiind de lumina naturala pe tot parcursul zilei.
Compartimentare: Living cu bucatarie open-space, dormitor matrimonial cu dressing si baie proprie, plus o a doua baie si un dormitor secundar.
Outdoor: Doua balcoane deschise (9.7 mp si 5.8 mp) ideale pentru relaxare.
Confort termic: Centrala proprie, calorifere, totul nou.

Extra: Inclus un loc de parcare individual in subteran (nivel -2).

Pret: 1200 Euro/luna (TVA inclus).
Conditii: 1 luna avans + 1 luna garantie.

An constructie 2025

Suprafata construita 120.17 mp

Suprafata utila 89 mp

Suprafata terasa 15.5 mp

Regim Inaltime 7 / 8

Etaj 7

Nr. camere 3 camere

Nr. bai 2

Nr. balcoane 2 balcoane

Confort 1

Compartimentare Decomandat

Tip constructie In bloc

Status constructie Finalizat

Disponibila incepand cu 2026-03-25

Judet Ilfov

Oras/ Sector Est

Zona Voluntari

Gps lat 44.488460

Gps lng 26.131165

Interfon

Sistem de alarma

Geamuri termopan

Repartitoare

Parchet

Apometre

Gresie

Loc parcare subteran

Faianta

Gaz

Calorifere

Incalzire proprie

Mobilat

Aer conditionat

Bucatarie mobilata

Lift

Broker Imobiliar

Nicusor Gavrila , Consultant imobiliar Vezi toate proprietatile

0317100200

Apartament 3 Camere I Residence 5 Pipera I Prima Inchiriere

Pret inchiriere
1.200 € /luna

Telefon Consultant imobiliar
0317100200

Cod: REA1028434

Proprietati similare

Ilfov, Nord, Tunari

Apartament, 3 camere

75 mp 2 2025

1.200 EUR/luna

Detalii

Ilfov, Nord, Corbeanca

Apartament, 3 camere

124 mp P 2025

1.300 EUR/luna

Detalii
Apartamente 3 camere inchiriate in Est, Ilfov Apartamente 3 camere de inchiriere in Est, Ilfov

Afla primul de cele mai bune oferte
inainte sa ajunga pe piata

Aboneaza-te la newsletter

Aboneaza-te la notificari