Aviatiei 1 camera 35 mp 3 2018

SVN Romania va ofera spre inchiriere un studio deosebit intr-un bloc nou finalizat in anul 2018, in cartier Baneasa in imediata apropiere de cartierul Aviatiei si la 10 minute de parcul Herastrau. Acessul este foarte facil din zona Metav/ Bihariei , dar si dinspre cartier Henri Coanda/Pipera, aflat a intersectia strazilor Nisipoasa si Salubritatii.

Zona este in plina dezvoltare, fiind in proiect si acces direct din Aviatiei.
Aceasta proprietate este excelenta pentru locuit deoarece este intr-o zona ce dispune si de zone verzi, este linistata cu vedere libera de la balcon, ferita de poluare si zgomotul orasului, dar cu acces imediat la zona de business si comerciala a cartierelor Aviatiei, Baneasa si Pipera.

Studioul este complet mobilat si utilat cu electrocasnice de cea mai buna calitate (aer conditionat, frigider, plita si cuptor electric, centrala Ariston).

Puteti dispune si de un loc de parcare suprateran acoperit pentru 50Euro suplimentar.

Pentru mai multe detalii suplimentare sau vizionari, ne puteti contacta chiar acum!

An constructie 2018

Suprafata construita 42 mp

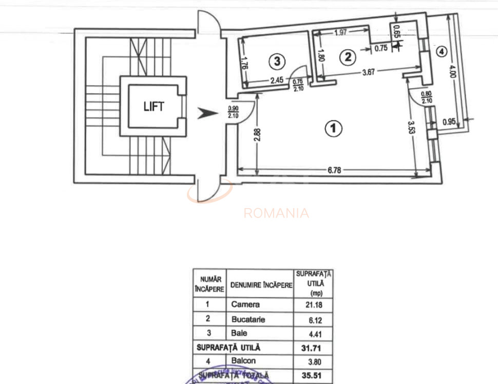
Suprafata utila 35 mp

Suprafata terasa 3.8 mp

Regim Inaltime 3 / 4

Etaj 3

Nr. camere 1 camera

Nr. bai 1

Nr. balcoane 1 balcon

Confort 1

Compartimentare Semidecomandat

Tip constructie Bloc

Status constructie Finalizat

Disponibila incepand cu 2026-06-08

Judet Bucuresti

Oras/ Sector Sector 1

Zona Aviatiei

Gps lat 44.492473

Gps lng 26.102272

Curent electric

Geamuri termopan

Parchet

Gresie

Telefon

Faianta

Gaz

Loc parcare exterior

Mobilat

Aer conditionat

Bucatarie mobilata

Broker Imobiliar

Ionut Ilie , Consultant imobiliar Vezi toate proprietatile

0317100200

Studio Aviatiei bloc nou mobilat cu parcare

Pret inchiriere
420 € /luna

Telefon Consultant imobiliar
0317100200

Cod: REA1013071

Proprietati similare

Bucuresti, Sector 1, P-ta Victoriei

Garsoniera

40 mp 2 1975

450 EUR/luna

Detalii

Bucuresti, Sector 1, P-ta Victoriei

Garsoniera

40 mp 2 1975

450 EUR/luna

Detalii

Bucuresti, Sector 3, Splaiul Unirii

Garsoniera

39 mp 3 1995

450 EUR/luna

Detalii
Apartamente 1 camera inchiriate in Aviatiei, Bucuresti Apartamente 1 camera de inchiriere in Aviatiei, Bucuresti

Afla primul de cele mai bune oferte
inainte sa ajunga pe piata

Aboneaza-te la newsletter

Aboneaza-te la notificari