Aviatiei 2 camere 50.45 mp 2 1985

SVN Romania va propune spre inchiriere un apartament de 2 camere situat in zona Aviatiei.

Acesta se inchiriaza complet mobilat si utilat asa cum este prezentat in fotografii.

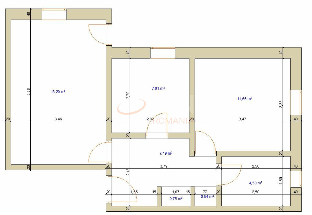
Apartamentul este situt la etajul 2/4, intr-un bloc de tip boutique din anul 1985, decomandat, cu o suprafata utila de 50 mp.

Dispune de o bucatarie complet mobilata si utilata, 2 unitati de aer conditionat, cabina de dus, spatii de depozitare, masina de spalat rufe, boiler.

Zona Aviatiei are magazine, restaurante si Promenada Mall in apropiere, plus acces rapid la metrou (Aurel Vlaicu/Pipera).

Este aproape de zona de birouri Pipera si de Parcul Herastrau, oferind atat facilitati urbane, cat si spatii verzi.

Statia de metrou Aurel Vlaicu fiind la doar 5 minute distanta pietonala si Pipera la 15 minute distanta pietonala.

Pentru mai multe informatii sau pentru programarea vizionarilor, contactul meu va sta la dispozitie.

***Vizionarea acestui imobil se face doar în baza semnarii unui acord de vizionare conform codului civil, art 2.096-2.102.

An constructie 1985

Suprafata construita 58.01 mp

Suprafata utila 50.45 mp

Regim Inaltime 2 / 4

Etaj 2

Nr. camere 2 camere

Nr. bai 1

Nr. balcoane 0 balcoane

Confort 1

Compartimentare Decomandat

Tip constructie Bloc

Status constructie Finalizat

Disponibila incepand cu 2026-05-04

Judet Bucuresti

Oras/ Sector Sector 1

Zona Aviatiei

Gps lat 44.480559

Gps lng 26.099087

Interfon

Internet Wireless

Internet prin fibra optica

Internet prin cablu

Curent electric

Cablu TV

Supraveghere video

Geamuri termopan

Parchet

Apometre

Gresie

Telefon

Faianta

Gaz

Calorifere

Mobilat

Aer conditionat

Bucatarie mobilata

Broker Imobiliar

Ramona Badea , Consultant imobiliar Vezi toate proprietatile

0317100200

Apartament 2 camere I Aviatiei I de inchiriat

Pret inchiriere
700 € /luna

Telefon Consultant imobiliar
0317100200

Cod: REA1028457

Proprietati similare

Bucuresti, Aviatiei

Apartament, 2 camere

54 mp 3 2005

640 EUR/luna

Detalii

Bucuresti, Aviatiei

Apartament, 2 camere

53 mp P 1986

750 EUR/luna

Detalii

Bucuresti, Aviatiei

Apartament, 2 camere

54 mp 3 1985

690 EUR/luna

Detalii

Bucuresti, Aviatiei

Apartament, 2 camere

58 mp 2 1986

770 EUR/luna

Detalii

Bucuresti, Herastrau

Apartament, 2 camere

54 mp 4 2017

700 EUR/luna

Detalii

Bucuresti, Aviatiei

2 camere cu loc parcare exterior inclus

55 mp P 2021

725 EUR/luna

Detalii

Bucuresti, Floreasca

2 camere cu loc parcare exterior inclus

50 mp 3 2022

650 EUR/luna

Detalii

Bucuresti, Pipera

2 camere cu loc parcare exterior inclus

50.26 mp 1 2023

750 EUR/luna

Detalii
Apartamente 2 camere inchiriate in Aviatiei, Bucuresti Apartamente 2 camere de inchiriere in Aviatiei, Bucuresti

Afla primul de cele mai bune oferte
inainte sa ajunga pe piata

Aboneaza-te la newsletter

Aboneaza-te la notificari