Herastrau 3 camere 95.58 mp 1 2000

SVN Romania va propune spre inchiriere un apartament situat in zona Cartierul Francez, una dintre cele mai exclusiviste si apreciate zone rezidentiale din nordul Bucurestiului.

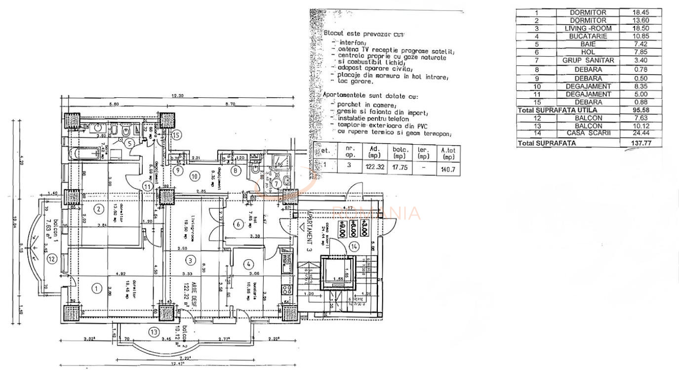
Apartamentul este amplasat la etajul 1 din 5 si are o suprafata utila de 95,58 mp, la care se adauga doua balcoane generoase de 10,12 mp si 7,63 mp. Locuinta este compartimentata eficient si dispune de trei dormitoare, o bucatarie, doua bai si multiple spatii de depozitare, ceea ce o face potrivita pentru o familie sau pentru persoane care isi doresc un spatiu generos si bine organizat.

Apartamentul beneficiaza de centrala termica proprie si se inchiriaza exact asa cum este prezentat in fotografii, complet mobilat si utilat, fiind pregatit pentru mutare imediata. In pretul chiriei este inclus si un loc de parcare, un avantaj important pentru aceasta zona.

Zona Cartierul Francez este una dintre cele mai cautate din Bucuresti, datorita accesului rapid catre Parcul Herastrau, aflat la aproximativ 5 minute de mers pe jos. In apropiere se regasesc numeroase restaurante si cafenele apreciate, precum si centre de fitness, supermarketuri si farmacii. De asemenea, zona beneficiaza de acces rapid catre scoli si gradinite internationale, clinici medicale private si multiple mijloace de transport in comun.

Pentru alte detalii sau stabilirea unei vizionari contactul meu va sta la dispozitie.

***Vizionarea acestui imobil se face doar în baza semnarii unui acord de vizionare conform codului civil, art 2.096-2.102.

An constructie 2000

Suprafata construita 137.77 mp

Suprafata utila 95.58 mp

Suprafata terasa 17.48 mp

Regim Inaltime 1 / 5

Etaj 1

Nr. camere 3 camere

Nr. bai 2

Nr. balcoane 2 balcoane

Confort 1

Compartimentare Decomandat

Tip constructie Bloc

Status constructie Finalizat

Disponibila incepand cu 2026-03-12

Judet Bucuresti

Oras/ Sector Sector 1

Zona Herastrau

Gps lat 44.482124

Gps lng 26.092325

Nr. terase 1

Internet prin fibra optica

Curent electric

Internet Wireless

Interfon

Geamuri termopan

Repartitoare

Balcon inchis

Parchet

Gresie

Telefon

Loc parcare subteran

Faianta

Gaz

Incalzire proprie

Mobilat

Aer conditionat

Bucatarie mobilata

Lift

Cablu TV

Supraveghere video

Sistem de alarma

Supraveghere 24/7

Internet prin cablu

Detector de gaze

Apometre

Boxa

Calorifere

WC serviciu

Broker Imobiliar

Anamaria Enoiu , Consultant imobiliar Vezi toate proprietatile

0317100200

Apartament 3 camere I Cartierul Francez I Herastrau

Pret inchiriere
1.400 € /luna

Telefon Consultant imobiliar
0317100200

Cod: REA0130911

Proprietati similare

Bucuresti, Herastrau

3 camere cu loc parcare subteran inclus

79 mp 2 2022

1.500 EUR/luna

Detalii

Bucuresti, Herastrau

3 camere cu loc parcare subteran inclus

113 mp 2 2017

1.500 EUR/luna

Detalii

Bucuresti, Aviatiei

Apartament, 3 camere

62 mp 1 2024

1.498 EUR/luna

Detalii

Bucuresti, Herastrau

Apartament, 3 camere

90 mp 3 2020

1.400 EUR/luna

Detalii
Exclusiv Discount

Bucuresti, Aviatiei

3 camere cu loc parcare subteran inclus

83.7 mp 1 2020

1.500 EUR/luna

Detalii
Exclusiv Discount

Bucuresti, Pipera

3 camere cu loc parcare subteran inclus

83.7 mp 1 2020

1.500 EUR/luna

Detalii
Exclusiv Discount

Bucuresti, Floreasca, Barbu Vacarescu

3 camere cu loc parcare subteran inclus

95 mp 14 2009

1.300 EUR/luna

Detalii

Bucuresti, Pipera

Apartament, 3 camere

72 mp 3 2025

1.300 EUR/luna

Detalii
Apartamente 3 camere inchiriate in Herastrau, Bucuresti Apartamente 3 camere de inchiriere in Herastrau, Bucuresti

Afla primul de cele mai bune oferte
inainte sa ajunga pe piata

Aboneaza-te la newsletter

Aboneaza-te la notificari