Kiseleff 2 camere 55 mp D 1930

SVN va propune spre inchiriere un apartament cu 2 camere situat in zona Kiseleff.

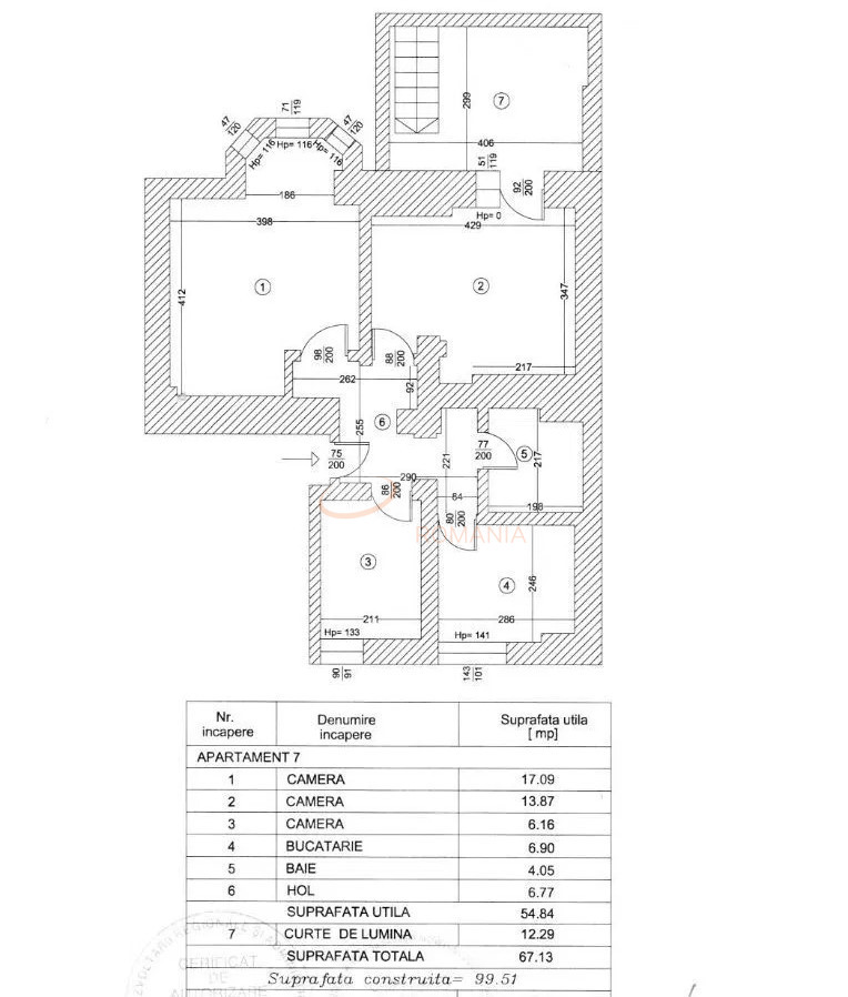
Apartamentul este situat la demisol si are o suprafata utila de 55 mp compartimentat astfel:

-camera 17.09 mp
-camera 13.87 mp
-camera 6.16 mp
-bucatarie 6.90 mp
-baie 4.05 mp
-hol 6.77 mp
-terasa 12.29 mp

Proprietatea a fost consolidata in totalitate. Cu scopul de a pastra cat mai mult din aspectul original, fatadele au beneficiat de o coloristica specifica perioadei in care a fost construit imobilul, respectiv inceputul anilor 30.
Prin inlocuirea tamplariei originale cu tamplarie PVC cu geam termopan s-a asigurat izolarea termica si fonica. In acelasi sens, al necesitatii actuale de a limita transferul termic, fatadele s-au izolat cu 10 cm de termoizolatie cu un material izolant special. Apartamentul are pardoselile acoperite cu parchet stratificat din stejar.
Confortul termic in apartament este asigurat de centrala termica in condensatie si sisteme de aer conditionat. Apartamentul beneficiaza de un control automatizat al incalzirii, racirii si iluminatului pentru eficientizarea acestora, prin micsorarea costurilor de intretinere. Sistemul BMS permite realizarea punctelor precizate mai sus printr-o aplicatie personalizata, care poate fi instalata pe telefon sau tableta. Iluminatul se face integral cu becuri tip LED.

Pentru mai multe detalii sau vizionari nu ezitati sa ne contactati!

An constructie 1930

Suprafata construita 68 mp

Suprafata utila 55 mp

Regim Inaltime D / 2

Etaj D

Nr. camere 2 camere

Nr. bai 1

Nr. balcoane 0 balcoane

Confort 1

Compartimentare Decomandat

Tip constructie Bloc

Status constructie Finalizat

Disponibila incepand cu 2026-03-31

Judet Bucuresti

Oras/ Sector Sector 1

Zona Kiseleff

Gps lat 44.459186

Gps lng 26.079744

Internet Wireless

Curent electric

Cablu TV

Geamuri termopan

Parchet

Gresie

Telefon

Faianta

Gaz

Calorifere

Incalzire proprie

Mobilat

Aer conditionat

Bucatarie mobilata

Broker Imobiliar

Iustina Dragu , Consultant imobiliar Vezi toate proprietatile

0317100200

Apartament 2 camere Kiseleff de inchiriat

Pret inchiriere + TVA
1.000 € /luna

Telefon Consultant imobiliar
0317100200

Cod: REA1028485

Proprietati similare

Bucuresti, Herastrau

2 camere cu loc parcare subteran inclus

63.22 mp 4 2008

1.000 EUR/luna

Detalii

Bucuresti, Sector 1, P-ta Victoriei

Apartament, 2 camere

55 mp 5 2020

1.050 EUR/luna

Detalii

Bucuresti, Dorobanti

2 camere cu loc parcare subteran inclus

86 mp 2 2003

900 EUR/luna

Detalii

Bucuresti, Floreasca

Apartament, 2 camere

41 mp 1 2021

1.050 EUR/luna

Detalii

Bucuresti, Floreasca

Apartament, 2 camere

41 mp 4 2022

1.100 EUR/luna

Detalii

Bucuresti, Floreasca

Apartament, 2 camere

68 mp P 2012

1.000 EUR/luna

Detalii

Bucuresti, Herastrau

2 camere cu loc parcare subteran inclus

65.64 mp 2 2008

1.000 EUR/luna

Detalii

Bucuresti, Aviatiei

2 camere cu loc parcare subteran inclus

65 mp 6 2018

950 EUR/luna

Detalii
Apartamente 2 camere inchiriate in Kiseleff, Bucuresti Apartamente 2 camere de inchiriere in Kiseleff, Bucuresti

Afla primul de cele mai bune oferte
inainte sa ajunga pe piata

Aboneaza-te la newsletter

Aboneaza-te la notificari