Pipera 4 camere 150 mp P 2020

SVN va propune spre inchiriere un apartament cu 4 camere situat in zona Pipera, la parterul unui ansamblu rezidential nou, ideal atat pentru rezidential, cat si pentru sediu de firma.

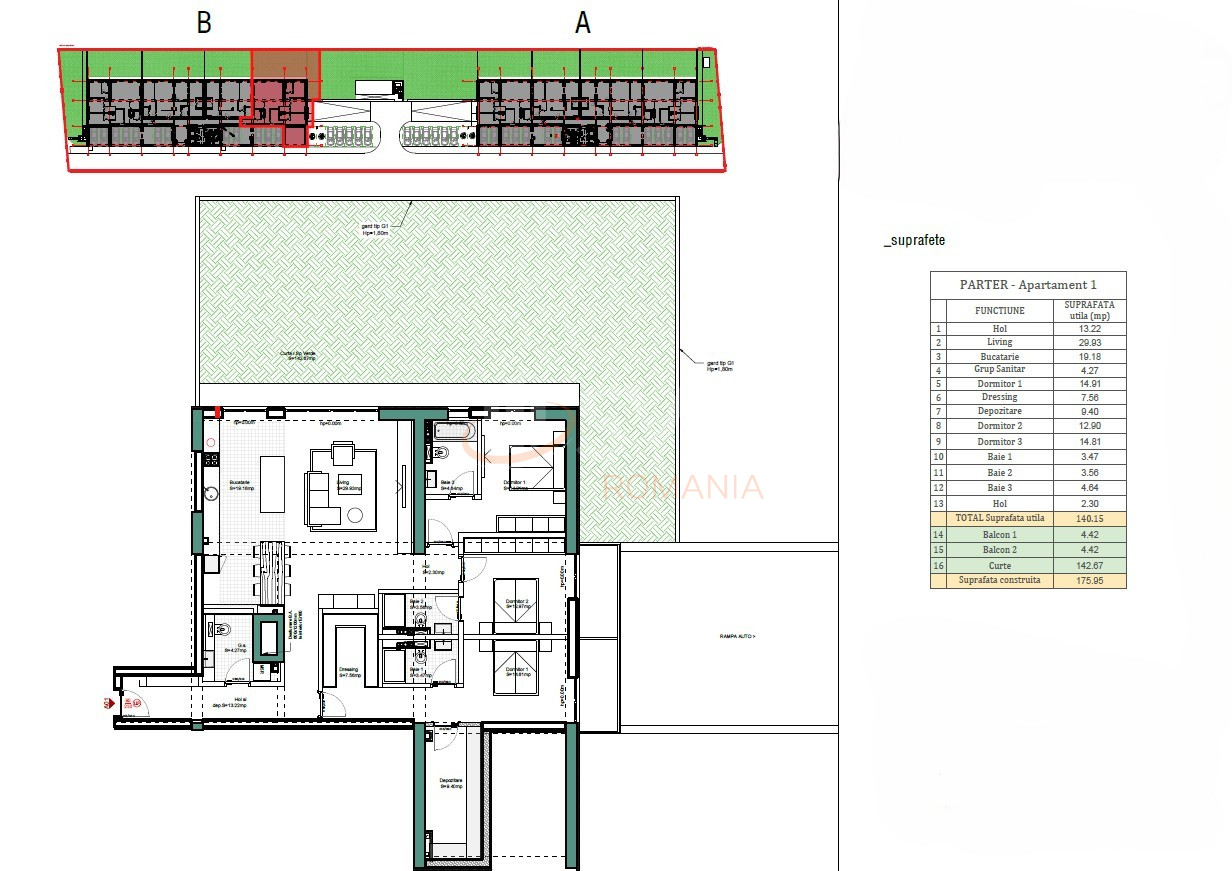
Apartamentul are o suprafata utila de 140 mp, compartimentata eficient pentru a raspunde oricarui tip de nevoie. Livingul spatios si luminos poate functiona atat ca zona de zi, cat si ca open-space de birouri, iar cele 3 camere pot fi utilizate drept dormitoare, sali de lucru sau birouri private.

Proprietatea beneficiaza de 2 balcoane de cate 4.4 mp si o curte proprie de 142 mp utili, ce poate fi transformata intr-o zona de relaxare, spatiu verde sau terasa pentru evenimente corporate.

Un avantaj semnificativ il reprezinta cele 4 grupuri sanitare, care asigura confort sporit atat pentru locuire, cat si pentru activitati de birou.

Te invitam sa programezi o vizionare pentru a descoperi personal toate avantajele acestui apartament.

An constructie 2020

Suprafata construita 310 mp

Suprafata utila 150 mp

Suprafata terasa 160

Regim Inaltime P / 7

Etaj P

Nr. camere 4 camere

Nr. bai 1

Nr. balcoane 0 balcoane

Confort 1

Compartimentare Decomandat

Tip constructie In bloc

Status constructie Finalizat

Disponibila incepand cu 2025-09-16

Judet Bucuresti

Oras/ Sector Sector 1

Zona Pipera

Gps lat 44.488605

Gps lng 26.134056

Supraveghere 24/7

Interfon

Internet prin fibra optica

Internet prin cablu

Curent electric

Geamuri termopan

Repartitoare

Parchet

Apometre

Gresie

Faianta

Gaz

Loc parcare exterior

Incalzire proprie

WC serviciu

Aer conditionat

Bloc reabiliat termic

Broker Imobiliar

Dan Ghita , Consultant imobiliar Vezi toate proprietatile

0317100200

Apartament 4 Camere I De Inchiriat I Pipera

Pret inchiriere
2.100 € /luna

Telefon Consultant imobiliar
0317100200

Cod: REA1025115

Proprietati similare

Bucuresti, Aviatiei

4 camere cu loc parcare exterior inclus

123 mp 6 2023

2.100 EUR/luna

Detalii

Bucuresti, Floreasca

4 camere cu loc parcare subteran inclus

120 mp 4 2022

2.100 EUR/luna

Detalii

Bucuresti, Aviatiei

4 camere cu loc parcare subteran inclus

140 mp P 2012

2.200 EUR/luna

Detalii

Bucuresti, Herastrau

4 camere cu loc parcare subteran inclus

97.3 mp 4 2005

2.100 EUR/luna

Detalii

Bucuresti, Dorobanti

Apartament, 4 camere

145 mp 2 2010

1.950 EUR/luna

Detalii

Bucuresti, Aviatorilor

4 camere cu loc parcare subteran inclus

200 mp 5 2010

2.300 EUR/luna

Detalii

Bucuresti, 1 Mai, Domenii

Apartament, 4 camere

165 mp 2 2008

2.000 EUR/luna

Detalii

Bucuresti, Ultracentral, Batistei

Apartament, 4 camere

163 mp 3 2005

1.900 EUR/luna

Detalii
Apartamente 4 camere inchiriate in Pipera, Bucuresti Apartamente 4 camere de inchiriere in Pipera, Bucuresti

Afla primul de cele mai bune oferte
inainte sa ajunga pe piata

Aboneaza-te la newsletter

Aboneaza-te la notificari