Floreasca 3 camere 97.54 mp P 2023

*La pretul afisat se adauga TVA*

Amplasat in prestigiosul complex Brick din zona Floreasca, acest apartament reprezinta o simbioza perfecta intre eleganta urbana si rafinamentul contemporan. Cu o arhitectura moderna si finisaje de inalta calitate, acest spatiu ofera un ambient sofisticat si confortabil, ideal pentru cei care apreciaza stilul de viata urban.

Apartamentul este generos spatios si luminos, cu ferestre ample ce permit luminii naturale sa inunde fiecare colt al incaperii. Designul open-space imbina perfect livingul, bucataria si zona de luat masa, creand un spatiu fluid si prietenos, perfect pentru relaxare si socializare.

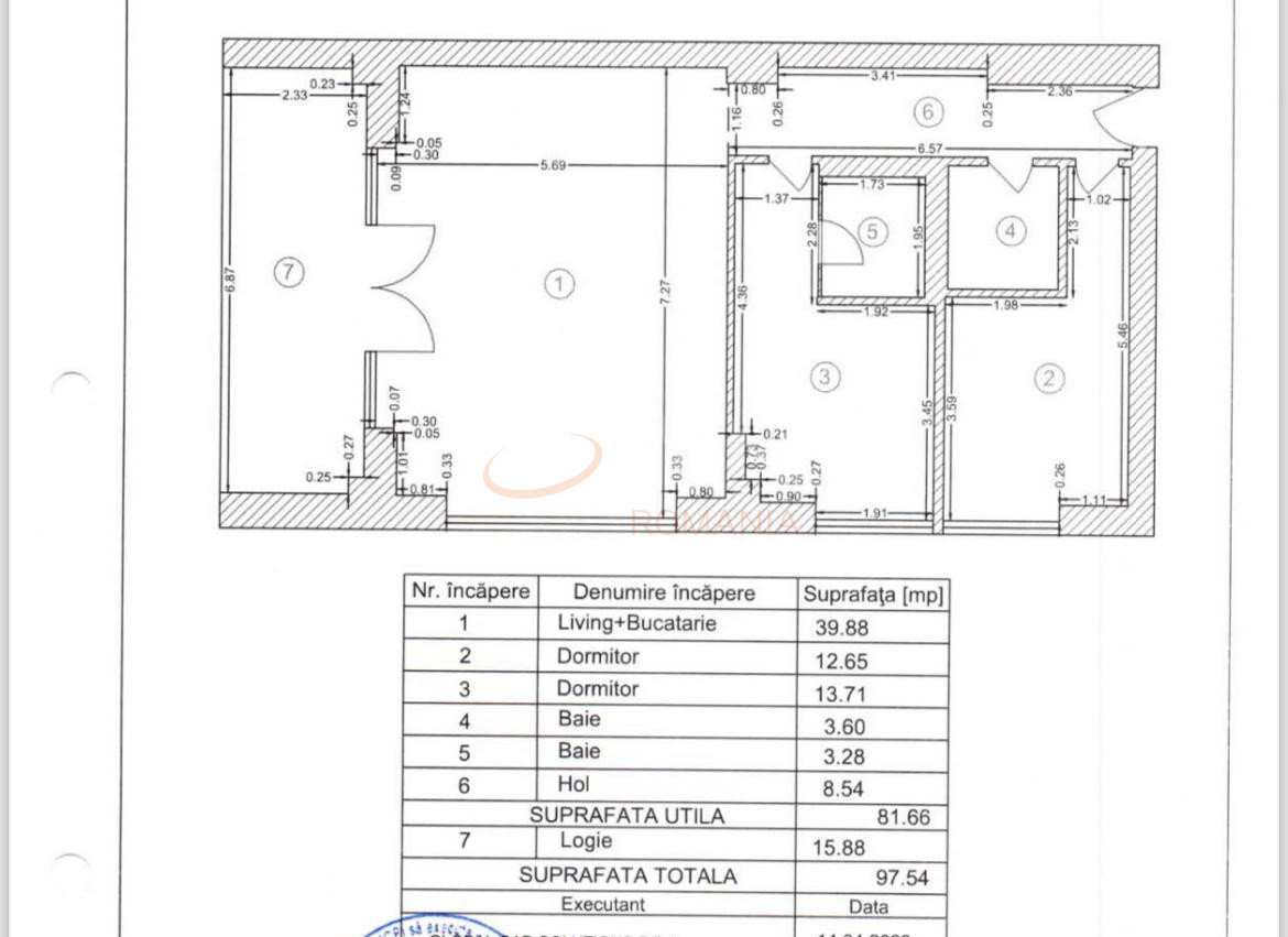
Apartamentul, in suprafata utila de 81.66 mp, este compartimentat dupa cum urmeaza living-ul cu bucatarie open-space in suprafata utila de 39.88 mp , 2 dormitoare cu baie proprie in suprafata utila 16.25 mp respectiv 16.99 mp.
Apartamentul beneficiaza si de o logie in suprafata de 15.88 mp.

Apartamentul se inchiriaza nemobilat.


Complexul Brick din Floreasca ofera, de asemenea, facilitati premium, spatii verzi si zone de recreere, completand astfel experienta de locuire urbana cu un plus de confort si relaxare. Cu o locatie centrala si acces facil la restaurante, magazine si alte puncte de interes, acest apartament in complexul Brick reprezinta alegerea ideala pentru cei care cauta un stil de viata modern si sofisticat in inima Bucurestiului.

Pentru mai multe informatii, nu ezitati sa ne contactati!

An constructie 2023

Suprafata construita 109.68 mp

Suprafata utila 97.54 mp

Suprafata terasa 15.88 mp

Regim Inaltime P / 6

Etaj P

Nr. camere 3 camere

Nr. bai 1

Nr. balcoane 0 balcoane

Confort 1

Compartimentare Semidecomandat

Tip constructie Bloc

Status constructie Finalizat

Disponibila incepand cu 2026-05-15

Judet Bucuresti

Oras/ Sector Sector 2

Zona Floreasca

Gps lat 44.474395

Gps lng 26.112098

Complex rezidential Brick Lofts

Detector de gaze

Curent electric

Internet prin fibra optica

Internet Wireless

Interfon

Sistem de alarma

Geamuri termopan

Parchet

Apometre

Gresie

Faianta

Gaz

Incalzire prin pardoseala

Incalzire proprie

WC serviciu

Aer conditionat

Lift

Broker Imobiliar

Raluca Dobrisan , Consultant imobiliar Vezi toate proprietatile

0317100200

BrickLofts 3 camere finisaje premium

Pret inchiriere
2.200 € /luna

Telefon Consultant imobiliar
0317100200

Cod: REA1022713

Proprietati similare

Bucuresti, Floreasca

Apartament, 3 camere

95 mp 1 2023

2.000 EUR/luna

Detalii
Exclusiv Discount

Bucuresti, Floreasca

Apartament, 3 camere

160 mp 3 2009

2.350 EUR/luna

Detalii

Bucuresti, Floreasca

3 camere cu loc parcare subteran inclus

85 mp 7 2023

2.000 EUR/luna

Detalii

Bucuresti, Floreasca

3 camere cu loc parcare subteran inclus

101 mp 15 2022

2.200 EUR/luna

Detalii

Bucuresti, Floreasca

3 camere cu loc parcare subteran inclus

69 mp 6 2025

2.100 EUR/luna

Detalii

Bucuresti, Floreasca

Apartament, 3 camere

150 mp 3 2009

2.400 EUR/luna

Detalii

Bucuresti, Floreasca

3 camere cu loc parcare subteran inclus

80 mp 11 2023

2.300 EUR/luna

Detalii

Bucuresti, Floreasca

3 camere cu loc parcare subteran inclus

76 mp 5 2021

2.100 EUR/luna

Detalii
Apartamente 3 camere inchiriate in Floreasca, Bucuresti Apartamente 3 camere de inchiriere in Floreasca, Bucuresti

Afla primul de cele mai bune oferte
inainte sa ajunga pe piata

Aboneaza-te la newsletter

Aboneaza-te la notificari