Centru 2 camere 55 mp P 2022

SVN Romania I Cluj va propune spre achizitionare un apartament cu 2 camere decomandate, la parterul unui imobil nou construit din Apahida. In tot imobilul vor fi doar 4 apartamente. Apartamentele de la parter beneficiaza de gradina proprie.
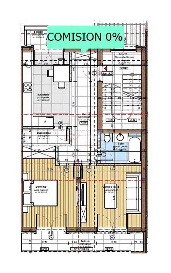
Apartamenul are o suprafata utila de 55 mp, iar suprafata construita este de 70 metri patrati.
Locuinta se vinde la stadiul de semifinisat, cu materiale de constructie de ultima generatie, ce includ: sapa autonivelanta, pereti gletuiti, instalatii termice, electrice si sanitare executate si trase la pozitie, geamuri termopan cu tamplarie PVC, centrala termica, incalzire in pardoseala, usa de intrare.
In pretul de achizitie este inclus si un loc de parcare.
Pretul este de 85.000 de euro, TVA si loc de parcare inclus.

An constructie 2022

Suprafata construita 70 mp

Suprafata utila 55 mp

Regim Inaltime P / 1

Etaj P

Nr. camere 2 camere

Nr. bai 1

Nr. balcoane 2 balcoane

Confort 1

Compartimentare Decomandat

Tip constructie In bloc

Status constructie Nefinalizat

Disponibila incepand cu 2023-05-09

Judet Cluj

Oras/ Sector Apahida

Zona Centru

Gps lat 46.812557

Gps lng 23.754135

Clasa energetica 2

Curent electric

Geamuri termopan

Apometre

Gaz

Loc parcare exterior

Incalzire proprie

Bloc reabiliat termic

Apartament in Vila - Apahida

Proprietate vanduta

Ai o proprietate similara? Vinde-o cu noi.
Vinde apartament

Cod: REA1009623
Apartamente 2 camere vandute in Apahida, Cluj Apartamente 2 camere de vanzare in Apahida, Cluj

Afla primul de cele mai bune oferte
inainte sa ajunga pe piata

Aboneaza-te la newsletter

Aboneaza-te la notificari