Centru 2 camere 58 mp P 1950

SVN Romania | Cluj va propune spre achizitionare un apartament cu o suprafata utila de 58 de mp, foarte bine pozitionat, in zona Facultatii de Drept UBB.
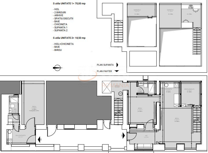
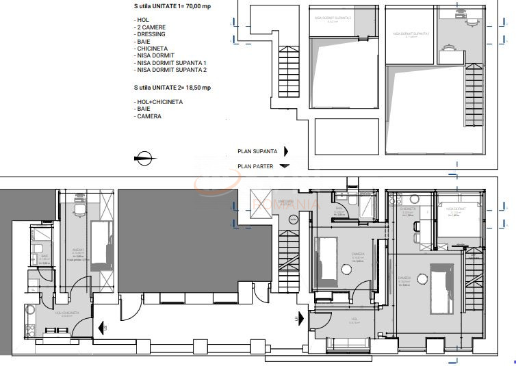
Intrarea se face intr-o curte interioara, se poate intra cu masina. Apartamentul este situat la parterul imobilului, structura acestuia fiind parter si un etaj. Proprietarul este arhitect si a gandit o dubla solutie, atat pentru locuinta, cat si pentru birou. Regasiti propunerile in poze. In acest moment apartamentul este curatat pana la caramida, cumparatorul urmand sa aleaga finisajele dorite.
Clasa energetica se va determina la momentul vanzarii. Se vinde pentru suma de 148.000 euro.

An constructie 1950

Suprafata construita 58 mp

Suprafata utila 58 mp

Regim Inaltime P / 1

Etaj P

Nr. camere 2 camere

Nr. bai 1

Nr. balcoane 0 balcoane

Confort 1

Compartimentare Circular

Tip constructie In bloc

Status constructie Finalizat

Disponibila incepand cu 2022-06-17

Judet Cluj

Oras/ Sector Cluj-Napoca

Zona Centru

Gps lat 46.766448

Gps lng 23.588862

Clasa energetica 3

Curent electric

Geamuri termopan

Loc parcare subteran

Gaz

WC serviciu

Apartament ultracentral Cluj Napoca

Proprietate vanduta

Ai o proprietate similara? Vinde-o cu noi.
Vinde apartament

Cod: REA1009789
Apartamente 2 camere vandute in Cluj-Napoca, Cluj Apartamente 2 camere de vanzare in Cluj-Napoca, Cluj

Afla primul de cele mai bune oferte
inainte sa ajunga pe piata

Aboneaza-te la newsletter

Aboneaza-te la notificari