Centru 3 camere 104.55 mp 2 2015

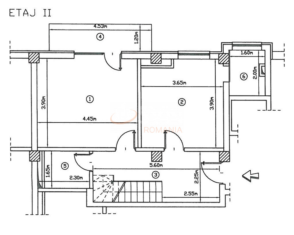
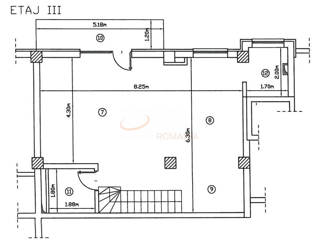
Avem placerea sa va punem la dispozitie un apartament superb, de tip penthouse in centrul orasului, intr-un imobil nou. Apartamentul este compus din 2 dormitoare, 2 bai, living, bucatarie, dressing, terasa, si este dispus pe trei nivele, avand living, bucatarie si baie la al doilea nivel, 2 dormitoare 2 bai, dressing si un balcon la primul nivel si o terasa generoasa la al treilea nivel. Imobilul in care este situat se afla la 5 minute de centru orasului, intr-un imobil de 3 etaje, dotat cu lift si parcare subterana. Apartamentul la nivel de dotari dispune de video-interfon, centrala proprie, geamuri termopan cu 3 foi de sticla si tamplarie de aluminiu. Se preteaza ca investitie si nu numai.

An constructie 2015

Suprafata construita 130 mp

Suprafata utila 104.55 mp

Suprafata terasa 35

Regim Inaltime 2 / 3

Etaj 2

Nr. camere 3 camere

Nr. bai 3

Nr. balcoane 3 balcoane

Confort Lux

Compartimentare Decomandat

Tip constructie In bloc

Status constructie Finalizat

Disponibila incepand cu 2022-04-29

Judet Cluj

Oras/ Sector Cluj-Napoca

Zona Centru

Gps lat 46.774231

Gps lng 23.599614

Nr. terase 1

Internet Wireless

Internet prin cablu

Cablu TV

Interfon

Internet prin fibra optica

Curent electric

Geamuri termopan

Balcon inchis

Parchet

Apometre

Gresie

Telefon

Loc parcare subteran

Faianta

Gaz

Incalzire proprie

WC serviciu

Mobilat

Aer conditionat

Bloc reabiliat termic

Apartament de vanzare ultracentral

Proprietate vanduta

Ai o proprietate similara? Vinde-o cu noi.
Vinde apartament

Cod: REA1009577
Apartamente 3 camere vandute in Cluj-Napoca, Cluj Apartamente 3 camere de vanzare in Cluj-Napoca, Cluj

Afla primul de cele mai bune oferte
inainte sa ajunga pe piata

Aboneaza-te la newsletter

Aboneaza-te la notificari