Apartament, 3 camere, Cluj / Cluj-Napoca / Centru
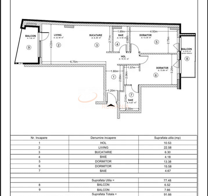
Apartamentul este compartimentat comform schitei si are orientare S-V-E.
Acesta dispune de incalzire in pardoseala, geamuri termopan si usa metalica. Se va preda la stadiul de semifinisat ceea ce va ofera posibilitatea de a-l personaliza dupa preferintele proprii.
Puteti opta pentru diferite stiluri de amenajare precum stilul nordic folosind o paleta rece de culori, cel boem care va da un suflu regal locuintei prin accente de roz, mov, lila sau bungundi cu piese de mobilier in culori deschise precum alb sau bej cu accente de auriu, iar pentru o nota masculina paleta de albastru inchis sau verde cu corpuri de iluminat rotunde sau ovale poate completa imaginea de ansamblu.
Pentru un buget mai redus se poate opta pentru stilul vintage caracterizat prin piese vechi de mobilier reconditionate iar pentru vopseaua lavabila se poate opta pentru paleta de maro si roscat pentru a oferi o imagine de country american.
Zona in care este pozitionat ofera acces facil atat la mijloacele de transport in comun, cat si la magazine, cafenele si restaurante, oferind proprietatii posibilitatea de a putea fi folosita atat pentru locuinta cat si pentru o investitie pe termen lung.
Pentru mai multe detalii sau pentru a programa o vizionare nu ezitati sa ne contactati!
Atribute
An constructie 2022
Suprafata construita 90 mp
Suprafata utila 78 mp
Regim Inaltime 4 / 4
Etaj 4
Nr. camere 3 camere
Nr. bai 1
Nr. balcoane 0 balcoane
Confort 1
Compartimentare Semidecomandat
Tip constructie In bloc
Status constructie Finalizat
Disponibila incepand cu 2022-03-04
Judet Cluj
Oras/ Sector Cluj-Napoca
Zona Centru
Gps lat 46.775528
Gps lng 23.590622
Clasa energetica 2
Facilitati
Interfon
Curent electric
Internet Wireless
Cablu TV
Geamuri termopan
Loc parcare subteran
Gaz
Incalzire proprie
Bloc reabiliat termic
Lift
Apartament cu 3 camere in Centru
Proprietate vanduta
Ai o proprietate similara? Vinde-o cu noi.
  Vinde apartament  
 
  
  
  
  
  
  
  
  
 