Gheorgheni 2 camere 41 mp 3 2023

Apartamentul propus spre achizitionare a fost preluat si fotografiat, de catre un broker al SVN Romania| Cluj, una dintre cele mai mari companii de consultanta imobiliara, ce face parte din grupul SVN, brand recunoscut, la nivel mondial, pentru calitatea serviciilor imobiliare oferite.


LOCALIZARE:

Acest imobil este situat in cartierul Gheorgheni, fiind pozitionat in imediata apropiere a Pietei Cipariu, Parcului Central, Iulius Mall.


DATE TEHNICE:

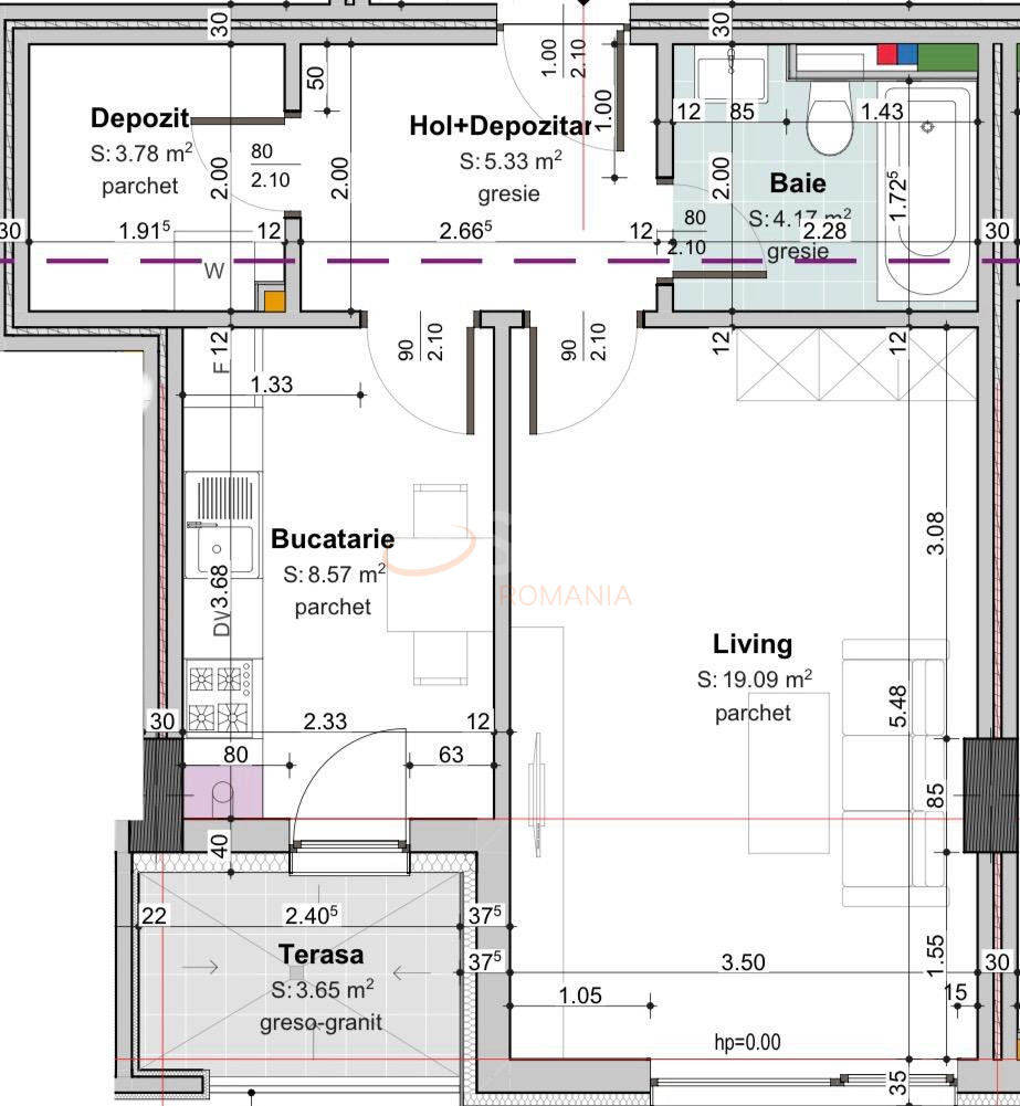
Proprietatea este dispusa pe 2 camere, dupa cum urmeaza:

-Holul de acces;
-Living-ul, care are o suprafata generoasa;
-Bucataria inchisa;
-Dormitor cu dressing;
-Baie;
-Balcon;


FINISAJE:

Imobilul detine finisaje de inalta calitate, acesta ne mai necesitand imbunatatiri.


DOTARI:

Proprietatea detine:
- centrala termica;
- tamplarie PVC, cu geam termopan;
- usa metalica;
- incalzire in pardoseala;

Tranzactionarea proprietatii se va face cu mobilierul aferent prezentei ofertari.


IMPREJURIMI:

Apartamentul este situat intr-o zona de blocuri, accesul fiind unul facil.
Accesul auto, pana la zona de centru a orasului sau pana la Iulius Mall se poate face in cca. 5 minute.


OBSERVATII:

Zona rezidentiala de interes major;
Se accepta achizitionarea prin accesarea unui credit bancar;

SVN Romania | Cluj, in calitate de companie imobiliara, care promoveaza acest imobil, incearca sa ofere detalii tehnice, in raport cu situatia reala a proprietatii prezentate, cu amendamentul ca acestea nu constituie sau nu fac parte dintr-o oferta aferenta unui contract.

Datele enumerate in aceasta specificatie, au fost preluate verbal, ca ghid informativ, pentru potentialii cumparatori, in momentul preluarii spre promovare, a imobilului mai sus prezentat, de la apartinatorul de drept, acestea nefiind verificate in amanunt, de noi, pentru a va oferi o garantie. Astfel, toata documentatia va fi verificata, integral, in momentul in care se solicita actele proprietatii, ca si pas premergator contractului de vanzare - cumparare, in cazul in care exista un interes pentru acest imobil.

Daca aveti nevoie de clarificari sau informatii suplimentare, broker-ul care administreaza aceasta oferta, va poate oferi detalii complete.

Nota: Structura acestei prezentari si informatiile mai sus detaliate, nu pot fi preluate, fara acordul scris al SVN Romania | Cluj.

An constructie 2023

Suprafata construita 49 mp

Suprafata utila 41 mp

Suprafata terasa 4 mp

Regim Inaltime 3 / 6

Etaj 3

Nr. camere 2 camere

Nr. bai 1

Nr. balcoane 1 balcon

Confort 1

Compartimentare Decomandat

Tip constructie In bloc

Status constructie Finalizat

Disponibila incepand cu 2024-08-01

Judet Cluj

Oras/ Sector Cluj-Napoca

Zona Gheorgheni

Gps lat 46.762075

Gps lng 23.612093

Internet Wireless

Interfon

Cablu TV

Curent electric

Geamuri termopan

Parchet

Gresie

Faianta

Gaz

Mobilat

Bucatarie mobilata

Apartament ultramodern bloc nou zona Piata Cipariu

Proprietate vanduta

Ai o proprietate similara? Vinde-o cu noi.
Vinde apartament

Cod: REA1020705
Apartamente 2 camere vandute in Cluj-Napoca, Cluj Apartamente 2 camere de vanzare in Cluj-Napoca, Cluj

Afla primul de cele mai bune oferte
inainte sa ajunga pe piata

Aboneaza-te la newsletter

Aboneaza-te la notificari