Gheorgheni 3 camere 63 mp 3

SVN Romania I Cluj va ofera spre vanzare un apartament cu 3 camere, situat in cartierul Gheorgheni.

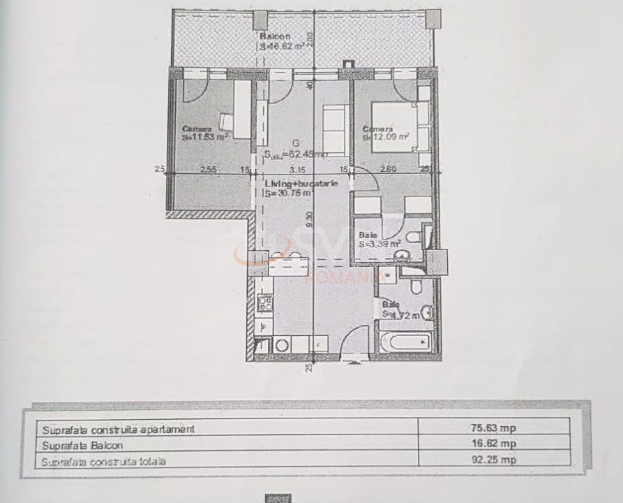
Dispune de 63 mp find compartimentat astfel: 3 camere, 2 bai, 1 bucatarie, 1 baie si 1 terasa generoasa. Este situat la un etaj intermediar, intr-un ansamblu rezidential nou, ce beneficiaza de: acces securizat, paza permanenta, supraveghere video, sala de fitness, teren de baschet, squash si tenis, acces la piscina incalzita, zone pietonale fara acces auto.

Zona are acces la toate punctele de interes: parcuri, supermarkerturi, institutii de invatamant, statii pentru mijloacele de transport in comun si la 3 minure de Iulius Mall.

Apartamentul este foarte luminos datorita orientarii estice si a ferestrelor mari si se poate personaliza avand in vedere ca in momentul de fata nu este mobilat si utilat.
Finisajele moderne sunt evidentiate prin: ferestre termoizolante din PVC, usile interioare si cea de la intrare din lemn, pardoseala cu parchet laminat si pereti cu vopsea lavabila. Confortul termic este asigurat de centrala de bloc.
Pretul include si o parcare subterana!

Pentru a va convinge de potentialul acestei proprietati nu ezitati sa ne contactati pentru a programa o vizionare!

Suprafata construita 75 mp

Suprafata utila 63 mp

Regim Inaltime 3 / 6

Etaj 3

Nr. camere 3 camere

Nr. bai 1

Nr. balcoane 0 balcoane

Confort 1

Compartimentare Semidecomandat

Tip constructie In bloc

Status constructie Finalizat

Judet Cluj

Oras/ Sector Cluj-Napoca

Zona Gheorgheni

Gps lat 46.770018

Gps lng 23.628152

Clasa energetica 2

Cablu TV

Internet Wireless

Curent electric

Interfon

Geamuri termopan

Parchet

Gresie

Loc parcare subteran

Faianta

Bloc reabiliat termic

Lift

Apartament cu 3 camere in Gheorgheni

Proprietate vanduta

Ai o proprietate similara? Vinde-o cu noi.
Vinde apartament

Cod: REA0141220
Apartamente 3 camere vandute in Cluj-Napoca, Cluj Apartamente 3 camere de vanzare in Cluj-Napoca, Cluj

Afla primul de cele mai bune oferte
inainte sa ajunga pe piata

Aboneaza-te la newsletter

Aboneaza-te la notificari