Manastur 3 camere 71.93 mp 1 2007

SVN Romania | Cluj va propune spre achizitionare un apartament cu 3 camere si 2 bai in zona strazii Campului, cu acces facil spre mijloacele de transport in comun si alte puncte de interes.
Apartamentul se afla la etajul 1 al unui imobil construit in anul 2007 in structura subsol, parter, etaj si mansarda (S+P+E+M).
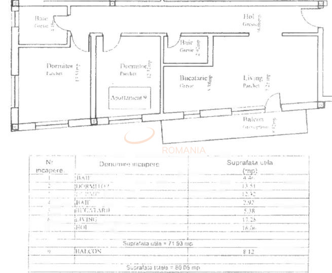
Suprafata utila a apartamentului este una generoasa, de 71.93 mp. Livingul este impreuna cu bucataria, dar aceasta se poate inchide usor, iar in cele doua dormitoare si doua bai sunt intrari distincte dintr-un hol mare, de 16 mp. Balconul are o suprafata de 8.12 mp.
Apartamentul se vinde nemobilat, liber de sarcini, pentru suma de 138.000 euro.

An constructie 2007

Suprafata construita 80.05 mp

Suprafata utila 71.93 mp

Suprafata terasa 12 mp

Regim Inaltime 1 / 2

Etaj 1

Nr. camere 3 camere

Nr. bai 2

Nr. balcoane 0 balcoane

Confort 1

Compartimentare Semidecomandat

Tip constructie In bloc

Status constructie Finalizat

Disponibila incepand cu 2023-05-23

Judet Cluj

Oras/ Sector Cluj-Napoca

Zona Manastur

Gps lat 46.748295

Gps lng 23.565962

Nr. terase 1

Interfon

Acoperis mansardat

Geamuri termopan

Parchet

Gresie

Faianta

Incalzire proprie

WC serviciu

Bloc reabiliat termic

Zona Campului - 2 Bai

Proprietate vanduta

Ai o proprietate similara? Vinde-o cu noi.
Vinde apartament

Cod: REA1010122
Apartamente 3 camere vandute in Cluj-Napoca, Cluj Apartamente 3 camere de vanzare in Cluj-Napoca, Cluj

Afla primul de cele mai bune oferte
inainte sa ajunga pe piata

Aboneaza-te la newsletter

Aboneaza-te la notificari