Piata Mihai Viteazul 2 camere 55 mp 1 2024

Apartamentul propus spre achizitionare a fost preluat si fotografiat, de catre un broker al SVN Romania| Cluj, una dintre cele mai mari companii de consultanta imobiliara, ce face parte din grupul SVN, brand recunoscut, la nivel mondial, pentru calitatea serviciilor imobiliare oferite.

SVN Romania Cluj va propune spre vanzare un apartament cu 2 camere intr un proiect nou in derulare.

Ansamblul este situat in zona de Centru a Clujului, in imediata apropiere a Pietei Mihai Viteazu.

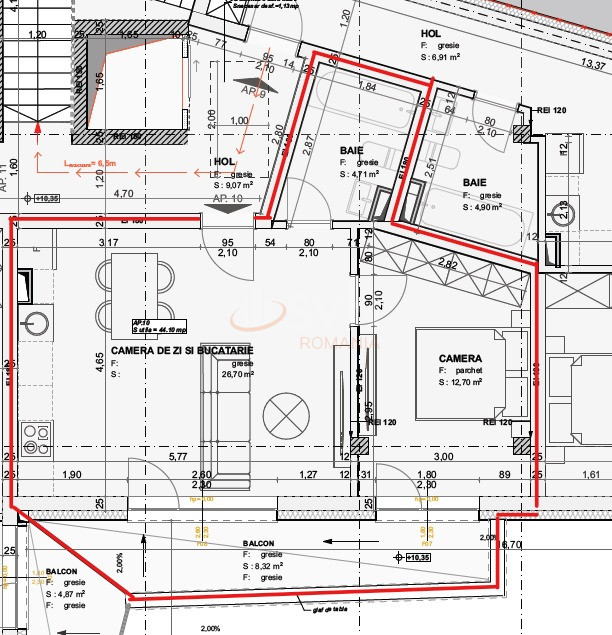
Apartamentul este situat la etajul 1 si are o suprafata utila de 55 mp.
Compartimentarea este semidecomandata dupa cum urmeaza:
living open space cu bucataria, dormitor, hol, baie si balcon.
Apartamentul se va preda la stadiul de finisat, iar termenul de finalizare este mai 2025.
Separat se poate achizitiona loc de parcare in garaj la pretul de 20000 Euro+TVA.

SVN Romania | Cluj, in calitate de companie imobiliara, care promoveaza acest imobil, incearca sa ofere detalii tehnice, in raport cu situatia reala a proprietatii prezentate, cu amendamentul ca acestea nu constituie sau nu fac parte dintr-o oferta aferenta unui contract.

Datele enumerate in aceasta specificatie, au fost preluate verbal, ca ghid informativ, pentru potentialii cumparatori, in momentul preluarii spre promovare, a imobilului mai sus prezentat, de la apartinatorul de drept, acestea nefiind verificate in amanunt, de noi, pentru a va oferi o garantie. Astfel, toata documentatia va fi verificata, integral, in momentul in care se solicita actele proprietatii, ca si pas premergator contractului de vanzare - cumparare, in cazul in care exista un interes pentru acest imobil.

Daca aveti nevoie de clarificari sau informatii suplimentare, broker-ul care administreaza aceasta oferta, va poate oferi detalii complete.

Nota: Structura acestei prezentari si informatiile mai sus detaliate, nu pot fi preluate, fara acordul scris al SVN Romania | Cluj.

An constructie 2024

Suprafata construita 66 mp

Suprafata utila 55 mp

Suprafata terasa 4 mp

Regim Inaltime 1 / 3

Etaj 1

Nr. camere 2 camere

Nr. bai 1

Nr. balcoane 1 balcon

Confort 1

Compartimentare Semidecomandat

Tip constructie In bloc

Status constructie Nefinalizat

Disponibila incepand cu 2024-05-14

Judet Cluj

Oras/ Sector Cluj-Napoca

Zona Piata Mihai Viteazul

Gps lat 46.778594

Gps lng 23.595855

Detector de gaze

Interfon

Curent electric

Geamuri termopan

Parchet

Gresie

Faianta

Gaz

Incalzire proprie

Calorifere

Apartament 2 camere in ansamblu nou zona Centrala

Proprietate vanduta

Ai o proprietate similara? Vinde-o cu noi.
Vinde apartament

Cod: REA1019772
Apartamente 2 camere vandute in Cluj-Napoca, Cluj Apartamente 2 camere de vanzare in Cluj-Napoca, Cluj

Afla primul de cele mai bune oferte
inainte sa ajunga pe piata

Aboneaza-te la newsletter

Aboneaza-te la notificari