Apartament, 2 camere, Cluj / Cluj-Napoca / Piata Mihai Viteazul
SVN Romania Cluj va propune spre vanzare un apartament cu 2 camere intr un proiect nou in derulare.
Ansamblul este situat in zona de Centru a Clujului, in imediata apropiere a Pietei Mihai Viteazu.
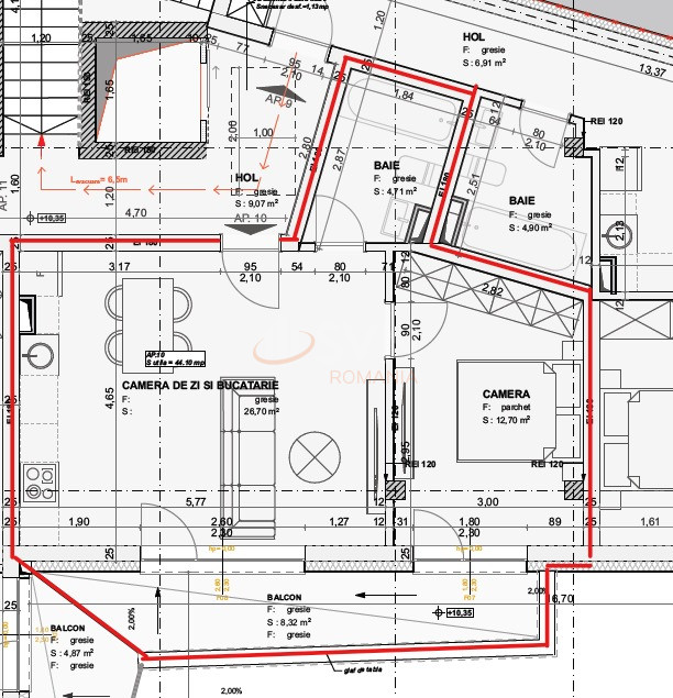
Apartamentul este situat la etajul 1 si are o suprafata utila de 44 mp.
Compartimentarea este semidecomandata dupa cum urmeaza:
living open space cu bucataria, dormitor, hol, baie si balcon.
Apartamentul se va preda la stadiul de finisat, iar termenul de finalizare este mai 2025.
Separat se poate achizitiona loc de parcare in garaj la pretul de 20000 Euro+TVA.
SVN Romania | Cluj, in calitate de companie imobiliara, care promoveaza acest imobil, incearca sa ofere detalii tehnice, in raport cu situatia reala a proprietatii prezentate, cu amendamentul ca acestea nu constituie sau nu fac parte dintr-o oferta aferenta unui contract.
Datele enumerate in aceasta specificatie, au fost preluate verbal, ca ghid informativ, pentru potentialii cumparatori, in momentul preluarii spre promovare, a imobilului mai sus prezentat, de la apartinatorul de drept, acestea nefiind verificate in amanunt, de noi, pentru a va oferi o garantie. Astfel, toata documentatia va fi verificata, integral, in momentul in care se solicita actele proprietatii, ca si pas premergator contractului de vanzare - cumparare, in cazul in care exista un interes pentru acest imobil.
Daca aveti nevoie de clarificari sau informatii suplimentare, broker-ul care administreaza aceasta oferta, va poate oferi detalii complete.
Nota: Structura acestei prezentari si informatiile mai sus detaliate, nu pot fi preluate, fara acordul scris al SVN Romania | Clu
Atribute
An constructie 2024
Suprafata construita 62 mp
Suprafata utila 44 mp
Suprafata terasa 8 mp
Regim Inaltime 1 / 3
Etaj 1
Nr. camere 2 camere
Nr. bai 1
Nr. balcoane 1 balcon
Confort 1
Compartimentare Semidecomandat
Tip constructie In bloc
Status constructie Nefinalizat
Disponibila incepand cu 2024-05-15
Judet Cluj
Oras/ Sector Cluj-Napoca
Zona Piata Mihai Viteazul
Gps lat 46.777183
Gps lng 23.589847
Facilitati
Interfon
Geamuri termopan
Parchet
Gresie
Faianta
Incalzire proprie
Posibilitate de investitie 2 camere zona Centrala
Proprietate vanduta
Ai o proprietate similara? Vinde-o cu noi.
  Vinde apartament  
 
  
  
  
  
  
  
  
  
 