Semicentral 3 camere 100.99 mp 1 2003

Apartamentul propus spre achizitionare a fost preluat si fotografiat, de catre un broker al SVN Romania| Cluj, una dintre cele mai mari companii de consultanta imobiliara, ce face parte din grupul SVN, brand recunoscut, la nivel mondial, pentru calitatea serviciilor imobiliare oferite.
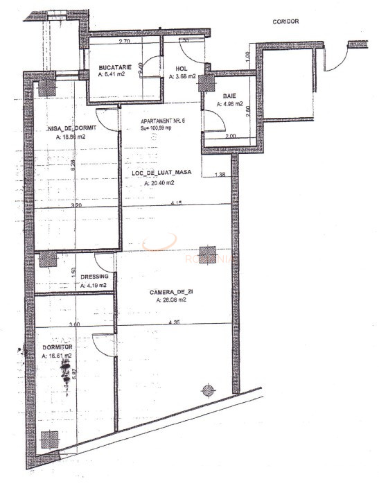
apartament cu suprafata utila 100,99 mp, intr-o zona semicentrala in imediata proximitatea a magazinelor si mijloacelor de transport in comun.
Apartamentul este la stadiul de semifinisat, avânt centrala termica si usile de interior montate pentru baie si spatul tehnic. Unul din cele mai importante aspecte ale apartamentul este faptul ca spatiul nu este compartimentat, lasand oportunitatea noului proprietar pentru amenajarea locului ideal pentru nevoile proprii.
Proprietatea dispune si de un loc de parcare cu CF in curtea interioara a imobilului.

OBSERVATII:
Zona rezidentiala de interes major;
Se accepta achizitionarea prin accesarea unui credit bancar;
SVN Romania | Cluj, in calitate de companie imobiliara, care promoveaza acest imobil, incearca sa ofere detalii tehnice, in raport cu situatia reala a proprietatii prezentate, cu amendamentul ca acestea nu constituie sau nu fac parte dintr-o oferta aferenta unui contract.

Datele enumerate in aceasta specificatie, au fost preluate verbal, ca ghid informativ, pentru potentialii cumparatori, in momentul preluarii spre promovare, a imobilului mai sus prezentat, de la apartinatorul de drept, acestea nefiind verificate in amanunt, de noi, pentru a va oferi o garantie. Astfel, toata documentatia va fi verificata, integral, in momentul in care se solicita actele proprietatii, ca si pas premergator contractului de vanzare - cumparare, in cazul in care exista un interes pentru acest imobil.

Daca aveti nevoie de clarificari sau informatii suplimentare, broker-ul care administreaza aceasta oferta, va poate oferi detalii complete.

Nota: Structura acestei prezentari si informatiile mai sus detaliate, nu pot fi preluate, fara acordul scris al SVN Romania | Cluj.

An constructie 2003

Suprafata construita 0 mp

Suprafata utila 100.99 mp

Regim Inaltime 1 / 7

Etaj 1

Nr. camere 3 camere

Nr. bai 1

Nr. balcoane 1 balcon

Confort 1

Compartimentare Decomandat

Tip constructie In bloc

Status constructie Finalizat

Disponibila incepand cu 2023-02-02

Judet Cluj

Oras/ Sector Cluj-Napoca

Zona Semicentral

Gps lat 46.782462

Gps lng 23.592246

Clasa energetica 2

Interfon

Detector de gaze

Curent electric

Gaz

Loc parcare exterior

Incalzire proprie

Semicentral - Posibilitate Recompartimentare

Proprietate vanduta

Ai o proprietate similara? Vinde-o cu noi.
Vinde apartament

Cod: REA1009824
Apartamente 3 camere vandute in Cluj-Napoca, Cluj Apartamente 3 camere de vanzare in Cluj-Napoca, Cluj

Afla primul de cele mai bune oferte
inainte sa ajunga pe piata

Aboneaza-te la newsletter

Aboneaza-te la notificari