Semicentral 3 camere 77.48 mp 1 2021

Apartamentul propus spre achizitionare a fost preluat si fotografiat, de catre un broker al SVN Romania| Cluj, una dintre cele mai mari companii de consultanta imobiliara, ce face parte din grupul SVN, brand recunoscut, la nivel mondial, pentru calitatea serviciilor imobiliare oferite.
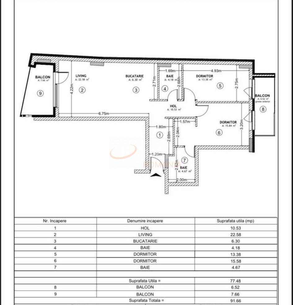
Apartament cu 3 camere si suprafata utila de 77,49 mp, compus din living si bucatarie cu suprafata de 28,58 mp, un dormitor matrimonial de 15,84 mp cu baie proprie, un dormitor de 13,38 mp, o baie, doua holuri si doua balcoane.
Apartamentul este la etajul 1 intr-un imobil cu 6 etaje situat într-o zona semicentrala in imediata proximitatea a magazinelor si mijloacelor de transport in comun.
Acesta se vinde la stadiul de semifinisat, avânt centrala termica si încalzire in pardoseala, de asemenea proprietatea dispune si de un loc de parcare cu CF.
Pretul de vânzare al apartamentului este de 195000 euro+ 8000 euro loc de parcare cu CF.
OBSERVATII:
Zona rezidentiala de interes major;
Se accepta achizitionarea prin accesarea unui credit bancar;
SVN Romania | Cluj, in calitate de companie imobiliara, care promoveaza acest imobil, incearca sa ofere detalii tehnice, in raport cu situatia reala a proprietatii prezentate, cu amendamentul ca acestea nu constituie sau nu fac parte dintr-o oferta aferenta unui contract.

Datele enumerate in aceasta specificatie, au fost preluate verbal, ca ghid informativ, pentru potentialii cumparatori, in momentul preluarii spre promovare, a imobilului mai sus prezentat, de la apartinatorul de drept, acestea nefiind verificate in amanunt, de noi, pentru a va oferi o garantie. Astfel, toata documentatia va fi verificata, integral, in momentul in care se solicita actele proprietatii, ca si pas premergator contractului de vanzare - cumparare, in cazul in care exista un interes pentru acest imobil.

Daca aveti nevoie de clarificari sau informatii suplimentare, broker-ul care administreaza aceasta oferta, va poate oferi detalii complete.

Nota: Structura acestei prezentari si informatiile mai sus detaliate, nu pot fi preluate, fara acordul scris al SVN Romania | Cluj.

An constructie 2021

Suprafata construita 85 mp

Suprafata utila 77.48 mp

Regim Inaltime 1 / 6

Etaj 1

Nr. camere 3 camere

Nr. bai 2

Nr. balcoane 2 balcoane

Confort 1

Compartimentare Semidecomandat

Tip constructie In bloc

Status constructie Finalizat

Disponibila incepand cu 2023-02-02

Judet Cluj

Oras/ Sector Cluj-Napoca

Zona Semicentral

Gps lat 46.777664

Gps lng 23.588594

Curent electric

Detector de gaze

Interfon

Geamuri termopan

Gaz

Loc parcare exterior

Incalzire proprie

Lift

Semicentral - Loc Parcare Inclus

Proprietate vanduta

Ai o proprietate similara? Vinde-o cu noi.
Vinde apartament

Cod: REA1009832
Apartamente 3 camere vandute in Cluj-Napoca, Cluj Apartamente 3 camere de vanzare in Cluj-Napoca, Cluj

Afla primul de cele mai bune oferte
inainte sa ajunga pe piata

Aboneaza-te la newsletter

Aboneaza-te la notificari