Semicentral 3 camere 70 mp 6 2022

Apartamentul propus spre achizitionare a fost preluat si fotografiat, de catre un broker al SVN Romania| Cluj, una dintre cele mai mari companii de consultanta imobiliara, ce face parte din grupul SVN, brand recunoscut, la nivel mondial, pentru calitatea serviciilor imobiliare oferite.

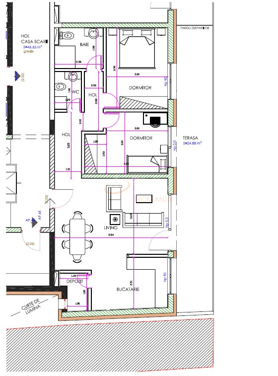
Apartamentul este semidecomandat, are o suprafata utila de 70 mp si se vinde la stadiul de semifinisat.

Acesta este situat intr-un bloc recent finalizat, in imediata apropiere a mijlocelor de transport in comun, institutiilor de învatamânt si bacare, magazine si restaurante.

OBSERVATII:
Zona rezidentiala de interes major;
Se accepta accepta achizitionarea prin accesarea unui credit bancar;
SVN Romania | Cluj, in calitate de companie imobiliara, care promoveaza acest imobil, incearca sa ofere detalii tehnice, in raport cu situatia reala a proprietatii prezentate, cu amendamentul ca acestea nu constituie sau nu fac parte dintr-o oferta aferenta unui contract.

Datele enumerate in aceasta specificatie, au fost preluate verbal, ca ghid informativ, pentru potentialii cumparatori, in momentul preluarii spre promovare, a imobilului mai sus prezentat, de la apartinatorul de drept, acestea nefiind verificate in amanunt, de noi, pentru a va oferi o garantie. Astfel, toata documentatia va fi verificata, integral, in momentul in care se solicita actele proprietatii, ca si pas premergator contractului de vanzare - cumparare, in cazul in care exista un interes pentru acest imobil.

Daca aveti nevoie de clarificari sau informatii suplimentare, broker-ul care administreaza aceasta oferta, va poate oferi detalii complete.

Nota: Structura acestei prezentari si informatiile mai sus detaliate, nu pot fi preluate, fara acordul scris al SVN Romania | Cluj.

An constructie 2022

Suprafata construita 90 mp

Suprafata utila 70 mp

Regim Inaltime 6 / 7

Etaj 6

Nr. camere 3 camere

Nr. bai 1

Nr. balcoane 0 balcoane

Confort 1

Compartimentare Semidecomandat

Tip constructie In bloc

Status constructie Finalizat

Disponibila incepand cu 2023-05-23

Judet Cluj

Oras/ Sector Cluj-Napoca

Zona Semicentral

Gps lat 46.782274

Gps lng 23.590309

Nr. terase 1

Curent electric

Interfon

Apometre

Loc parcare subteran

Gaz

Incalzire proprie

Lift

Semicentral - Comision 0

Proprietate vanduta

Ai o proprietate similara? Vinde-o cu noi.
Vinde apartament

Cod: REA1011251
Apartamente 3 camere vandute in Cluj-Napoca, Cluj Apartamente 3 camere de vanzare in Cluj-Napoca, Cluj

Afla primul de cele mai bune oferte
inainte sa ajunga pe piata

Aboneaza-te la newsletter

Aboneaza-te la notificari