Sopor 3 camere 66 mp 6 2023

Apartamentul propus spre achizitionare a fost preluat si fotografiat, de catre un broker al SVN Romania| Cluj, una dintre cele mai mari companii de consultanta imobiliara, ce face parte din grupul SVN, brand recunoscut, la nivel mondial, pentru calitatea serviciilor imobiliare oferite.
LOCALIZARE:
Acest imobil este situat in cartierul Gheorgheni, fiind pozitionat in imediata apropiere a Bazei Sportive la cca 1 min de Iulius Mall, a statiilor de transport public, institutii de invatamant.
DATE TEHNICE:
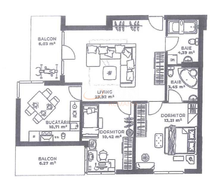
Proprietatea este dispusa pe 3 camere, dupa cum urmeaza:
1 hol
2 dormitoare
Living si bucatarie
2 bai
2 balcoane de 12 mp.
- loc de parcare subteran ce poate fi achizitionata separate.

FINISAJE:
Imobilul urmeaza sa fie finisat : sapa autonivelanta instalatii sanitare, electrice si termice trase la pozitie, pereti gletuiti cu prima mana de glet ,usa antiefractie de intrare in apartament, tamplarie PVC cu 7 camere, cu geam termopan triplustratificat centrala termica sistem complet incalzire in pardoseala, balustrada de sticla transparenta, securizata si laminata la balcoane
IMPREJURIMI:
Apartamentul este situat intr-o zona de blocuri, accesul fiind unul facil.
Accesul auto, pana la zona de centru a orasului cca 5 min, pana la Iulius Mall se poate face 2 min cu masina.

OBSERVATII:
Zona rezidentiala de interes major;
Se accepta achizitionarea prin accesarea unui credit bancar;
SVN Romania | Cluj, in calitate de companie imobiliara, care promoveaza acest imobil, incearca sa ofere detalii tehnice, in raport cu situatia reala a proprietatii prezentate, cu amendamentul ca acestea nu constituie sau nu fac parte dintr-o oferta aferenta unui contract.

Datele enumerate in aceasta specificatie, au fost preluate verbal, ca ghid informativ, pentru potentialii cumparatori, in momentul preluarii spre promovare, a imobilului mai sus prezentat, de la apartinatorul de drept, acestea nefiind verificate in amanunt, de noi, pentru a va oferi o garantie. Astfel, toata documentatia va fi verificata, integral, in momentul in care se solicita actele proprietatii, ca si pas premergator contractului de vanzare - cumparare, in cazul in care exista un interes pentru acest imobil.

Daca aveti nevoie de clarificari sau informatii suplimentare, broker-ul care administreaza aceasta oferta, va poate oferi detalii complete.

Nota: Structura acestei prezentari si informatiile mai sus detaliate, nu pot fi preluate, fara acordul scris al SVN Romania | Cluj.

An constructie 2023

Suprafata construita 86 mp

Suprafata utila 66 mp

Regim Inaltime 6 / 6

Etaj 6

Nr. camere 3 camere

Nr. bai 2

Nr. balcoane 2 balcoane

Confort 1

Compartimentare Semidecomandat

Tip constructie In bloc

Status constructie Finalizat

Disponibila incepand cu 2023-04-05

Judet Cluj

Oras/ Sector Cluj-Napoca

Zona Sopor

Gps lat 46.766939

Gps lng 23.650596

Apartament in zona Iulius Mall

Proprietate vanduta

Ai o proprietate similara? Vinde-o cu noi.
Vinde apartament

Cod: REA1014287
Apartamente 3 camere vandute in Cluj-Napoca, Cluj Apartamente 3 camere de vanzare in Cluj-Napoca, Cluj

Afla primul de cele mai bune oferte
inainte sa ajunga pe piata

Aboneaza-te la newsletter

Aboneaza-te la notificari