Apartament, 2 camere, Cluj / Cluj-Napoca / Zorilor
Constructia este aproape finalizata, apartamentele sunt date in folosinta spre a fi finisate cu posibilitatea de a locui in ele pana la emiterea finala a CF ului.
Apartamentul se preda in stadiul de semifinsat, detine centrala termica, geamuri termopan si usa metalica,
Acesta este situat intr-o zona foarte buna a orasului, in apropierea mijloacelor de transport in comun si a magazinelor.
Atribute
An constructie 2022
Suprafata construita 67 mp
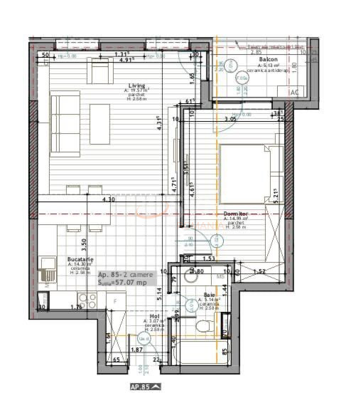
Suprafata utila 57 mp
Regim Inaltime 3 / 10
Etaj 3
Nr. camere 2 camere
Nr. bai 1
Nr. balcoane 1 balcon
Confort 1
Compartimentare Semidecomandat
Tip constructie In bloc
Status constructie Finalizat
Judet Cluj
Oras/ Sector Cluj-Napoca
Zona Zorilor
Gps lat 46.752483
Gps lng 23.577118
Clasa energetica 2
Facilitati
Internet Wireless
Curent electric
Interfon
Geamuri termopan
Gaz
Incalzire proprie
Bloc reabiliat termic
Lift
Apartament cu 2 camere in Zorilor
Proprietate vanduta
Ai o proprietate similara? Vinde-o cu noi.
  Vinde apartament  
 
  
  
  
  
  
  
  
  
 