Apartament, 3 camere, Cluj / Cluj-Napoca / Zorilor
Ansamblul rezidential in care se afla pozitionat este privilegiat de o infrastructura buna, la numai 10 minute distanta de centrul orasului dar si ofera un acces facil catre mijloacele de transport în comun, institutii de invazamant si zone comerciale.
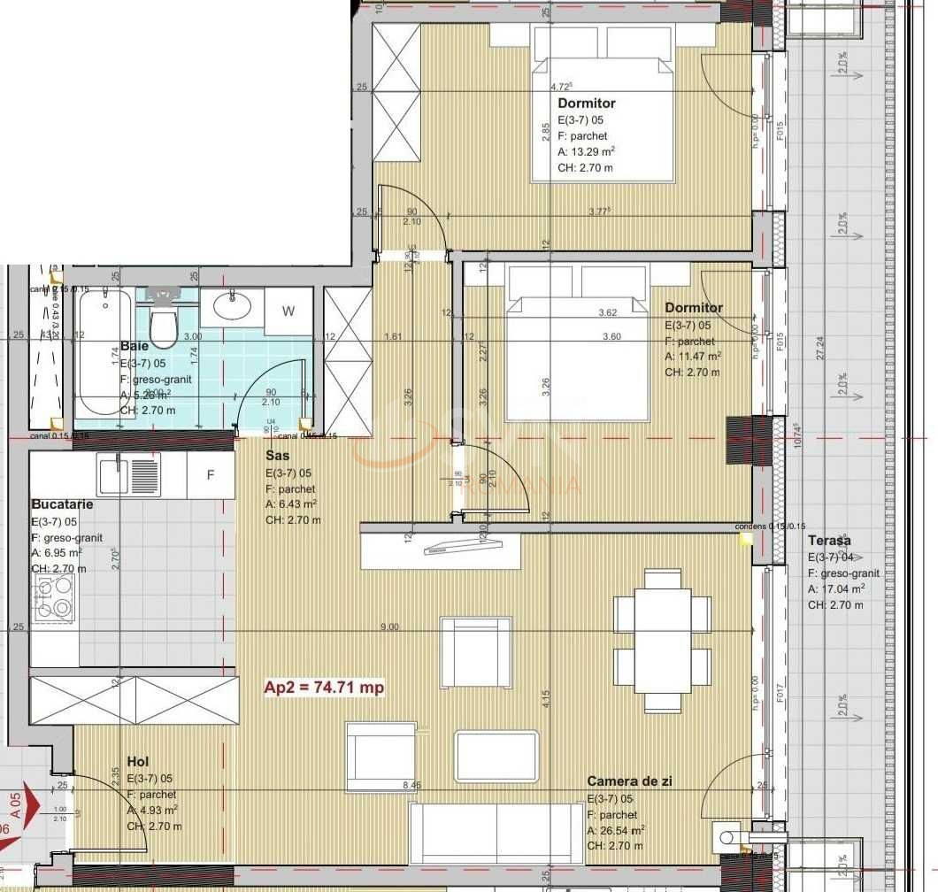
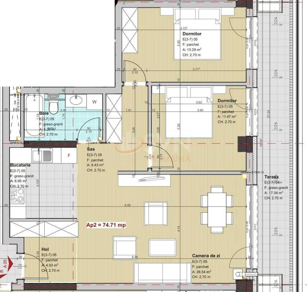
Suprafata utila este de 74.71 mp si este compartimentat astfel: 2 dormitoare, living cu bucatarie, hol si baie. De asemenea beneficiaza de o terasa spatioasa de 17 mp.
Finisajele sunt moderne si se evidentiaza în pardoseala Rehau, centrala Ariston, termopane cu geam triplu, usa metalica antiefractie, vopsea lavabila videointerfon, parchet rezistent la apa si usi interioare din lemn.
Pentru a programa o vizionare nu ezitati sa ne contactati!
Atribute
An constructie 2022
Suprafata construita 82 mp
Suprafata utila 75 mp
Suprafata terasa 17 mp
Regim Inaltime 3 / 10
Etaj 3
Nr. camere 3 camere
Nr. bai 1
Nr. balcoane 0 balcoane
Confort 1
Compartimentare Semidecomandat
Tip constructie In bloc
Status constructie Finalizat
Disponibila incepand cu 2022-05-13
Judet Cluj
Oras/ Sector Cluj-Napoca
Zona Zorilor
Gps lat 46.750640
Gps lng 23.573719
Facilitati
Curent electric
Internet Wireless
Cablu TV
Geamuri termopan
Parchet
Gresie
Loc parcare subteran
Faianta
Gaz
Incalzire proprie
Mobilat
Bucatarie mobilata
Bloc reabiliat termic
Lift
Apartament cu 3 camere in zona Wings
Proprietate vanduta
Ai o proprietate similara? Vinde-o cu noi.
  Vinde apartament  
 
  
  
  
  
  
  
  
  
 