Fundeni 3 camere 84 mp 1 2023

Avem placerea de a va oferi spre vanzare un apartament de 3 camere situat in zona Fundeni - Dobroesti, in apropierea complexului comercial Dragonul Rosu.
Apartamentul este situat la etajul 1 al unui imobil cu 3 etaje finalizat in anul 2023.

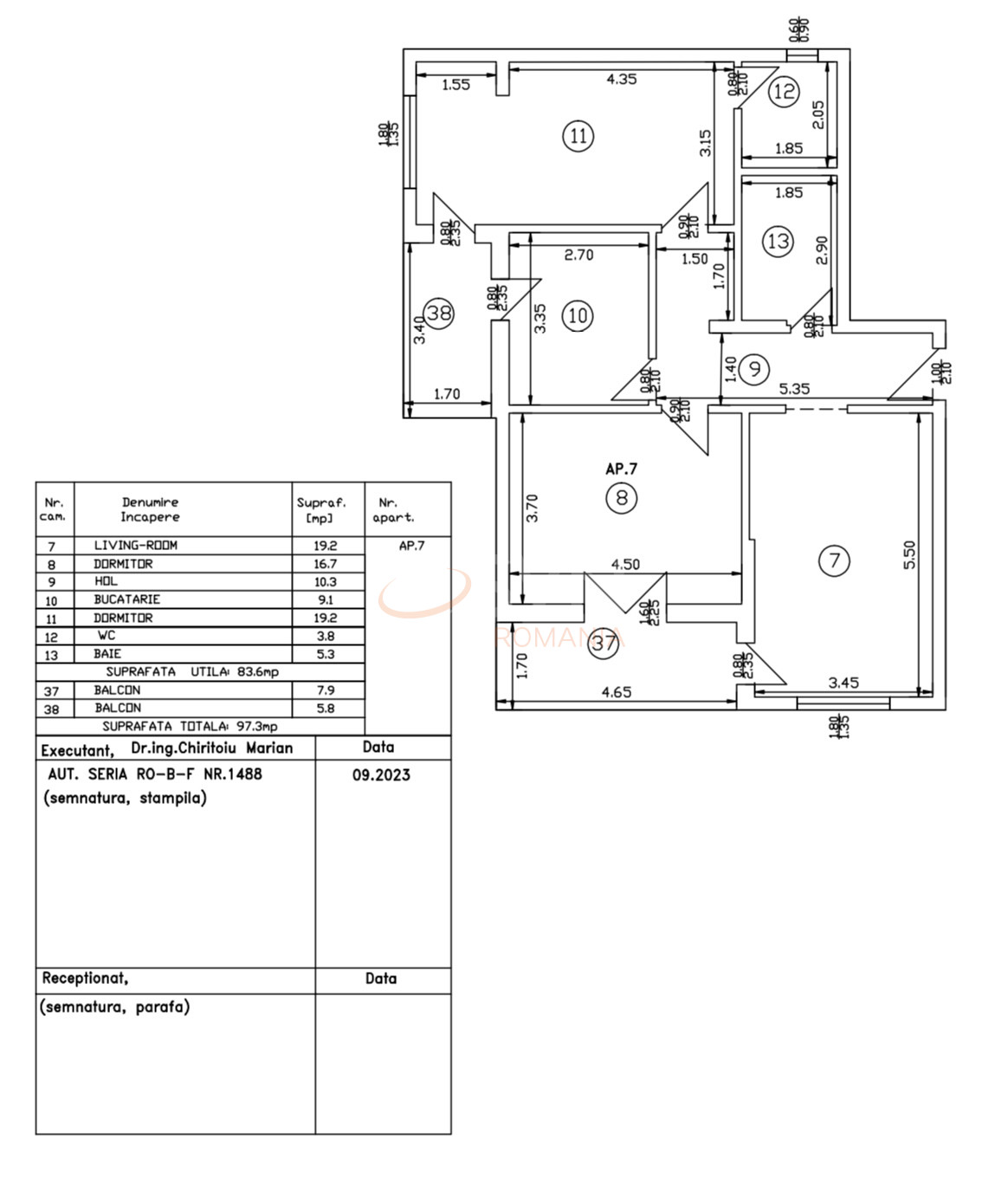
Apartamentul dispune de o impartire decomandata, avand o suprafata utila de 84 mp si este compus din: hol, living, bucatarie separata, 1 baie pe hol, 1 dormitor matrimonial cu baie proprie si 1 dormitor secundar, la care se adauga 2 balcoane, astfel suprafata totala a apartamentului fiind 97 mp.

Imobilul are o structura de rezistenta din beton armat, peretii exteriori si interiori sunt realizati din caramida Porotherm, izolatie termica exterioara din polistiren de 10 cm grosime.

Apartamentul beneficiaza de finisaje de calitate: parchet, gresie, faianta, centrala termica individuala marca Romstal, ferestre termopan cu tamplarie PVC Salamander.

Separat, se poate achizitiona si 1 loc de parcare exterior la pretul de 3000 euro.

Nu se accepta plata prin rate la dezvoltator.

In vecinatate se afla complexul comercial Dragonul Rosu, Scoala Campus, Institutul clinic Fundeni, gradinite, restaurante, farmacii si magazine.

Certificatul energetic va fi disponibil la vanzare.

Pentru mai multe detalii si vizionari va stau la dispozitie.

An constructie 2023

Suprafata construita 100 mp

Suprafata utila 84 mp

Regim Inaltime 1 / 3

Etaj 1

Nr. camere 3 camere

Nr. bai 2

Nr. balcoane 2 balcoane

Confort 1

Compartimentare Decomandat

Tip constructie In bloc

Status constructie Finalizat

Disponibila incepand cu 2024-03-05

Judet Ilfov

Oras/ Sector Est

Zona Fundeni

Gps lat 44.468480

Gps lng 26.172692

Cablu TV

Internet Wireless

Detector de gaze

Curent electric

Interfon

Internet prin cablu

Geamuri termopan

Repartitoare

Parchet

Apometre

Gresie

Telefon

Faianta

Gaz

Incalzire proprie

Calorifere

WC serviciu

Lift

Apartament 3 camere Bloc Nou Dobroesti

Proprietate vanduta

Ai o proprietate similara? Vinde-o cu noi.
Vinde apartament

Cod: REA1018265
Apartamente 3 camere vandute in Est, Ilfov Apartamente 3 camere de vanzare in Est, Ilfov

Afla primul de cele mai bune oferte
inainte sa ajunga pe piata

Aboneaza-te la newsletter

Aboneaza-te la notificari