Pantelimon 5 camere 180 mp 3 2022

SVN Romania va propune spre vanzare un superb Duplex in Pantelimon, la 10 km de centrul Bucurestiului.

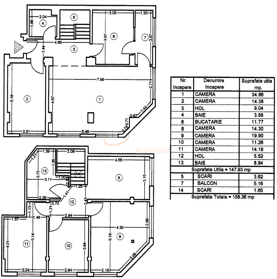
Apartamentul are o suprafata totala de 160 mp, este situat la etajele 3 si 4, intr-o cladire cu 4 niveluri aproape de lac si padure.

Apartamentul este compus din camera de zi, bucatarie, baie, balcon si scarile care duc catre etaj, unde regasim 4 camere si o baie.

Pantelimon beneficiaza de o infrastructura bine dezvoltata, cu scoli, gradinte, spitale, centre comerciale (3 km pana la Carrefour Vergului), de cult si agrement.

Zona este usor accesibila la transport public si are legaturi bune catre alte zone ale Bucurestiului si catre localitatile invecinate din judetul Ilfov.

Pentru mai multe informatii si programari pentru vizionare, va rog sa ne contactati.

An constructie 2022

Suprafata construita 200 mp

Suprafata utila 180 mp

Regim Inaltime 3 / 3

Etaj 3

Nr. camere 5 camere

Nr. bai 1

Nr. balcoane 0 balcoane

Confort Lux

Compartimentare Decomandat

Tip constructie In bloc

Status constructie Finalizat

Disponibila incepand cu 2024-03-02

Judet Ilfov

Oras/ Sector Est

Zona Pantelimon

Gps lat 44.442962

Gps lng 26.216671

Clasa energetica 1

Curent electric

Internet Wireless

Supraveghere video

Internet prin cablu

Interfon

Supraveghere 24/7

Cablu TV

Internet prin fibra optica

Geamuri termopan

Repartitoare

Parchet

Apometre

Gresie

Faianta

Gaz

Calorifere

Incalzire proprie

Aer conditionat

Lift

Penthouse 5 Camere I Duplex I Pantelimon

Proprietate vanduta

Ai o proprietate similara? Vinde-o cu noi.
Vinde apartament

Cod: REA1017412

Proprietati similare

Ilfov, Sud, Bragadiru

Apartament, 5 camere

135 mp 3 2009

140.000 EUR

Detalii
Apartamente 5 camere vandute in Est, Ilfov Apartamente 5 camere de vanzare in Est, Ilfov

Afla primul de cele mai bune oferte
inainte sa ajunga pe piata

Aboneaza-te la newsletter

Aboneaza-te la notificari