Pipera 2 camere 51.59 mp P 2021

SVN Residentialist Floreasca va propune spre vanzare un apartament modern cu 2 camere, situat la parter, intr-un ansamblu rezidential nou, conceput dupa standarde inalte de calitate si siguranta.

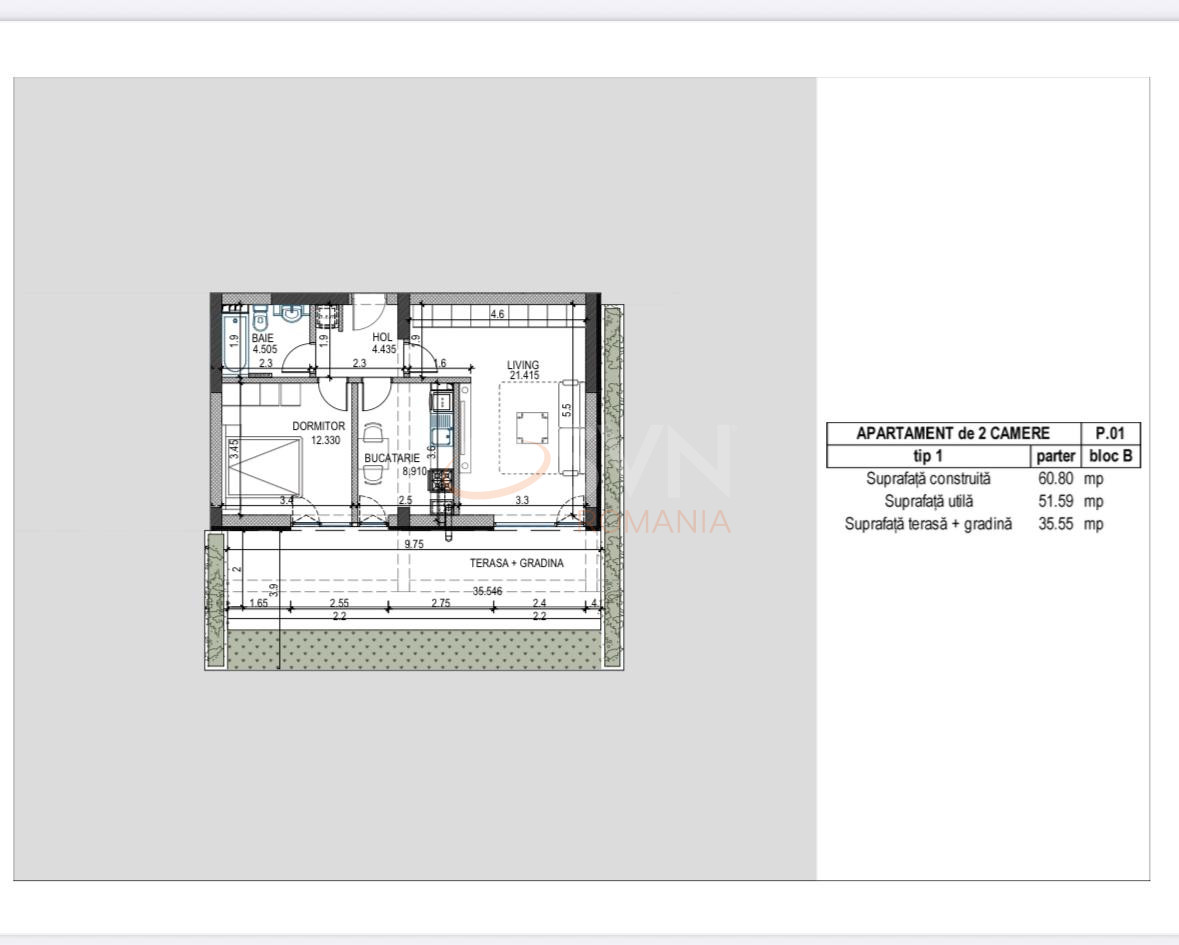
Proprietatea are o suprafata utila de 51,59 mp, la care se adauga o terasa si o curte exterioara in forma de L, ce insumeaza 76,55 mp – un spatiu ideal pentru relaxare, gradinarit sau amenajarea unei zone de dining in aer liber. Aceasta combinatie intre interior si exterior transforma apartamentul intr-o alegere unica pentru cei care isi doresc confort si intimitate.

Blocul este construit pe o structura solida cu cadre din beton Heidelberg B300, zidarie BCA cu grosimi de 30 cm la peretii exteriori si 15 cm la cei interiori, iar termoizolatia este realizata cu polistiren expandat de 10 cm, asigurand astfel o eficienta energetica superioara si un climat interior confortabil pe tot parcursul anului.

Un alt avantaj important il reprezinta faptul ca apartamentul se vinde nemobilat si neutilat, oferind viitorului proprietar libertatea deplina de a personaliza si amenaja locuinta dupa propriile preferinte, fara compromisuri si fara costuri suplimentare pentru inlaturarea unui mobilier standard.

Pretul de vanzare este de 138.654 EUR + TVA.
Parcare Acoperita 15.000 EUR + TVA

Fotografiile cu apartamentul la gri sunt prezentate cu titlu informativ, pentru a oferi o perspectiva clara asupra compartimentarii si potentialului real al spatiului.

Aceasta proprietate imbina perfect siguranta unei constructii noi, avantajul materialelor premium si libertatea de a crea un camin personalizat, completat de un spatiu exterior generos si versatil.


Vizionarea acestui imobil se face doar în baza semnarii unui acord de vizionare

An constructie 2021

Suprafata construita 128.14 mp

Suprafata utila 51.59 mp

Suprafata terasa 76.55

Regim Inaltime P / 5

Etaj P

Nr. camere 2 camere

Nr. bai 1

Nr. balcoane 0 balcoane

Confort 1

Compartimentare Decomandat

Tip constructie In bloc

Status constructie Finalizat

Disponibila incepand cu 2025-08-29

Judet Bucuresti

Oras/ Sector Sector 1

Zona Pipera

Gps lat 44.524131

Gps lng 26.143364

Nr. terase 1

Curent electric

Internet prin fibra optica

Internet Wireless

Interfon

Detector de gaze

Supraveghere video

Geamuri termopan

Parchet

Apometre

Gresie

Faianta

Gaz

Loc parcare exterior

Incalzire proprie

Calorifere

Lift

Valoare proprietate (€)

Perioada (ani)

Procent avans (20.798 €)


Suma creditata 117.856

Dobanda 4.9%

Rata lunara 2.914 lei

Broker Imobiliar

Alina Rezmerita , Consultant imobiliar Vezi toate proprietatile

0317100200

Apartament 2 camere cu terasa finisaje premium Pipera

Pret vanzare + TVA
138.654 €

Telefon Consultant imobiliar
0317100200

Cod: REA1007758

Proprietati similare

Bucuresti, Pipera

2 camere cu loc parcare exterior inclus

43.74 mp P 2022

137.000 EUR

Detalii

Bucuresti, Pipera

Apartament, 2 camere

54.34 mp 1 2021

144.000 EUR

Detalii

Bucuresti, Pipera

2 camere cu loc parcare subteran inclus

66.11 mp 3 2017

135.000 EUR

Detalii

Bucuresti, Pipera

2 camere cu loc parcare exterior inclus

64 mp 2 2019

133.000 EUR

Detalii

Bucuresti, Pipera

Apartament, 2 camere

69 mp 5 2027

150.964 EUR

Detalii

Bucuresti, Pipera

Apartament, 2 camere

67.9 mp 3 2027

147.016 EUR

Detalii

Bucuresti, Pipera

Apartament, 2 camere

62.55 mp 5 2027

133.386 EUR

Detalii

Bucuresti, Pipera

Apartament, 2 camere

69 mp 6 2027

150.776 EUR

Detalii
Apartamente 2 camere vandute in Pipera, Bucuresti Apartamente 2 camere de vanzare in Pipera, Bucuresti

Afla primul de cele mai bune oferte
inainte sa ajunga pe piata

Aboneaza-te la newsletter

Aboneaza-te la notificari