Centru 3 camere 68.87 mp 1 2023

Apartamentul propus spre achizitionare a fost preluat si fotografiat, de catre un broker al SVN Romania| Cluj, una dintre cele mai mari companii de consultanta imobiliara, ce face parte din grupul SVN, brand recunoscut, la nivel mondial, pentru calitatea serviciilor imobiliare oferite.
LOCALIZARE:
Acest imobil este situat in cartierul Floresti fiind pozitionat in imediata apropiere de Vivo Mall.
DATE TEHNICE:
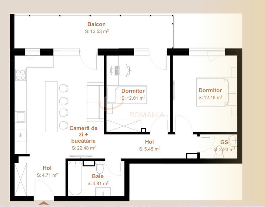
Proprietatea este dispusa pe 3 camere, dupa cum urmeaza:
-hol de acces;
-Camera de zi+ bucatarie cu deschidere la terasa.
-2 Dormitoare
-2 Bai.
FINISAJE:
Imobilul este semifinisat.
DOTARI:
Proprietatea detine:
- centrala termica;
- tamplarie PVC, cu geam termopan;
- usa metalica;
incalzire in pardoaseala

AVANTAJE:
- zona linistita
- priveliste deoasebita spre oras

IMPREJURIMI:
Apartamentul este situat intr-o zona de vile si blocuri, accesul fiind unul facil.
Accesul auto, pana la zona de centru a orasului 17, pana la Vivo se poate face in cca. 3 minute.

OBSERVATII:
Apartamentul propus spre achizitionare a fost preluat si fotografiat, de catre un broker al SVN Romania| Cluj, una dintre cele mai mari companii de consultanta imobiliara, ce face parte din grupul SVN, brand recunoscut, la nivel mondial, pentru calitatea serviciilor imobiliare oferite.
LOCALIZARE:
Acest imobil este situat in cartierul Floresti fiind pozitionat in imediata apropiere de Metro.
DATE TEHNICE:
Proprietatea este dispusa pe 3 camere, dupa cum urmeaza:
-Hol de acces;
-Camera de zi+ bucatarie cu deschidere la terasa.
-2Dormitoare
-2 Bai
FINISAJE:
Imobilul este semifinisat.
DOTARI:
Proprietatea detine:
- centrala termica;
- tamplarie PVC, cu geam termopan;
- usa metalica;
- incalzire in pardoaseala
- posibilitatea de a achizitiona parcare subterana la 10.000Euro + TVA.
AVANTAJE:
- zona linistita
- priveliste deoasebita spre oras
IMPREJURIMI:
Apartamentul este situat intr-o zona de vile si blocuri, accesul fiind unul facil.
Accesul auto, pana la zona de centru a orasului 17 pana la Vivo se poate face in cca. 3 minute.

OBSERVATII:
Posibilitatea de achizitionare parcare subterana la 10.000 Euro + TVA.
Zona rezidentiala de interes inalt;
Se accepta achizitionarea prin accesarea unui credit bancar;
SVN Romania | Cluj, in calitate de companie imobiliara, care promoveaza acest imobil, incearca sa ofere detalii tehnice, in raport cu situatia reala a proprietatii prezentate, cu amendamentul ca acestea nu constituie sau nu fac parte dintr-o oferta aferenta unui contract.

Datele enumerate in aceasta specificatie, au fost preluate verbal, ca ghid informativ, pentru potentialii cumparatori, in momentul preluarii spre promovare, a imobilului mai sus prezentat, de la apartinatorul de drept, acestea nefiind verificate in amanunt, de noi, pentru a va oferi o garantie. Astfel, toata documentatia va fi verificata, integral, in momentul in care se solicita actele proprietatii, ca si pas premergator contractului de vanzare - cumparare, in cazul in care exista un interes pentru acest imobil.

Daca aveti nevoie de clarificari sau informatii suplimentare, broker-ul care administreaza aceasta oferta, va poate oferi detalii complete.

Nota: Structura acestei prezentari si informatiile mai sus detaliate, nu pot fi preluate, fara acordul scris al SVN Romania | Cluj.

Zona rezidentiala de interes inalt;
Se accepta achizitionarea prin accesarea unui credit bancar;
SVN Romania | Cluj, in calitate de companie imobiliara, care promoveaza acest imobil, incearca sa ofere detalii tehnice, in raport cu situatia reala a proprietatii prezentate, cu amendamentul ca acestea nu constituie sau nu fac parte dintr-o oferta aferenta unui contract.

Datele enumerate in aceasta specificatie, au fost preluate verbal, ca ghid informativ, pentru potentialii cumparatori, in momentul preluarii spre promovare, a imobilului mai sus prezentat, de la apartinatorul de drept, acestea nefiind verificate in amanunt, de noi, pentru a va oferi o garantie. Astfel, toata documentatia va fi verificata, integral, in momentul in care se solicita actele proprietatii, ca si pas premergator contractului de vanzare - cumparare, in cazul in care exista un interes pentru acest imobil.

Daca aveti nevoie de clarificari sau informatii suplimentare, broker-ul care administreaza aceasta oferta, va poate oferi detalii complete.

Nota: Structura acestei prezentari si informatiile mai sus detaliate, nu pot fi preluate, fara acordul scris al SVN Romania | Cluj.

An constructie 2023

Suprafata construita 88.87 mp

Suprafata utila 68.87 mp

Suprafata terasa 12 mp

Regim Inaltime 1 / 3

Etaj 1

Nr. camere 3 camere

Nr. bai 2

Nr. balcoane 1 balcon

Confort 1

Compartimentare Semidecomandat

Tip constructie In bloc

Status constructie Finalizat

Disponibila incepand cu 2023-04-03

Judet Cluj

Oras/ Sector Floresti

Zona Centru

Gps lat 46.745677

Gps lng 23.529964

Curent electric

Detector de gaze

Interfon

Geamuri termopan

Repartitoare

Apometre

Gaz

Incalzire prin pardoseala

Incalzire proprie

Lift

Apartament zona Vivo

Proprietate vanduta

Ai o proprietate similara? Vinde-o cu noi.
Vinde apartament

Cod: REA1014591
Apartamente 3 camere vandute in Floresti, Cluj Apartamente 3 camere de vanzare in Floresti, Cluj

Afla primul de cele mai bune oferte
inainte sa ajunga pe piata

Aboneaza-te la newsletter

Aboneaza-te la notificari