Nord 2 camere 54.09 mp 1 2024

SVN Romania va propune spre vanzare un apartament de 2 camere in zona Mamaia Nord, situat in prima linie la mare, cu vedere frontala la mare.

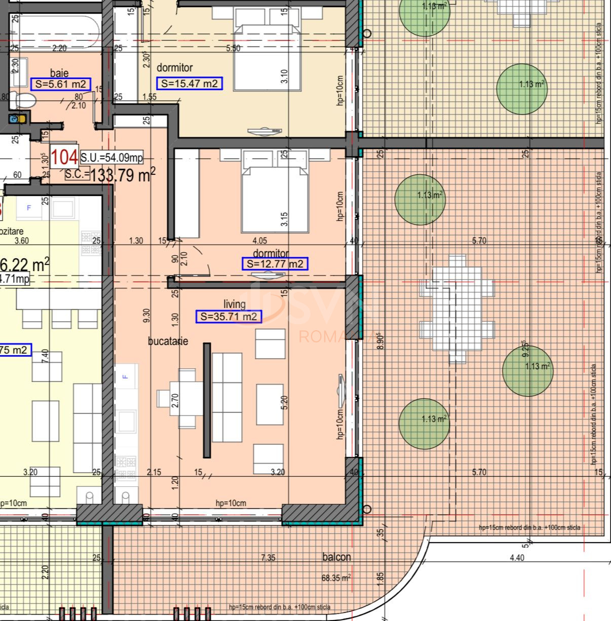
Apartamentul este semidecomandat, cu o suprafata utila de 54,09 mp si o terasa de 68,35 mp, situat la etajul 1/9.

Blocul este ridicat pe 86 de piloni la 23m adancime, D+P+9 etaje, cu fatada ventilata din ceramica 60/120, beton cu compartimentarea din BCA, hidroizolatie, parcare subterana la demisol si 3 spatii comerciale la parter.

Apartamentul ofera o priveliste frontala catre mare cu o terasa privata in prima linie. Din cadrul terasei se poate privi rasaritul. Este locul perfect pentru a-ti petrece serile de vara intr-un ambient intim si placut.

Locuinta dispune de tamplarie din aluminiu cu sticla tripan ( usi culisante ), marmura terasa, balustrada in menghina cu sticla securizata, incalzire in pardoseala. Acestea se predau finisate complet, urmand ca viitorul proprietar sa il mobileze dupa bunul sau plac.

Pretul de vanzare al acestui apartament este de 250 000 euro + TVA.

Acest apartament merita toata atentia dvs, pentru mai multe informatii contactul meu va sta la dispozitie!

An constructie 2024

Suprafata construita 133.79 mp

Suprafata utila 54.09 mp

Suprafata terasa 68.35

Regim Inaltime 1 / 9

Etaj 1

Nr. camere 2 camere

Nr. bai 1

Nr. balcoane 1 balcon

Confort 1

Compartimentare Semidecomandat

Tip constructie In bloc

Status constructie Nefinalizat

Disponibila incepand cu 2024-05-23

Judet Constanta

Oras/ Sector Mamaia

Zona Nord

Gps lat 44.310038

Gps lng 28.630172

Complex rezidential Wave Residence - Mamaia Nord

Detector de gaze

Interfon

Supraveghere video

Geamuri termopan

Parchet

Apometre

Gresie

Loc parcare subteran

Faianta

Gaz

Incalzire prin pardoseala

Incalzire proprie

Aer conditionat

Lift

Apartament 2 camere I Terasa I Vedere frontala la mare I Mamaia Nord I De vanzar

Proprietate vanduta

Ai o proprietate similara? Vinde-o cu noi.
Vinde apartament

Cod: REA1019213
Apartamente 2 camere vandute in Mamaia, Constanta Apartamente 2 camere de vanzare in Mamaia, Constanta

Afla primul de cele mai bune oferte
inainte sa ajunga pe piata

Aboneaza-te la newsletter

Aboneaza-te la notificari