Nord 2 camere 33 mp 1 2021

SVN Romania va propune spre vanzare un apartament de 2 camere cu vedere laterala la mare, in Mamaia Nord.

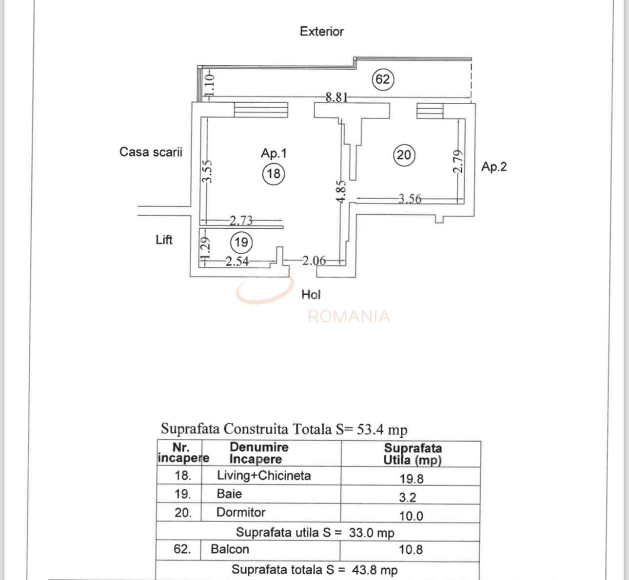
Apartamentul este semidecomandat, cu o suprafata utila de 33,00 mp si un balcon de 10,80 mp cu vedere laterala la mare cu finisaje de calitate si atentie sporita la detalii.

De asemenea, apartamentul dispune de centrala proprie pe gaze cu incalzire prin pardoseala, 2 unitati de aer conditionat si 2 televizoare smart.

Mobilierul este facut pe comanda, conform fiecarei zone de amenajare, acesta achizitionandu-se separat la un pret avantajos. Fotografiile sunt doar de prezentare.

Ansamblul rezidential este prevazut cu parcare privata, supraveghere video 24h, beach bar, doua plaji private, Beach Club, locul in care dam startul celor mai de neuitat nopti de la mare si lounge & kids, care este o locatie excelenta pentru cei mici, mai ales când vine vorba de distractie si voie buna, plaja fiind prevazuta cu un spatiu de joaca cu numeroase tobogane gonflabile si trambuline, copiii având accesul gratuit, o zona de lounge, dar si o piscina îngropata in nisip care este destinata si adultilor in plus veti beneficia de un discount in valoare de 20% la plajile noastre, iar la restaurantul din incinta complexului se va aplica discountul de 10%.

Contactul meu va sta la dispozitie pentru mai multe informatii!

An constructie 2021

Suprafata construita 53.4 mp

Suprafata utila 33 mp

Suprafata terasa 10.8 mp

Regim Inaltime 1 / 9

Etaj 1

Nr. camere 2 camere

Nr. bai 1

Nr. balcoane 1 balcon

Confort Lux

Compartimentare Semidecomandat

Tip constructie In bloc

Status constructie Finalizat

Disponibila incepand cu 2024-04-25

Judet Constanta

Oras/ Sector Mamaia

Zona Nord

Gps lat 44.308640

Gps lng 28.629249

Supraveghere 24/7

Interfon

Geamuri termopan

Parchet

Gresie

Faianta

Gaz

Incalzire prin pardoseala

Incalzire proprie

Mobilat

Aer conditionat

Bucatarie mobilata

Lift

Studio Dublu I Mamaia Nord I De vanzare

Proprietate vanduta

Ai o proprietate similara? Vinde-o cu noi.
Vinde apartament

Cod: REA1019429
Apartamente 2 camere vandute in Mamaia, Constanta Apartamente 2 camere de vanzare in Mamaia, Constanta

Afla primul de cele mai bune oferte
inainte sa ajunga pe piata

Aboneaza-te la newsletter

Aboneaza-te la notificari