În Mamaia Nord, acolo unde diminețile încep cu lumină bună și aer sărat, iar vara pare că durează mai mult, acest apartament din ansamblul ONE este potrivit atât pentru locuire permanentă, cât și pentru vacanțe sau investiție. Proximitatea plajei și atmosfera specifică litoralului completează firesc un spațiu gândit pentru confort și funcționalitate.

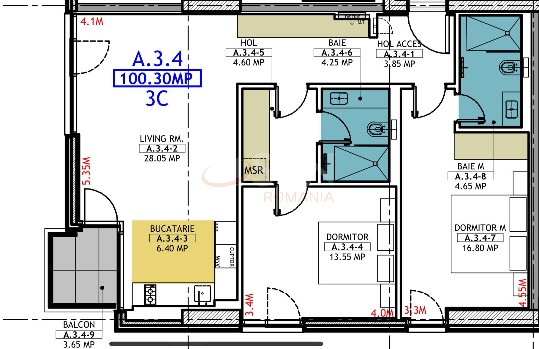
Cu o suprafață construită de 100,3 mp, locuința este gândită aerisit și funcțional, cu spații generoase și multă lumină naturală. Livingul – un loc potrivit atât pentru seri liniștite după o zi la plajă, cât și pentru momente petrecute cu prietenii,are acces direct către balcon. Zona de zi este completată de două dormitoare confortabile, potrivite atât pentru familie, cât și pentru oaspeți.

Cele două băi adaugă un plus de confort și flexibilitate, un detaliu apreciat atât în locuirea permanentă, cât și în cazul închirierii. Balconul completează firesc spațiul interior, fiind locul ideal pentru cafeaua de dimineață sau un moment de respiro seara.

Apartamentul se vinde impreuna cu mobilierul fix reprezentat de mobila de bucatarie,hol si baile moblate si utilate.

Zona Mamaia Nord – ONE este una dintre cele mai căutate de pe litoral, datorită apropierii de plajă, restaurantelor, cafenelelor și facilităților premium, dar și accesului facil către punctele importante din zonă. Este un loc care atrage atât turiști, cât și rezidenți, menținând constant interesul pentru închiriere.

Prin poziționare, compartimentare și calitatea construcției, acest apartament reprezintă o alegere echilibrată – un spațiu în care te poți muta, pe care îl poți transforma într-o casă de vacanță sau pe care îl poți privi ca pe o investiție cu potențial,pe termen mediu și lung.

Atat compartimentarea eficienta cat si pozitionarea avantajoasa recomanda aceasta proprietate drept o buna investitie!

Pentru oricare detalii, nu ezitati sa ma contactati!

An constructie 2022

Suprafata construita 100.3 mp

Suprafata utila 85.8 mp

Suprafata terasa 3.6 mp

Regim Inaltime 3 / 4

Etaj 3

Nr. camere 3 camere

Nr. bai 2

Nr. balcoane 1 balcon

Confort Lux

Compartimentare Decomandat

Tip constructie In bloc

Status constructie Finalizat

Disponibila incepand cu 2026-02-02

Judet Constanta

Oras/ Sector Mamaia

Zona Nord

Gps lat 44.267873

Gps lng 28.620559

Supraveghere 24/7

Detector de gaze

Interfon

Internet Wireless

Cablu TV

Curent electric

Internet prin cablu

Parchet

Apometre

Faianta

Gaz

Incalzire proprie

WC serviciu

Mobilat

Aer conditionat

Bucatarie mobilata

Lift

Valoare proprietate (€)

Perioada (ani)

Procent avans (49.500 €)


Suma creditata 280.500

Dobanda 4.9%

Rata lunara 6.935 lei

Broker Imobiliar

Raluca Dobrisan , Consultant imobiliar Vezi toate proprietatile

0317100200

Apartament 3 camere l ONE Mamaia Nord I Faza I

Pret vanzare
330.000 €

Telefon Consultant imobiliar
0317100200

Cod: REA1026958
Apartamente 3 camere vandute in Mamaia, Constanta Apartamente 3 camere de vanzare in Mamaia, Constanta

Afla primul de cele mai bune oferte
inainte sa ajunga pe piata

Aboneaza-te la newsletter

Aboneaza-te la notificari