Mogosoaia 3 camere 74.2 mp 5 2022

Ansamblul in faza I cuprinde 312 apartamente de 1,2,3 camere cu terase si gradini generoase si duplexuri la ultimele etaje.
Construite din materiale de top si folosind cele mai noi tehnologii din domeniu, numeroasele apartamente iti vor depasi toate asteptarile.Printre dotari enumeram incalzire în pardoseala, aer conditionat,obiecte sanitare Hansgrohe, centrala Saunier duval.
Gandit ca un spatiu in care poti avea totul la indemana, complexul rezidential dispune de piscina, loc de joaca copii, restaurante, supermarket, gradinita, banca, iar la strada principala vei regasi un mini mall, dar si un centru comercial.
Suprafetele apartamentelor pornesc de la 45,63 mp utili pana la 161 mp ultili.

An constructie 2022

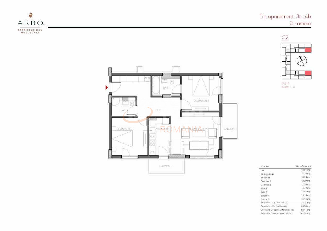
Suprafata construita 92.44 mp

Suprafata utila 74.2 mp

Suprafata terasa 10.03 mp

Regim Inaltime 5 / 10

Etaj 5

Nr. camere 3 camere

Nr. bai 2

Nr. balcoane 1 balcon

Confort 1

Tip constructie In bloc

Status constructie Finalizat

Disponibila incepand cu 2022-10-04

Judet Ilfov

Oras/ Sector Nord

Zona Mogosoaia

Gps lat 44.537156

Gps lng 25.993813

Complex rezidential ARBO RESIDENCE

Internet Wireless

Curent electric

Interfon

Internet prin cablu

Geamuri termopan

Parchet

Apometre

Boxa

Gresie

Loc parcare subteran

Faianta

Gaz

Incalzire proprie

WC serviciu

Aer conditionat

Lift

Residentialist by SVN Romania:

Proprietate vanduta

Ai o proprietate similara? Vinde-o cu noi.
Vinde apartament

Cod: REA1011524
Apartamente 3 camere vandute in Nord, Ilfov Apartamente 3 camere de vanzare in Nord, Ilfov

Afla primul de cele mai bune oferte
inainte sa ajunga pe piata

Aboneaza-te la newsletter

Aboneaza-te la notificari