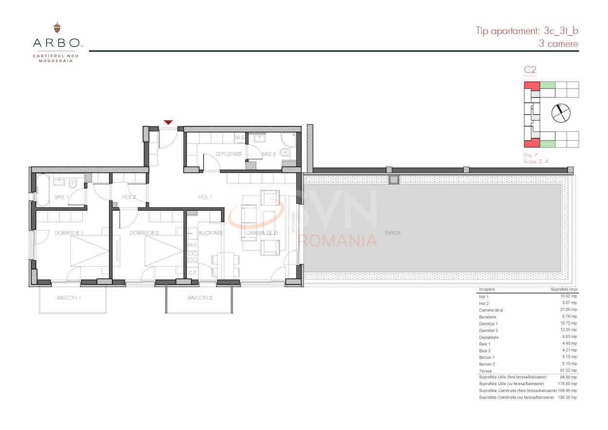
Mogosoaia 3 camere 84.9 mp 7 2022

Ansamblul in faza I cuprinde 312 apartamente de 1,2,3 camere cu terase si gradini generoase si duplexuri la ultimele etaje.
Construite din materiale de top si folosind cele mai noi tehnologii din domeniu, numeroasele apartamente iti vor depasi toate asteptarile.Printre dotari enumeram incalzire în pardoseala, aer conditionat,obiecte sanitare Hansgrohe, centrala Saunier duval.
Gandit ca un spatiu in care poti avea totul la indemana, complexul rezidential dispune de piscina, loc de joaca copii, restaurante, supermarket, gradinita, banca, iar la strada principala vei regasi un mini mall, dar si un centru comercial.
Suprafetele apartamentelor pornesc de la 45,63 mp utili pana la 161 mp ultili.

An constructie 2022

Suprafata construita 104.5 mp

Suprafata utila 84.9 mp

Suprafata terasa 81.55

Regim Inaltime 7 / 10

Etaj 7

Nr. camere 3 camere

Nr. bai 2

Nr. balcoane 1 balcon

Confort 1

Tip constructie In bloc

Status constructie Finalizat

Disponibila incepand cu 2022-10-04

Judet Ilfov

Oras/ Sector Nord

Zona Mogosoaia

Gps lat 44.537155

Gps lng 25.993812

Complex rezidential ARBO RESIDENCE

Nr. terase 1

Interfon

Internet prin cablu

Internet Wireless

Curent electric

Geamuri termopan

Parchet

Apometre

Boxa

Gresie

Loc parcare subteran

Faianta

Gaz

Incalzire proprie

WC serviciu

Aer conditionat

Lift

Residentialist by SVN Romania:

Proprietate vanduta

Ai o proprietate similara? Vinde-o cu noi.
Vinde apartament

Cod: REA1011525

Proprietati similare

Ilfov, Vest, Chitila

Apartament, 3 camere

80 mp 1 2007

149.900 EUR

Detalii

Ilfov, Nord, Otopeni

3 camere cu loc parcare exterior inclus

73.6 mp 1 2008

149.000 EUR

Detalii

Ilfov, Est, Voluntari

3 camere cu loc parcare exterior inclus

130.77 mp M 2007

159.000 EUR

Detalii

Ilfov, Nord, Tunari

3 camere cu loc parcare exterior inclus

72.3 mp P 2023

142.820 EUR

Detalii
Apartamente 3 camere vandute in Nord, Ilfov Apartamente 3 camere de vanzare in Nord, Ilfov

Afla primul de cele mai bune oferte
inainte sa ajunga pe piata

Aboneaza-te la newsletter

Aboneaza-te la notificari