Otopeni 3 camere 72 mp 2 2019

Avem placerea de a va oferi un apartament de 3 camere, situat in complexul Oituz Residence in zona Otopeni

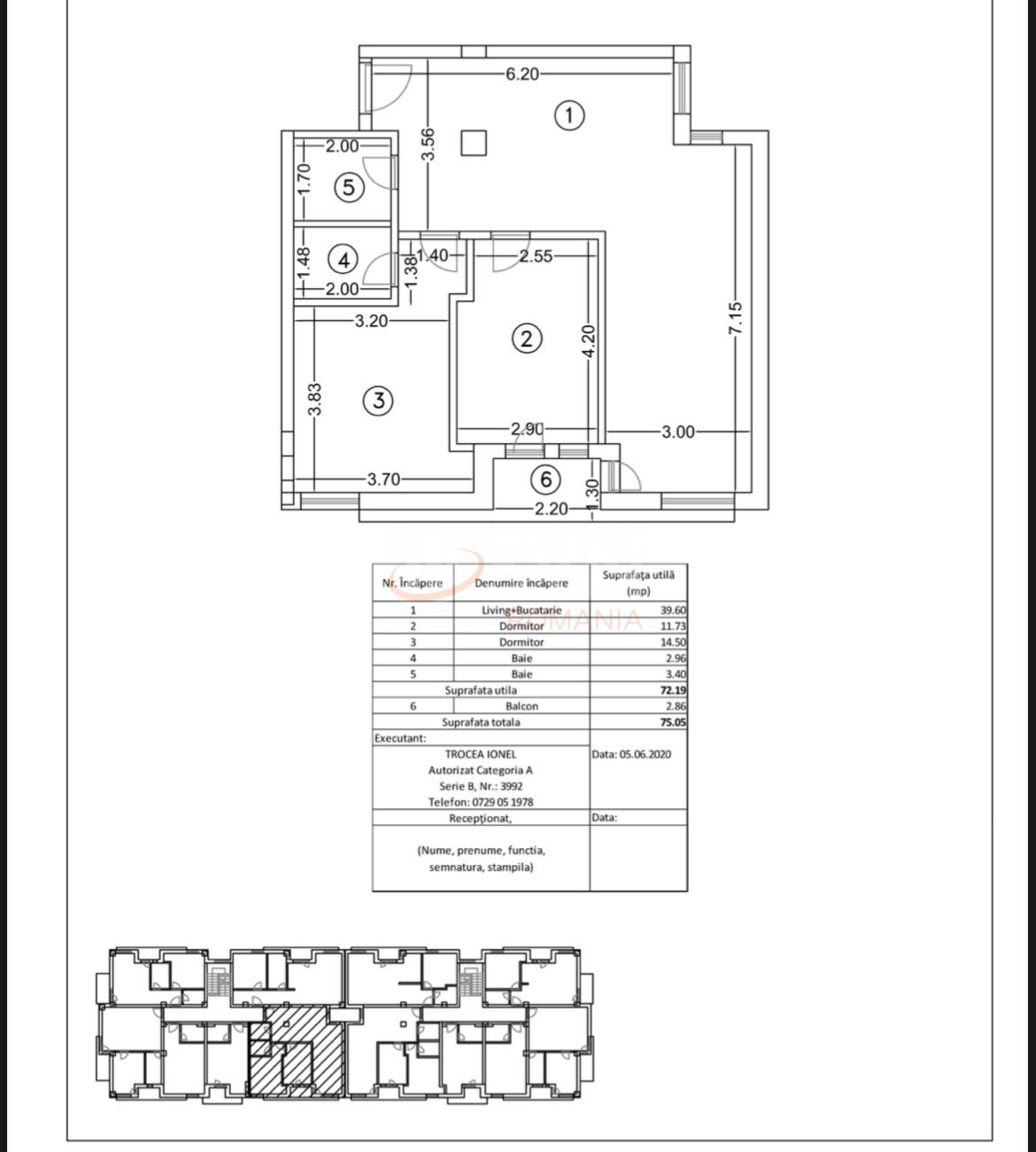
Apartamentul este compartimentat decomandat, living cu bucatarie open space, doua dormitoare, doua bai si un balcon de 3 mp

Locul de parcare se achizitioneaza separat la pretul de 3000 euro plus tva

Complexul Rezidential Oituz Residence a fost finalizat in anul 2020, are in total 54 de apartamente si un spatiu comercial

Finisajele sunt de inalta calitate, alese cu grija pentru a oferi un confort ridicat:

- Tamplarie PVC cu geam dublu Salamander
- Prize si intrerupatoare de la Gewiss
- Gresie, faianta, parchet
- Usi interior
- Calorifere Romstal
- Obiecte sanitare Cersanit

Detalii constructie:
- Fundatia radier general
- Ansamblul structural: stalpi, planseu si grinzi este realizat din beton armat
- Beton B350
- Fier BST500S
- Compartimentari exterioare si interioare – caramida de 25 cm la exterior, 25 cm grosime intre apartamente si 11.5 in apartament plus tenicuiala
- Izolatie exterioara EPS 80 de 10 cm

Vecinatati:

· Acces auto prin bariera cu telecomanda;
· Acces securizat;
· Locuri de parcare pentru vizitatori;
· Aproape de noua linie de metrou;
· Supermarketuri si magazine in apropiere
· Piata agroalimentara Otopeni.
· Mijloace de transport ( linia albastra )

5 minute pana la Aeroport;
• 12 minute pana la Therme;
• 17 minute pana in Piata Victoriei;
• 27 minute pana in Piata Unirii;


Nu detinem informatii in legatura cu certificatul energetic al imobilului, acesta va fi disponibil la momentul vanzarii

Pentru mai multe detalii si vizionari, ma puteti contacta

An constructie 2019

Suprafata construita 75 mp

Suprafata utila 72 mp

Suprafata terasa 3 mp

Regim Inaltime 2 / 3

Etaj 2

Nr. camere 3 camere

Nr. bai 2

Nr. balcoane 0 balcoane

Confort 1

Tip constructie In bloc

Status constructie Finalizat

Disponibila incepand cu 2022-02-04

Judet Ilfov

Oras/ Sector Nord

Zona Otopeni

Gps lat 44.554755

Gps lng 26.079262

Supraveghere video

Curent electric

Interfon

Geamuri termopan

Repartitoare

Parchet

Apometre

Gresie

Faianta

Gaz

Loc parcare exterior

3 CAMERE -OTOPENI-OITUZ RESIDENCE

Proprietate vanduta

Ai o proprietate similara? Vinde-o cu noi.
Vinde apartament

Cod: REA1008631
Apartamente 3 camere vandute in Nord, Ilfov Apartamente 3 camere de vanzare in Nord, Ilfov

Afla primul de cele mai bune oferte
inainte sa ajunga pe piata

Aboneaza-te la newsletter

Aboneaza-te la notificari