Otopeni 4 camere 179 mp 3 2012

SVN ROMANIA va propune spre vanzare acest apartament tip Penthouse cu o terasa generoasa -O Oaza de Liniste pentru familiile cu copii in Otopeni!
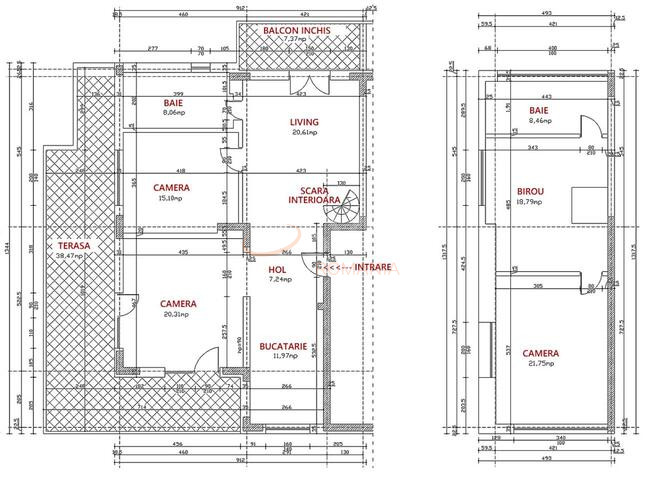
Bun venit in noul tau camin, un apartament tip penthouse absolut spectaculos, situat ideal in Otopeni - Odai, intr-un imobil cochet cu doar 8 apartamente. Cu o suprafata generoasa de 179 mp (5 camere), dispus pe doua niveluri conectate printr-o scara interioara, acest loc magic devine cu usurinta locuinta perfecta pentru o familie cu copii.

Caracteristici cheie:
3 dormitoare spatioase dispuse pe doua niveluri, asigurand intimitatea fiecarui membru al familiei.
2 bai moderne, pentru confortul zilnic.
Living luminos si primitor, locul ideal pentru relaxare si petrecerea timpului in familie.
Birou luminos, perfect pentru cei care lucreaza de acasa sau pentru tinerii scolari.
Bucatarie practica si luminoasa, pe gustul celui mai exigent master-chef, cu acces direct pe terasa.
Incalzire in pardoseala pentru confort termic sporit.
Balcon inchis si terasa generoasa acoperita, o veritabila gradina la inaltime. Un spatiu magic, unde veti petrece clipe de neuitat, organizand cine in aer liber admirand apusul sau cerul instelat in serile linistite.
Privelisti panoramice impresionante, unice, cu deschidere la apus si rasarit, fara a fi deranjati de vecini incomozi (terenurile din jur sunt deja construite).
Cel mai bun pret/mp util. Acest apartament este oferit la un pret convenabil, lasand loc in buget pentru personalizarea interioara dupa gusturile personale. Transformati acest spatiu intr-un camin unic si personalizat.
Nu va faceti griji in privinta parcarii! Apartamentul dispune de doua locuri de parcare, asigurandu-va ca venirea acasa este mereu o placere.

Locatie excelenta, ideala pentru familii cu copii:
Imobilul este inconjurat de vegetatie, copaci si plante mature, asemenea intregii zone. Apartamentul este situat in cea mai curata, linistita si civilizata zona, la doar cativa pasi de Parcul 1 Mai si terenurile de sport. Cu supermarketuri, gradinite, after-school si scoli in apropiere, vei avea tot ce-ti trebuie la indemana. Statia de autobuz de pe DN1 si linia locala de transport situate la cateva minute de mers pe jos, precum si viitoarea statie de metrou planificata in apropiere, asigura accesul facil si rapid la restul orasului Otopeni si Bucuresti. Noul Kaufland Otopeni aflat in constructie este la doar 100m distanta.

Aceasta oferta unica din Otopeni - Odai este cu adevarat o oportunitate de neegalat pentru o familie care apreciaza confortul, spatiul si apropierea de natura, bucurandu-se in acelasi timp de toate facilitatile urbane.
Nu rata sansa de a face din acest loc minunat noua ta casa!
Contacteaza-ne astazi pentru a programa o vizionare.

An constructie 2012

Suprafata construita 205 mp

Suprafata utila 179 mp

Suprafata terasa 38

Regim Inaltime 3 / 3

Etaj 3

Nr. camere 4 camere

Nr. bai 2

Nr. balcoane 1 balcon

Confort Lux

Compartimentare Decomandat

Tip constructie In bloc

Status constructie Finalizat

Disponibila incepand cu 2024-10-07

Judet Ilfov

Oras/ Sector Nord

Zona Otopeni

Gps lat 44.540898

Gps lng 26.064007

Nr. terase 1

Internet prin cablu

Internet prin fibra optica

Internet Wireless

Interfon

Supraveghere video

Supraveghere 24/7

Acoperis mansardat

Cablu TV

Curent electric

Geamuri termopan

Balcon inchis

Parchet

Apometre

Gresie

Faianta

Gaz

Loc parcare exterior

Incalzire prin pardoseala

Calorifere

Mobilat

Aer conditionat

Apartament Tip Penthouse I Scara Interioara I Otopeni

Proprietate vanduta

Ai o proprietate similara? Vinde-o cu noi.
Vinde apartament

Cod: REA1020055

Proprietati similare

Ilfov, Nord, Otopeni

4 camere cu loc parcare exterior inclus

81 mp 1 2022

179.000 EUR

Detalii

Ilfov, Nord, Tunari

Apartament, 4 camere

106 mp P 2023

177.900 EUR

Detalii
Apartamente 4 camere vandute in Nord, Ilfov Apartamente 4 camere de vanzare in Nord, Ilfov

Afla primul de cele mai bune oferte
inainte sa ajunga pe piata

Aboneaza-te la newsletter

Aboneaza-te la notificari