Aviatiei 2 camere 79.3 mp 5 2016

Va propunem spre vanzare un apartament de 2 camere, situat in zona Aviatiei, in apropiere de Metroul Aurel Vlaicu si Promenada Mall.

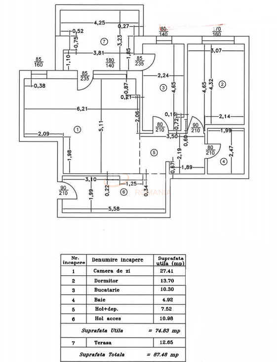
Apartamentul are o suprafata totala utila de 79 mp, este decomandat, are bucataria inchisa si un balcon de 6 mp.

Dispune de centrala termica individuala si este integral contorizat. Include finisaje lux: parchet, gresie, faianta, geamuri termopan, aer conditionat, usa metalica, internet prin fibra optica.

METROPOLITAN RESIDENCE AVIATIEI, este situat in cartierul Aviatiei, cu acces din strada Cpt. Av. Alexandru Serbanescu. Cu vecinatati precum cartierul Baneasa, Aviatorilor, Floreasca, accesul catre aproape orice zona a Capitalei se poate realiza foarte usor. Zona detine toate variantele de transport in comun, atat catre centrul Bucurestiului sau immprejurimi, dar si catre aeroporturi sau zone comerciale mari. Principalele strazi din acest cartier sunt: Barbu Vacarescu, Nicolae Caranfil, Soseaua Pipera si strada Cpt. Av. Alexandru Serbanescu.

Nu detinem informatii cu privire la clasa energetica a imobilului.

Pentru mai multe informatii, vizionari, contactul meu va sta la dispozitie!

An constructie 2016

Suprafata construita 85 mp

Suprafata utila 79.3 mp

Suprafata terasa 6 mp

Regim Inaltime 5 / 7

Etaj 5

Nr. camere 2 camere

Nr. bai 1

Nr. balcoane 1 balcon

Confort 1

Compartimentare Decomandat

Tip constructie In bloc

Status constructie Finalizat

Disponibila incepand cu 2024-04-16

Judet Bucuresti

Oras/ Sector Sector 1

Zona Aviatiei

Gps lat 44.481540

Gps lng 26.099694

Internet prin fibra optica

Supraveghere video

Curent electric

Interfon

Detector de gaze

Supraveghere 24/7

Geamuri termopan

Parchet

Gresie

Faianta

Gaz

Incalzire proprie

Lift

Apartament 2 camere decomandat Aviatiei

Proprietate vanduta

Ai o proprietate similara? Vinde-o cu noi.
Vinde apartament

Cod: REA1009184

Proprietati similare

Bucuresti, Aviatiei

Apartament, 2 camere

66.08 mp 3 1990

176.000 EUR

Detalii

Bucuresti, Aviatiei

Apartament, 2 camere

48.31 mp 7 2016

180.000 EUR

Detalii

Bucuresti, Pipera

2 camere cu loc parcare subteran inclus

50.28 mp 8 2025

187.900 EUR

Detalii

Bucuresti, Aviatiei

Apartament, 2 camere

49 mp 9 2026

188.000 EUR

Detalii

Bucuresti, Aviatiei

Apartament, 2 camere

55 mp 3 2023

208.000 EUR

Detalii

Bucuresti, Herastrau

Apartament, 2 camere

50 mp P 2020

177.261 EUR

Detalii

Bucuresti, Aviatiei

Apartament, 2 camere

44.43 mp 1 2019

176.999 EUR

Detalii

Bucuresti, Aviatiei

Apartament, 2 camere

60 mp P 2012

199.000 EUR

Detalii
Apartamente 2 camere vandute in Aviatiei, Bucuresti Apartamente 2 camere de vanzare in Aviatiei, Bucuresti

Afla primul de cele mai bune oferte
inainte sa ajunga pe piata

Aboneaza-te la newsletter

Aboneaza-te la notificari