Aviatiei 2 camere 61 mp 7 2016

SVN Romania va propune spre vanzare un apartament cu totul deosebit de 2 camere amplasat in zona de Nord a Bucurestiului.

Apartamentul face parte din complexul Metropolitan Residence in apropriere de statia de metrou Aurel Vlaicu.

Imobilul este situat la etajul 7 din 7 al unui imobil finalizat in anul 2016.

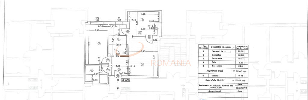
Apartamentul dispune de o compartimentare decomandata, fiind compus din: hol, living + bucatarie inchisa, 1 dormitor, 1 baie, si o terasa generoasa toate acestea avand suprafata utila de 73.23 mp.

Apartamentul se vinde complet mobilat/utilat.

Apartamentul are centrala proprie.

In vecinatate regasim la doar 10 minute de mers pe jos statia de metrou Aurel Vlaicu si alte mijloace de transport in comun. Puncte de interes in apropiere: magazine, restaurante, farmacii, gradinite, scoli, parcuri, Green Court Bucharest, complex comercial Promenada.

Loc de parcare la subteran 17.000 Eur.

Nu detinem informatii despre clasa energetica a imobilului.

Pentru mai multe detalii si vizionari va stau la dispozitie.

An constructie 2016

Suprafata construita 73 mp

Suprafata utila 61 mp

Suprafata terasa 12.74 mp

Regim Inaltime 7 / 7

Etaj 7

Nr. camere 2 camere

Nr. bai 1

Nr. balcoane 0 balcoane

Confort 1

Tip constructie In bloc

Status constructie Finalizat

Disponibila incepand cu 2022-08-18

Judet Bucuresti

Oras/ Sector Sector 1

Zona Aviatiei

Gps lat 44.485502

Gps lng 26.101374

Nr. terase 1

Supraveghere video

Internet Wireless

Curent electric

Supraveghere 24/7

Detector de gaze

Interfon

Internet prin fibra optica

Cablu TV

Geamuri termopan

Repartitoare

Parchet

Apometre

Gresie

Telefon

Loc parcare subteran

Faianta

Gaz

Incalzire proprie

Mobilat

Aer conditionat

Bucatarie mobilata

Lift

Apartament 2 camere Metropolitan Aviatiei

Proprietate vanduta

Ai o proprietate similara? Vinde-o cu noi.
Vinde apartament

Cod: REA1011703

Proprietati similare

Bucuresti, Aviatiei

Apartament, 2 camere

53.98 mp 6 2026

175.000 EUR

Detalii

Bucuresti, Aviatiei

Apartament, 2 camere

55 mp 14 2025

149.000 EUR

Detalii

Bucuresti, Aviatiei

Apartament, 2 camere

47.76 mp 16 2025

149.000 EUR

Detalii

Bucuresti, Aviatiei

Apartament, 2 camere

47.76 mp 15 2025

159.000 EUR

Detalii

Bucuresti, Aviatiei

Apartament, 2 camere

55 mp 4 1984

150.000 EUR

Detalii

Bucuresti, Pipera

2 camere cu loc parcare subteran inclus

42.4 mp 9 2020

169.000 EUR

Detalii

Bucuresti, Pipera

2 camere cu loc parcare subteran inclus

42.4 mp 10 2020

169.000 EUR

Detalii

Bucuresti, Aviatiei

Apartament, 2 camere

54 mp P 2027

154.422 EUR

Detalii
Apartamente 2 camere vandute in Aviatiei, Bucuresti Apartamente 2 camere de vanzare in Aviatiei, Bucuresti

Afla primul de cele mai bune oferte
inainte sa ajunga pe piata

Aboneaza-te la newsletter

Aboneaza-te la notificari