Aviatiei 2 camere 56.31 mp 1 2021

SVN Romania va prezinta o proprietate exclusiva, un apartament cu 2 camere de 56,31 mp utii + balcon de 12,20 mp mobilat si utilat complet. Acest rafinat apartament se afla la etajul 1 dintr-un total de 10, intr-un bloc finalizat in anul 2021, cu servicii de paza asigurate 24/7 si o intrare privata securizata, garantand astfel un nivel superior de calitate si confort.

Datorita amenajarii interioare impecabile si atentia acordata detaliilor, acest spatiu va ofera o experienta de locuire deosebit de placuta si relaxanta, amplificata de terasa generoasa si privelistea panoramica spre prestigiosul Muzeu al Aviatiei.

Apartamentul impresioneaza prin dotarile sale de lux, incluzand un dressing incapator si facilitati moderne precum incalzirea in pardoseala si tamplarie exterioara de inalta calitate, asigurand astfel o izolare termica eficienta si economii de energie considerabile.

De asemenea, va oferim optiunea de parcare atat supraterana, cat si subterana pe doua nivele, la un cost aditional lunar de 100-150 euro, astfel asigurandu-se un plus de comoditate si siguranta pentru autoturismul dumneavoastra.

Designul interior se remarca prin folosirea exclusiva a placilor ceramice de inalta calitate, marca Porcelanosa, precum si prin sistemul avansat de reglaj a temperaturii in fiecare camera, toate acestea aducand un plus de eleganta, confort si functionalitate.

Localizarea ideala, la doar 7 minute de statia de metrou Aurel Vlaicu si Pipera, face din acest apartament o optiune convenabila pentru deplasarile in oras si se afla in apropiere de centrele de afaceri din zona Pipera.

Certificatul energetic va fi disponibil la data semnarii contractului de vanzare-cumparare.

Contactati-ne acum pentru mai multe detalii si pentru a programa o vizionare!

An constructie 2021

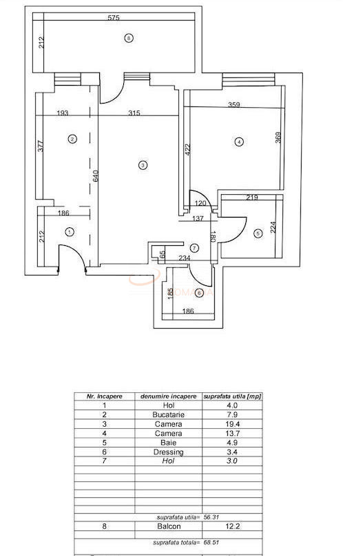
Suprafata construita 68.51 mp

Suprafata utila 56.31 mp

Suprafata terasa 12.2 mp

Regim Inaltime 1 / 10

Etaj 1

Nr. camere 2 camere

Nr. bai 1

Nr. balcoane 1 balcon

Confort Lux

Compartimentare Decomandat

Tip constructie In bloc

Status constructie Finalizat

Disponibila incepand cu 2023-08-18

Judet Bucuresti

Oras/ Sector Sector 1

Zona Aviatiei

Gps lat 44.477522

Gps lng 26.113071

Cablu TV

Internet prin fibra optica

Interfon

Supraveghere 24/7

Curent electric

Internet Wireless

Internet prin cablu

Internet prin Dial-Up

Supraveghere video

Geamuri termopan

Repartitoare

Parchet

Apometre

Gresie

Faianta

Gaz

Incalzire prin pardoseala

Mobilat

Aer conditionat

Bucatarie mobilata

Bloc reabiliat termic

Lift

Apartament superb 2 camere Aviatiei Tower

Proprietate vanduta

Ai o proprietate similara? Vinde-o cu noi.
Vinde apartament

Cod: REA1015909

Proprietati similare

Bucuresti, Floreasca, Barbu Vacarescu

Apartament, 2 camere

73.57 mp 6 2010

225.000 EUR

Detalii

Bucuresti, Floreasca

2 camere cu loc parcare subteran inclus

56.45 mp 6 2024

265.000 EUR

Detalii

Bucuresti, Floreasca

Apartament, 2 camere

52 mp 4 2024

224.500 EUR

Detalii

Bucuresti, Floreasca

Apartament, 2 camere

52.4 mp 3 2025

265.000 EUR

Detalii

Bucuresti, Floreasca, Barbu Vacarescu

Apartament, 2 camere

90 mp 3 2011

240.000 EUR

Detalii

Bucuresti, Floreasca, Barbu Vacarescu

Apartament, 2 camere

55 mp 6 2025

229.000 EUR

Detalii

Bucuresti, Floreasca, Barbu Vacarescu

Apartament, 2 camere

75 mp 3 2019

228.000 EUR

Detalii

Bucuresti, Floreasca

Apartament, 2 camere

69.47 mp 2 2025

259.000 EUR

Detalii
Apartamente 2 camere vandute in Aviatiei, Bucuresti Apartamente 2 camere de vanzare in Aviatiei, Bucuresti

Afla primul de cele mai bune oferte
inainte sa ajunga pe piata

Aboneaza-te la newsletter

Aboneaza-te la notificari