Apartament, 2 camere, Bucuresti / Aviatiei
Apartamentul este situat la etajul 1 intr-un imobil cu 4 etaje din 1986, anvelopat situat pe strada Nicolae Caramfil cu vedere catre spatiu verde si bulevard recent renovat si complet mobilat.
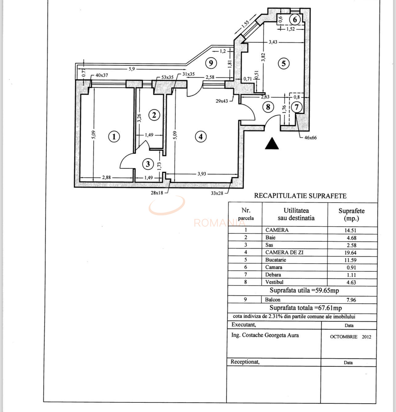
Apartamentul are o suprafata utila totala de 67,5 mp din care un balcon de 8 mp, un living de aproximativ 20 mp cu bucatarie inchisa foarte spatioasa de 11,6 mp si un dormitor de 14,5 mp plus spatii de depozitare.
Apartamentul se vinde mobilat si utilat.
Pentru mai multe detalii si vizionari va rog sa ma contactati.
Atribute
An constructie 1986
Suprafata construita 75 mp
Suprafata utila 67 mp
Suprafata terasa 8 mp
Regim Inaltime 1 / 4
Etaj 1
Nr. camere 2 camere
Nr. bai 1
Nr. balcoane 1 balcon
Confort 1
Compartimentare Decomandat
Tip constructie In bloc
Status constructie Finalizat
Disponibila incepand cu 2024-04-12
Judet Bucuresti
Oras/ Sector Sector 1
Zona Aviatiei
Gps lat 44.484585
Gps lng 26.092567
Facilitati
Curent electric
Internet Wireless
Geamuri termopan
Balcon inchis
Parchet
Gresie
Gaz
Calorifere
Mobilat
Aer conditionat
Bucatarie mobilata
Bloc reabiliat termic
Apartament 2 camere deosebit 67 mp Aviatiei Mobilat Utilat
Proprietate vanduta
Ai o proprietate similara? Vinde-o cu noi.
  Vinde apartament  
 
  
  
  
  
  
  
  
  
  
  
  
  
  
  
   
   
   
   
   
  
  
   
   
   
   
   
  
  
   
   
   
   
   
  
  
   
   
   
   
   
  
   
   
   
   
   
  
  
   
   
   
   
   
  
   
   
   
   
   
  
  
   
   
   
  