Aviatiei 2 camere 73.45 mp 1 2024

SVN Residentialist Pipera propune spre vanzare un apartament cu 2 camere, situat intr-o zona premium din nordul Bucurestiului, aproape de centre comerciale, parcuri si hub-uri de business. Proiectul se remarca prin constructie solida, compartimentari eficiente si dotari moderne.

Dotari si finisaje premium:

Structura pe cadre de beton, compartimentari interioare din caramida Porotherm Profi 12 (fara rigips)

Tamplarie exterioara Synego cu 7 camere si geam tripan

Incalzire in pardoseala TeCe Germania – confort si economie de energie

Centrala proprie Viessmann – conform noilor reglementari legale

Instalatii electrice Gewiss Germania

Glafuri din granit, finisaje din marmura si granit in casa scarii

Balcoane cu sticla securizata si izolatii suplimentare ale fatadelor

Lifturi Schindler si video interfon touchscreen

Usi interioare Pinum Italia

Apartamentul se preda la cheie, cu finisaje de calitate superioara

Avantaje:

Localizare exclusivista in nordul Bucurestiului

Materiale premium si finisaje durabile

Loc de parcare disponibil – 20.000 euro

Pret: Apartamentul beneficiaza de TVA de 10%. Diferenta pana la 21% este suportata de proprietar.

Daca esti in cautarea unui apartament spatios, modern si bine construit, acest proiect reprezinta alegerea perfecta pentru un camin premium in nordul Capitalei. SVN Residentialist te asteapta la vizionare!

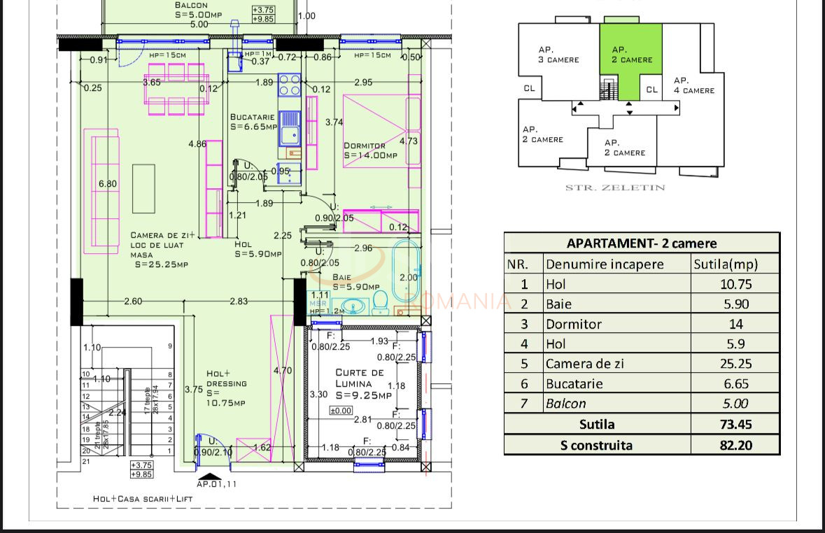
An constructie 2024

Suprafata construita 82.2 mp

Suprafata utila 73.45 mp

Suprafata terasa 5 mp

Regim Inaltime 1 / 4

Etaj 1

Nr. camere 2 camere

Nr. bai 1

Nr. balcoane 1 balcon

Confort Lux

Compartimentare Decomandat

Tip constructie In bloc

Status constructie Finalizat

Disponibila incepand cu 2026-02-11

Judet Bucuresti

Oras/ Sector Sector 1

Zona Aviatiei

Gps lat 44.490152

Gps lng 26.092479

Nr. terase 1

Interfon

Sistem de alarma

Detector de gaze

Supraveghere 24/7

Geamuri termopan

Parchet

Gresie

Telefon

Loc parcare subteran

Faianta

Incalzire proprie

Incalzire prin pardoseala

Aer conditionat

Lift

Valoare proprietate (€)

Perioada (ani)

Procent avans (30.000 €)


Suma creditata 170.000

Dobanda 4.9%

Rata lunara 4.203 lei

Broker Imobiliar

Nicoleta Stoican , Consultant imobiliar Vezi toate proprietatile

0317100200

Apartament spatios 2 camere I Aviatiei

Pret vanzare + TVA
200.000 €

Telefon Consultant imobiliar
0317100200

Cod: REA1025225

Proprietati similare

Bucuresti, Aviatiei

Apartament, 2 camere

91.35 mp 4 2024

200.000 EUR

Detalii

Bucuresti, Aviatiei

Apartament, 2 camere

73.35 mp 4 2024

200.000 EUR

Detalii

Bucuresti, Aviatiei

Apartament, 2 camere

44.43 mp 1 2019

181.000 EUR

Detalii

Bucuresti, Aviatiei

Apartament, 2 camere

50 mp 2 2022

214.900 EUR

Detalii

Bucuresti, Aviatiei

2 camere cu loc parcare subteran inclus

51 mp 7 2024

200.000 EUR

Detalii

Bucuresti, Aviatiei

Apartament, 2 camere

69 mp P 2026

203.820 EUR

Detalii

Bucuresti, Aviatiei

Apartament, 2 camere

69 mp P 2026

203.820 EUR

Detalii

Bucuresti, Herastrau

Apartament, 2 camere

46.1 mp P 2003

185.000 EUR

Detalii
Apartamente 2 camere vandute in Aviatiei, Bucuresti Apartamente 2 camere de vanzare in Aviatiei, Bucuresti

Afla primul de cele mai bune oferte
inainte sa ajunga pe piata

Aboneaza-te la newsletter

Aboneaza-te la notificari