Aviatiei 2 camere 44 mp P 2020

SVN Residentialist va propune spre achizitionare un apartament, cu mobila si finisaje de calitate, situat in zona Aviatiei.

LOCALIZARE:
Acest imobil este situat in imediata apropiere de urmatoarele puncte: Floreasca, Aviatiei, Promenada, Baneasa.
In proximitate se afla si principalele hub-uri comerciale si de birouri ale Bucurestiului.

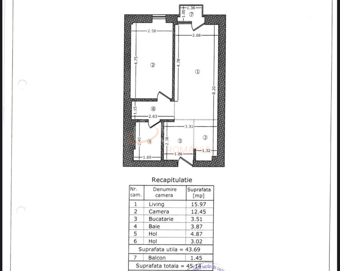
COMPARTIMENTARE:
Proprietatea este dispusa pe 2 camere:
Living-ul cu suprafete vitrate mari, bucatarie open space ce contine: plita, cuptor, hota, combina frigorifica,zona dining, acces in terasa,
dormitorul cu dressing
baie


DOTARI
Proprietatea detine:
- incalzire in pardoseala
- tamplarie de cea mai inalta calitate din aluminiu, geam tripan cu 5 camere de izolare fonica
- usa metalica;
- aer conditionat
- parchet triplustratificat

Apartamentul detine si loc de parcare la pretul de 22.000 euro

Imobilul are o calitate superioara, fatada ventilata, ce ajuta cladirea in pastrarea unui aspect placut pe termen lung, dar asigura si o izolatie mult mai buna.


Cu deosebita consideratie,
Echipa SVN Residentialist

An constructie 2020

Suprafata construita 55 mp

Suprafata utila 44 mp

Regim Inaltime P / 1

Etaj P

Nr. camere 2 camere

Nr. bai 1

Nr. balcoane 0 balcoane

Confort 1

Compartimentare Semidecomandat

Tip constructie In bloc

Status constructie Finalizat

Disponibila incepand cu 2025-09-30

Judet Bucuresti

Oras/ Sector Sector 1

Zona Aviatiei

Gps lat 44.488206

Gps lng 26.093260

Nr. terase 1

Sistem de alarma

Interfon

Curent electric

Cablu TV

Geamuri termopan

Repartitoare

Parchet

Apometre

Gresie

Telefon

Loc parcare subteran

Faianta

Gaz

Incalzire proprie

Incalzire prin pardoseala

Mobilat

Aer conditionat

Bucatarie mobilata

Valoare proprietate (€)

Perioada (ani)

Procent avans (26.700 €)


Suma creditata 151.300

Dobanda 4.9%

Rata lunara 3.741 lei

Broker Imobiliar

Claudia Gavrila , Consultant imobiliar Vezi toate proprietatile

0317100200

Apartament 2 camere Aviatiei Park

Pret vanzare
178.000 €

Telefon Consultant imobiliar
0317100200

Cod: REA1025423

Proprietati similare

Bucuresti, Aviatiei

Apartament, 2 camere

45 mp 2 2019

180.000 EUR

Detalii

Bucuresti, Aviatiei

Apartament, 2 camere

44.43 mp 1 2019

181.000 EUR

Detalii

Bucuresti, Aviatiei

Apartament, 2 camere

73.35 mp 4 2024

192.400 EUR

Detalii

Bucuresti, Aviatiei

Apartament, 2 camere

66.08 mp 3 1990

176.000 EUR

Detalii

Bucuresti, Aviatiei

Apartament, 2 camere

59 mp 6 2014

169.900 EUR

Detalii

Bucuresti, Herastrau

Apartament, 2 camere

46.1 mp P 2003

185.000 EUR

Detalii

Bucuresti, Herastrau

Apartament, 2 camere

50 mp P 2020

177.261 EUR

Detalii

Bucuresti, Herastrau

Apartament, 2 camere

60 mp 9 2000

188.000 EUR

Detalii
Apartamente 2 camere vandute in Aviatiei, Bucuresti Apartamente 2 camere de vanzare in Aviatiei, Bucuresti

Afla primul de cele mai bune oferte
inainte sa ajunga pe piata

Aboneaza-te la newsletter

Aboneaza-te la notificari