Aviatiei 2 camere 50.8 mp 4 2022

SVN Residentialist va propune spre achizitie un apartament modern de 2 camere, situat in zona Aviatiei, Sector 1, langa Porsche Pipera. Locuinta se afla la etajul 4/11 intr-un complex rezidential nou (2022) ce ofera paza, spatii verzi si magazine interioare.

Puncte forte:
Gata de mutat: Apartamentul se tranzactioneaza complet mobilat si utilat, fiind ideal atat pentru locuit, cat si pentru investitie (inchiriere imediata).
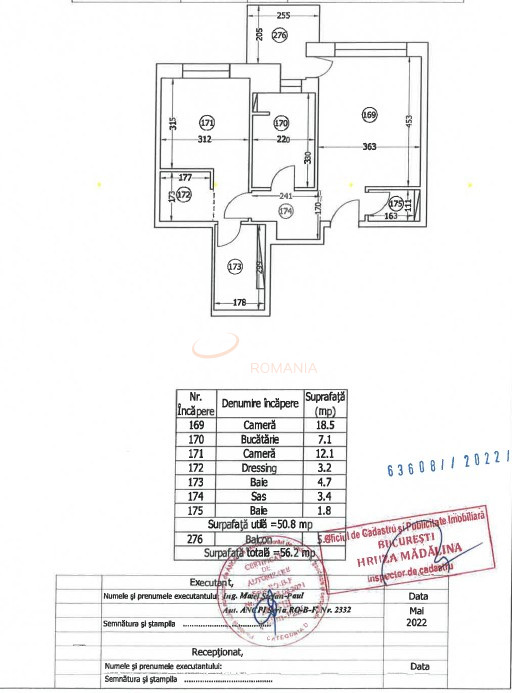
Suprafata: 56,2 mp utili totali (include balcon deschis de 5,4 mp).
Confort: Centrala proprie, incalzire in pardoseala pe toata suprafata si aer conditionat.
Stadiu: Liber, se poate prelua imediat dupa transferul proprietatii.

Detalii imobil:
Constructie 2022, etaj 4 din 11.
Orientare Nord.
Localizare excelenta in hub-ul de business, cu acces rapid la toate facilitatile din Sectorul 1.

Pentru mai multe detalii si pentru a stabili o vizionare va stam la dispozitie!

An constructie 2022

Suprafata construita 64.63 mp

Suprafata utila 50.8 mp

Suprafata terasa 5.4 mp

Regim Inaltime 4 / 11

Etaj 4

Nr. camere 2 camere

Nr. bai 1

Nr. balcoane 1 balcon

Confort 1

Compartimentare Decomandat

Tip constructie In bloc

Status constructie Finalizat

Disponibila incepand cu 2026-01-27

Judet Bucuresti

Oras/ Sector Sector 1

Zona Aviatiei

Gps lat 44.489967

Gps lng 26.111674

Supraveghere 24/7

Supraveghere video

Detector de gaze

Sistem de alarma

Curent electric

Interfon

Geamuri termopan

Parchet

Apometre

Gresie

Telefon

Faianta

Gaz

Incalzire proprie

Calorifere

Incalzire prin pardoseala

Aer conditionat

Lift

Valoare proprietate (€)

Perioada (ani)

Procent avans (21.600 €)


Suma creditata 122.400

Dobanda 4.9%

Rata lunara 3.027 lei

Broker Imobiliar

Nicusor Gavrila , Consultant imobiliar Vezi toate proprietatile

0317100200

Apartament 2 CamereI AviatieiI Porsche PiperaI

Pret vanzare
144.000 €

Telefon Consultant imobiliar
0317100200

Cod: REA1027204

Proprietati similare

Bucuresti, Pipera

Apartament, 2 camere

50.17 mp 1 2019

135.000 EUR

Detalii

Bucuresti, Aviatiei

Apartament, 2 camere

56.9 mp P 2022

135.000 EUR

Detalii

Bucuresti, Pipera

Apartament, 2 camere

49.9 mp 5 2024

131.500 EUR

Detalii

Bucuresti, Pipera

Apartament, 2 camere

50 mp 8 2025

131.500 EUR

Detalii

Bucuresti, Pipera

Apartament, 2 camere

40 mp 4 2024

138.990 EUR

Detalii

Bucuresti, Pipera

Apartament, 2 camere

50 mp 9 2024

131.500 EUR

Detalii

Bucuresti, Pipera

2 camere cu loc parcare subteran inclus

48.46 mp P 2022

148.900 EUR

Detalii

Bucuresti, Aviatiei

Apartament, 2 camere

47.76 mp 16 2025

149.000 EUR

Detalii
Apartamente 2 camere vandute in Aviatiei, Bucuresti Apartamente 2 camere de vanzare in Aviatiei, Bucuresti

Afla primul de cele mai bune oferte
inainte sa ajunga pe piata

Aboneaza-te la newsletter

Aboneaza-te la notificari