Aviatiei 2 camere 44 mp 9 2026

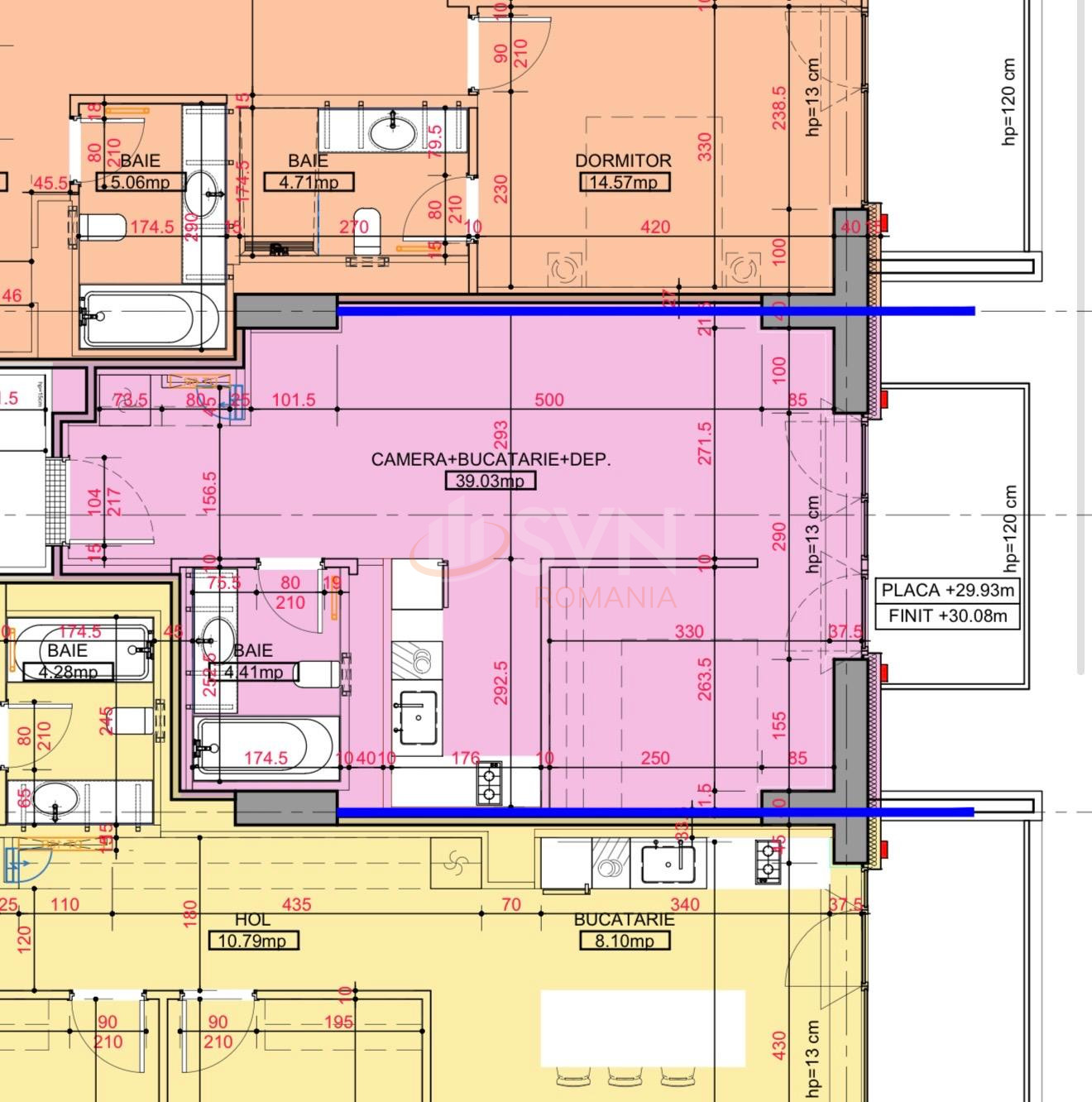
SVN Residentialist va propune spre vanzare un apartament de 2 camere, tip Studio dublu cu terasa, situat in cadrul ansamblului rezidential ONE HIGH DISTRICT, cu termen estimat de finalizare 1 august 2026. Pretului apartamentului i se adauga TVA.

Acest proiect rezidential redefineste standardele locuirii urbane in nordul orasului Bucuresti, printr-un concept modern ce imbina arhitectura contemporana, eficienta energetica si integrarea generoasa a spatiilor verzi.

Ansamblul ofera locuinte luminoase, cu suprafete eficient compartimentate si privelisti deschise, intr-o comunitate premium ce beneficiaza de facilitati integrate precum spatii comerciale, zona de fitness, locuri de joaca si peste 1.100 de locuri de parcare.

Pozitionarea strategica in zona Floreasca – Barbu Vacarescu – Tei – Pipera asigura acces rapid catre centrele de business, zonele de promenada, restaurante, parcuri si principalele artere ale orasului, transformand proprietatea intr-o alegere excelenta atat pentru locuire, cat si pentru investitie pe termen lung.

Apartamentul este situat la etajul 9 si are o suprafata construita de 53,68 mp, la care se adauga o terasa de 7,08 mp. Se vinde impreuna cu un loc de parcare, disponibil la pretul de 23.000 EUR + TVA.

Daca sunteti interesati si doriti mai multe detalii sau programarea unei vizionari, va invitam sa ne contactati.

An constructie 2026

Suprafata construita 60 mp

Suprafata utila 44 mp

Suprafata terasa 8 mp

Regim Inaltime 9 / 20

Etaj 9

Nr. camere 2 camere

Nr. bai 1

Nr. balcoane 1 balcon

Confort 1

Compartimentare Semidecomandat

Tip constructie In bloc

Status constructie Nefinalizat

Disponibila incepand cu 2026-02-24

Judet Bucuresti

Oras/ Sector Sector 1

Zona Aviatiei

Gps lat 44.478212

Gps lng 26.124042

Clasa energetica 1

Curent electric

Internet Wireless

Interfon

Supraveghere 24/7

Supraveghere video

Geamuri termopan

Parchet

Apometre

Gresie

Loc parcare subteran

Faianta

Gaz

Incalzire proprie

Incalzire prin pardoseala

Aer conditionat

Lift

Pompe de caldură

Valoare proprietate (€)

Perioada (ani)

Procent avans (24.822 €)


Suma creditata 140.658

Dobanda 4.9%

Rata lunara 3.478 lei

Broker Imobiliar

Oana Dumitrascu , Consultant imobiliar Vezi toate proprietatile

0317100200

Studio dublu ansamblu rezidential High End I Aviatiei

Pret vanzare
165.480 €

Telefon Consultant imobiliar
0317100200

Cod: REA1027946

Proprietati similare

Bucuresti, Floreasca

Apartament, 2 camere

43 mp 5 2026

175.000 EUR

Detalii

Bucuresti, Floreasca, Barbu Vacarescu

Apartament, 2 camere

63.6 mp 1 2026

159.675 EUR

Detalii

Bucuresti, Floreasca, Barbu Vacarescu

Apartament, 2 camere

54.1 mp 4 2027

155.404 EUR

Detalii

Bucuresti, Aviatiei

Apartament, 2 camere

54.9 mp 2 2026

159.675 EUR

Detalii

Bucuresti, Aviatiei

Apartament, 2 camere

54.9 mp 2 2026

155.404 EUR

Detalii

Bucuresti, Floreasca, Barbu Vacarescu

Apartament, 2 camere

54.1 mp 3 2026

159.675 EUR

Detalii

Bucuresti, Floreasca, Barbu Vacarescu

Apartament, 2 camere

54.1 mp 4 2026

155.404 EUR

Detalii

Bucuresti, Floreasca, Barbu Vacarescu

Apartament, 2 camere

54.1 mp 3 2026

159.675 EUR

Detalii
Apartamente 2 camere vandute in Aviatiei, Bucuresti Apartamente 2 camere de vanzare in Aviatiei, Bucuresti

Afla primul de cele mai bune oferte
inainte sa ajunga pe piata

Aboneaza-te la newsletter

Aboneaza-te la notificari