Aviatiei 2 camere 41.91 mp 1 2019

Va prezentam un studio situat in cadrul proiectului Aviatiei Park – Faza 1, una dintre cele mai cautate zone din nordul Bucurestiului, cu acces rapid catre principalele zone de business.

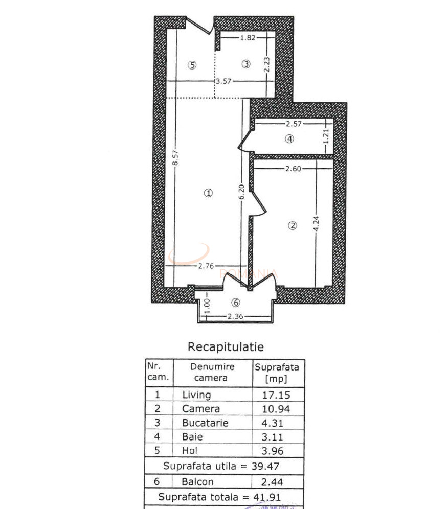
Proprietatea este pozitionata la etajul 1 si are o suprafata utila de 39,47 mp, la care se adauga un balcon de 2,44 mp. Beneficiaza de vedere catre curtea interioara, oferind liniste si intimitate, departe de zgomotul traficului.

Compartimentarea este eficienta, cu un spatiu de zi luminos, zona de odihna bine delimitata si bucatarie integrata.

Apartamentul se vinde mobilat, fiind pregatit pentru mutare imediata sau inchiriere, ceea ce il face o alegere ideala pentru investitie.

Aviatiei Park este un ansamblu rezidential premium, cu spatii comune generoase, zone verzi, paza permanenta si acces securizat, oferind un mediu sigur si confortabil.

Accesul rapid catre Pipera, Barbu Vacarescu, metrou si centre comerciale il face extrem de atractiv pentru chiriasi si pentru locuire.

An constructie 2019

Suprafata construita 50 mp

Suprafata utila 41.91 mp

Suprafata terasa 2.44 mp

Regim Inaltime 1 / 10

Etaj 1

Nr. camere 2 camere

Nr. bai 1

Nr. balcoane 1 balcon

Confort Lux

Compartimentare Semidecomandat

Tip constructie In bloc

Status constructie Finalizat

Disponibila incepand cu 2026-03-20

Judet Bucuresti

Oras/ Sector Sector 1

Zona Aviatiei

Gps lat 44.488192

Gps lng 26.093476

Complex rezidential Aviatiei Park

Clasa energetica 1

Consum energie primara 84.00

Indice consum co2 19.00

Interfon

Supraveghere 24/7

Internet prin Dial-Up

Internet Wireless

Internet prin fibra optica

Internet prin cablu

Curent electric

Cablu TV

Sistem de alarma

Supraveghere video

Detector de gaze

Geamuri termopan

Repartitoare

Parchet

Apometre

Gresie

Telefon

Faianta

Gaz

Calorifere

Incalzire proprie

Mobilat

Aer conditionat

Bucatarie mobilata

Lift

Valoare proprietate (€)

Perioada (ani)

Procent avans (24.750 €)


Suma creditata 140.250

Dobanda 4.9%

Rata lunara 3.468 lei

Broker Imobiliar

Mircea Marin , Consultant imobiliar Vezi toate proprietatile

0317100200

Studio Aviatiei Park - Vedere interioara - Ideal investitie

Pret vanzare
165.000 €

Telefon Consultant imobiliar
0317100200

Cod: REA1028357

Proprietati similare

Bucuresti, Aviatiei

Apartament, 2 camere

52 mp 2 2008

180.000 EUR

Detalii

Bucuresti, Aviatiei

Apartament, 2 camere

57 mp 4 2026

149.250 EUR

Detalii

Bucuresti, Aviatiei

Apartament, 2 camere

54 mp P 2027

154.422 EUR

Detalii

Bucuresti, Baneasa

Apartament, 2 camere

57.1 mp 4 2026

149.250 EUR

Detalii

Bucuresti, Aviatiei

Apartament, 2 camere

69 mp 4 2026

177.500 EUR

Detalii

Bucuresti, Aviatiei

Apartament, 2 camere

57 mp 4 1986

155.000 EUR

Detalii

Bucuresti, Aviatiei

Apartament, 2 camere

55.33 mp 5 2026

178.000 EUR

Detalii

Bucuresti, Aviatiei

Apartament, 2 camere

55 mp 14 2025

149.000 EUR

Detalii
Apartamente 2 camere vandute in Aviatiei, Bucuresti Apartamente 2 camere de vanzare in Aviatiei, Bucuresti

Afla primul de cele mai bune oferte
inainte sa ajunga pe piata

Aboneaza-te la newsletter

Aboneaza-te la notificari