Aviatiei 4 camere 76 mp 3 1986

Compania SVN Romania va propune spre vanzare un apartament cu 4 camere situat in cartierul Aviatiei.

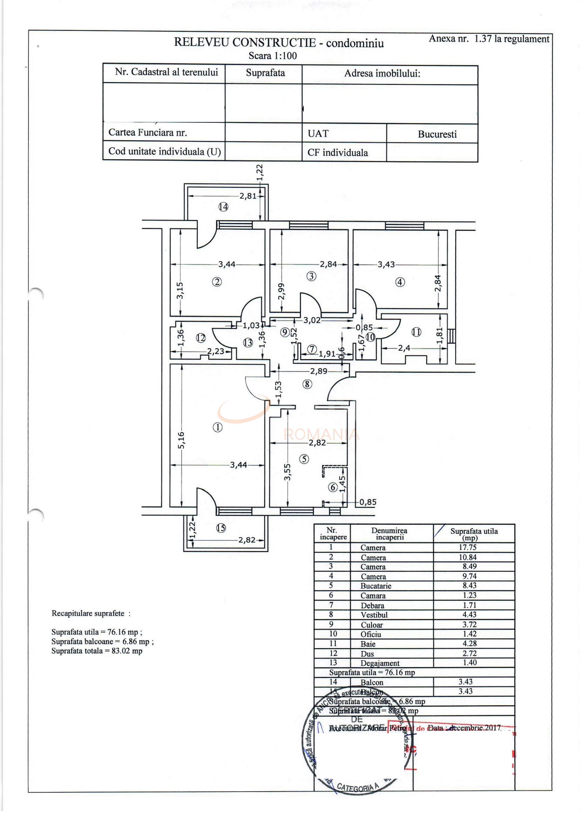
Apartamentul este situat la etajul 3/4 al imobilului finalizat in anul 1986, este decomandat si are o suprafata utila de 76 mp, la care se adauga suprafata celor 2 balcoane.

Proprietatea a fost renovata complet in anul 2018 cand au fost schimbate instalatiile sanitare, instalatiile electrice si este dotata cu centrala termica proprie cu calorifere de otel.

Apartamentul se vinde cu bucataria mobilata si utilata complet.

Nu detinem informatii despre certificatul energetic al imobilului.

An constructie 1986

Suprafata construita 83 mp

Suprafata utila 76 mp

Suprafata terasa 7 mp

Regim Inaltime 3 / 4

Etaj 3

Nr. camere 4 camere

Nr. bai 2

Nr. balcoane 2 balcoane

Confort 1

Compartimentare Decomandat

Tip constructie In bloc

Status constructie Finalizat

Disponibila incepand cu 2023-12-07

Judet Bucuresti

Oras/ Sector Sector 1

Zona Aviatiei

Gps lat 44.483917

Gps lng 26.099034

Cablu TV

Internet prin fibra optica

Detector de gaze

Curent electric

Internet Wireless

Internet prin cablu

Interfon

Geamuri termopan

Balcon inchis

Parchet

Apometre

Telefon

Faianta

Gaz

Incalzire proprie

WC serviciu

Mobilat

Aer conditionat

Bucatarie mobilata

Bloc reabiliat termic

Aviatiei - apartament cu 4 camere si centrala proprie

Proprietate vanduta

Ai o proprietate similara? Vinde-o cu noi.
Vinde apartament

Cod: REA1005973

Proprietati similare

Bucuresti, Floreasca

Apartament, 4 camere

80.29 mp 10 1962

207.000 EUR

Detalii

Bucuresti, 1 Mai

Apartament, 4 camere

80 mp 3 1981

230.000 EUR

Detalii

Bucuresti, 1 Mai, Banu Manta

Apartament, 4 camere

120 mp 2 1940

210.000 EUR

Detalii

Bucuresti, Ultracentral, Basarab

Apartament, 4 camere

76 mp 1 1938

220.000 EUR

Detalii

Bucuresti, Ultracentral, Piata Rosetti

Apartament, 4 camere

85.87 mp 1 2002

200.000 EUR

Detalii

Bucuresti, Ultracentral, Cismigiu

Apartament, 4 camere

84 mp P 1941

214.999 EUR

Detalii

Bucuresti, Dacia

Apartament, 4 camere

69 mp 6 1984

199.000 EUR

Detalii

Bucuresti, Militari, Lacul Morii

Apartament, 4 camere

85.7 mp 4 2022

195.000 EUR

Detalii
Apartamente 4 camere vandute in Aviatiei, Bucuresti Apartamente 4 camere de vanzare in Aviatiei, Bucuresti

Afla primul de cele mai bune oferte
inainte sa ajunga pe piata

Aboneaza-te la newsletter

Aboneaza-te la notificari