Aviatiei 4 camere 157.4 mp 1 2024

SVN Romania va propune spre vanzare apartamente de 2, 3, si 4 camere intr-un imobil S+P+4+5R in curs de finalizare pana la sfarsitul anului, situat intr-o zona ravnita din Nordul Capitalei.

Imobilul va fi finisat Premium astfel:
-Constructie realizata pe cadre de beton
-Caramida Porotherm Austria Beton b400
-Centrala propfie Viessman
-Tamplarie 7 camere Synego geam tripan
-Incalzire in -pardoseala Tecce Germania
-Instalatii electrice Gewiss Germania
-Glafuri din granit Granit si marmura casa scarii
-Video interfon cu Touchscreen
-Balcoane din sticla Securizata
-Izolatii fatade
- Lift Schindler
-Usi interioare Pinum Italia Etc

Apartamentele se predau la cheie, intr-un buget stabilit.
Pretul este cu tva inclus si se percepe un avans de minim 50%.

Localizarea in cartierul Aviatiei iti ofera acces facil la mijloace de transport in comun, inclusiv statia de metrou Aurel Vlaicu, magazine, farmacii si centrul de afaceri din jurul mall-ului Promenada.

Pentru detalii si vizionari, nu ezitati sa ma contactati.

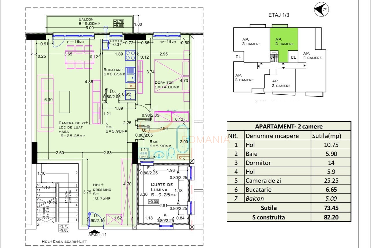
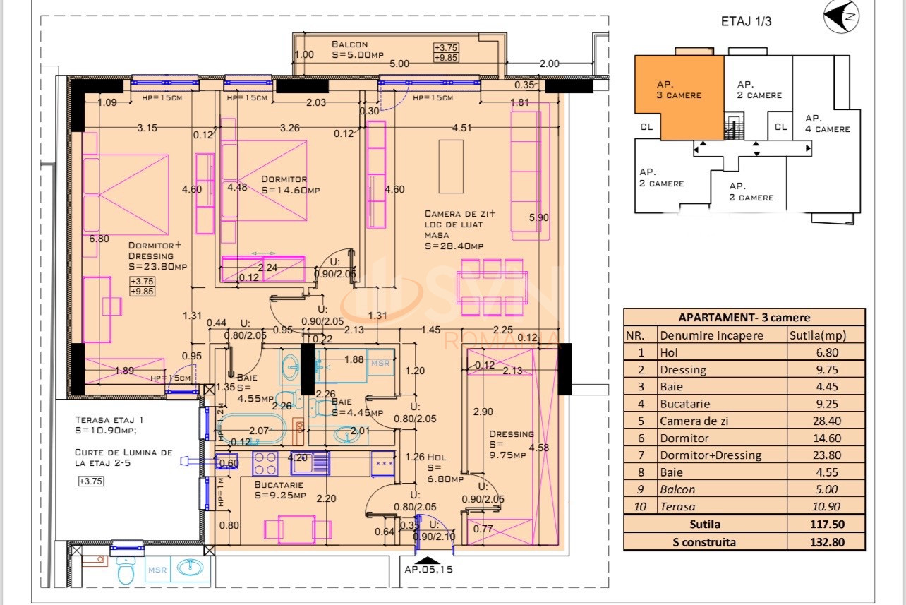
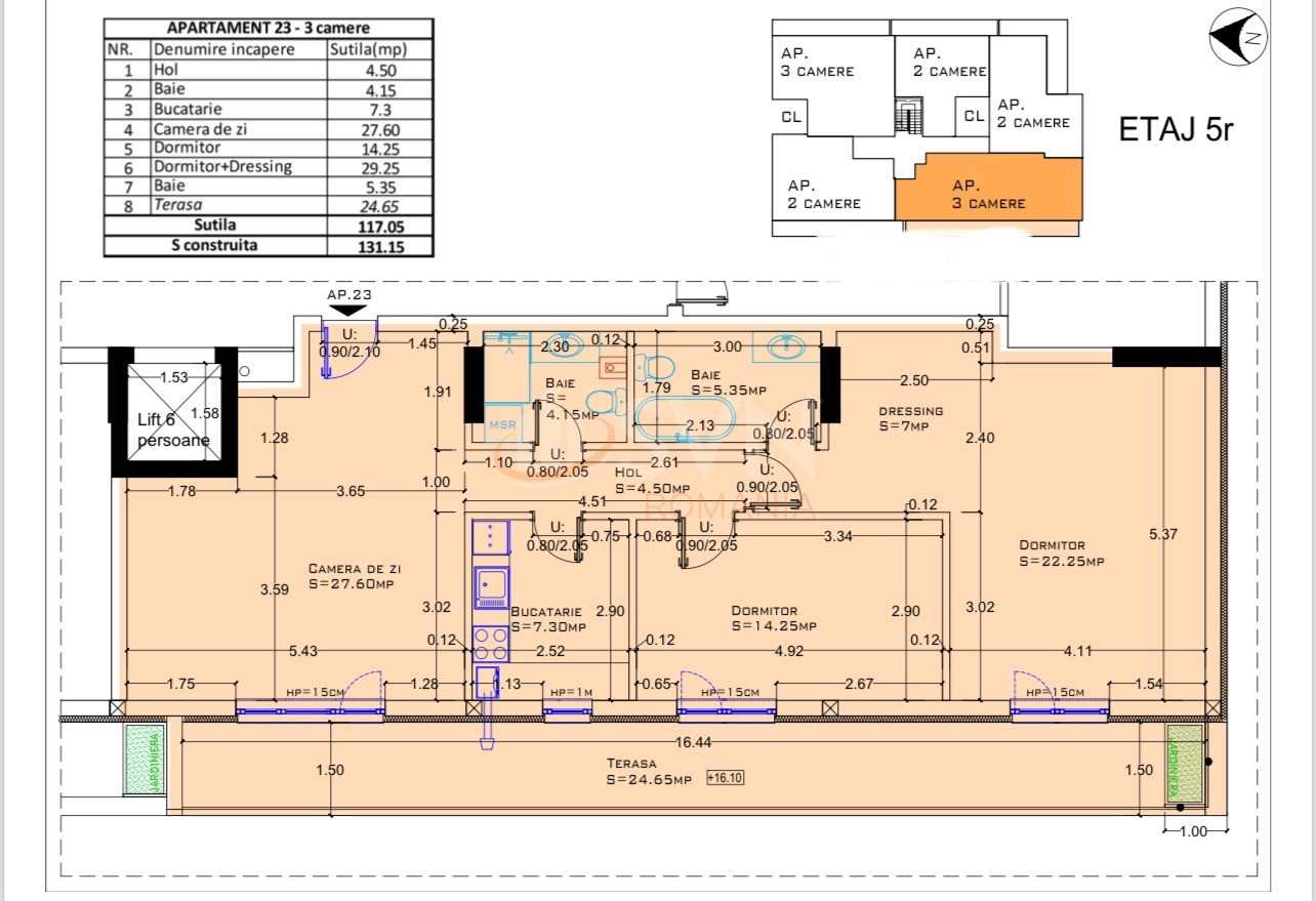
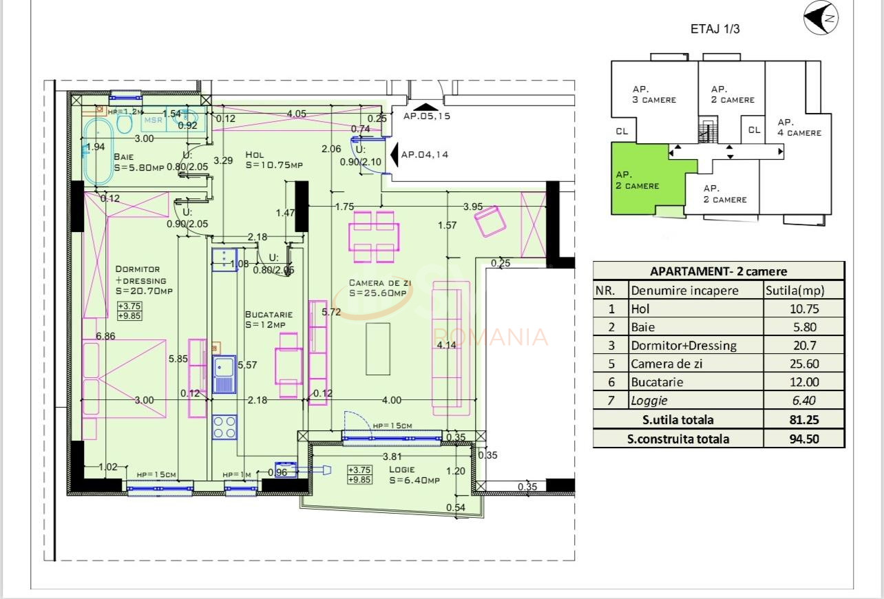
An constructie 2024

Suprafata construita 180 mp

Suprafata utila 157.4 mp

Suprafata terasa 14.5 mp

Regim Inaltime 1 / 5

Etaj 1

Nr. camere 4 camere

Nr. bai 3

Nr. balcoane 0 balcoane

Confort 1

Compartimentare Semidecomandat

Tip constructie In bloc

Status constructie Nefinalizat

Disponibila incepand cu 2025-05-29

Judet Bucuresti

Oras/ Sector Sector 1

Zona Aviatiei

Gps lat 44.490674

Gps lng 26.092287

Nr. terase 1

Cablu TV

Curent electric

Internet Wireless

Interfon

Supraveghere video

Geamuri termopan

Parchet

Gresie

Loc parcare subteran

Faianta

Gaz

Incalzire prin pardoseala

Lift

Valoare proprietate (€)

Perioada (ani)

Procent avans (54.000 €)


Suma creditata 306.000

Dobanda 4.9%

Rata lunara 7.566 lei

Broker Imobiliar

Madalina Lungu , Consultant imobiliar Vezi toate proprietatile

0317100200

Oportunitate Investitie apartament 4 camere Aviatiei

Pret vanzare + TVA
360.000 €

Telefon Consultant imobiliar
0317100200

Cod: REA1020061

Proprietati similare

Bucuresti, Aviatiei

Apartament, 4 camere

156.95 mp 1 2024

380.000 EUR

Detalii

Bucuresti, Baneasa

Apartament, 4 camere

152 mp 5 2008

369.900 EUR

Detalii

Bucuresti, Pipera, Iancu Nicolae

Apartament, 4 camere

135 mp 3 2022

349.990 EUR

Detalii

Bucuresti, Pipera

Apartament, 4 camere

190 mp P 2026

333.680 EUR

Detalii

Bucuresti, Pipera

Apartament, 4 camere

190 mp P 2026

333.680 EUR

Detalii

Bucuresti, Floreasca, Barbu Vacarescu

Apartament, 4 camere

120.6 mp 10 2026

394.350 EUR

Detalii

Bucuresti, Baneasa

Apartament, 4 camere

129.5 mp 5 2010

365.000 EUR

Detalii

Bucuresti, Floreasca

Apartament, 4 camere

112.9 mp 1 1940

350.000 EUR

Detalii
Apartamente 4 camere vandute in Aviatiei, Bucuresti Apartamente 4 camere de vanzare in Aviatiei, Bucuresti

Afla primul de cele mai bune oferte
inainte sa ajunga pe piata

Aboneaza-te la newsletter

Aboneaza-te la notificari