Aviatiei 3 camere 112 mp P 2024

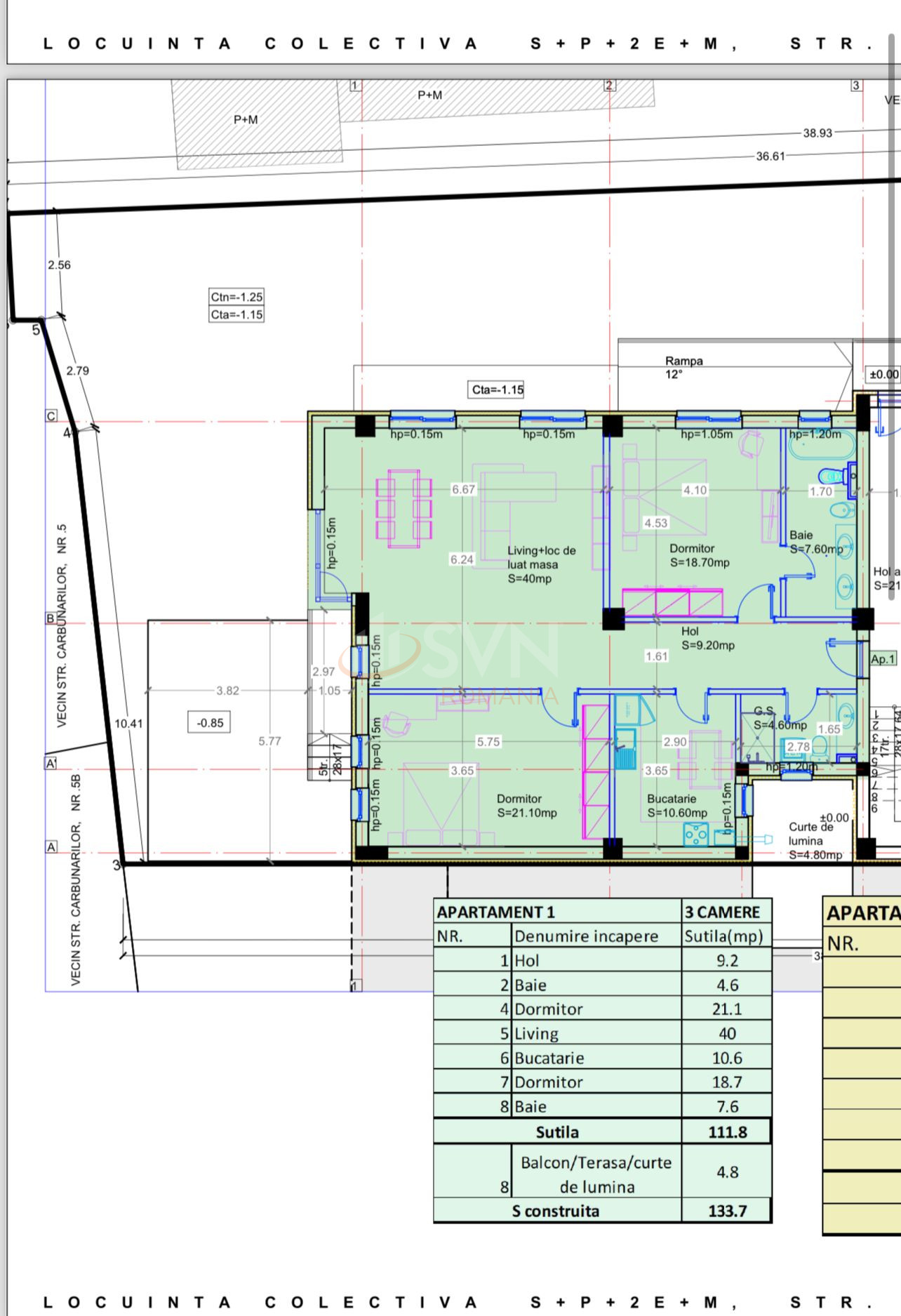
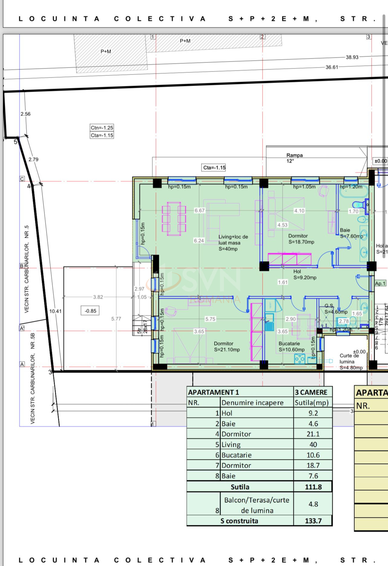
SVN Romania va prezenta un apartament spatios si elegant, situat la parter, cu o suprafata utila de 111.8 mp, balcon de 4.8 mp si o curte privata generoasa de 160 mp – un spatiu ideal pentru relaxare, loc de joaca sau petreceri in aer liber.

Compartimentare:

Hol – 9.2 mp
Baie – 4.6 mp
Dormitor matrimonial – 18.7 mp
Baie matrimoniala – 7.6 mp
Living spatios – 40 mp
Bucatarie inchisa – 10.6 mp
Dormitor secundar – 21 mp

Dotari si finisaje:

-Tamplarie VEKA
-Parchet din lemn natural lipit
-Gresie si faianta moderne
-Incalzire in pardoseala TECE
-Centrala termica proprie Viesmann
-Bucatarie complet mobilata si utilata
-Balcon de 4.8 mp

Ideal pentru:
Familii care doresc un stil de viata confortabil si intim, dar si pentru investitori in cautarea unei proprietati cu randament ridicat la inchiriere.

Pret:
310.000€ + TVA apartamentul
15.000€ + TVA loc de parcare subteran

Pentru mai multe detalii si programari vizionari, nu ezitati sa ne contactati!

An constructie 2024

Suprafata construita 128 mp

Suprafata utila 112 mp

Suprafata terasa 5 mp

Regim Inaltime P / 4

Etaj P

Nr. camere 3 camere

Nr. bai 2

Nr. balcoane 0 balcoane

Confort 1

Compartimentare Decomandat

Tip constructie In bloc

Status constructie Finalizat

Disponibila incepand cu 2025-11-27

Judet Bucuresti

Oras/ Sector Sector 1

Zona Aviatiei

Gps lat 44.491024

Gps lng 26.094682

Nr. terase 1

Curent electric

Internet prin cablu

Internet Wireless

Interfon

Cablu TV

Geamuri termopan

Parchet

Gresie

Telefon

Loc parcare subteran

Faianta

Gaz

Incalzire prin pardoseala

WC serviciu

Mobilat

Aer conditionat

Bucatarie mobilata

Lift

Valoare proprietate (€)

Perioada (ani)

Procent avans (58.500 €)


Suma creditata 331.500

Dobanda 4.9%

Rata lunara 8.196 lei

Broker Imobiliar

Andrei Haiduc , Consultant imobiliar Vezi toate proprietatile

0317100200

Apartament 3 camere I Aviatiei I Curte 160 mp

Pret vanzare + TVA
390.000 €

Telefon Consultant imobiliar
0317100200

Cod: REA1023591

Proprietati similare

Bucuresti, Aviatiei

Apartament, 3 camere

113 mp 9 2019

395.000 EUR

Detalii

Bucuresti, Herastrau

Apartament, 3 camere

103.5 mp 7 2022

395.000 EUR

Detalii

Bucuresti, Herastrau

Apartament, 3 camere

100 mp 1 2009

369.900 EUR

Detalii

Bucuresti, Herastrau

Apartament, 3 camere

89.6 mp P 2009

370.000 EUR

Detalii

Bucuresti, Aviatiei

Apartament, 3 camere

122.21 mp 11 2026

417.000 EUR

Detalii

Bucuresti, Herastrau

Apartament, 3 camere

95 mp 5 2008

360.000 EUR

Detalii

Bucuresti, Floreasca

3 camere cu loc parcare subteran inclus

67.14 mp 8 2025

399.000 EUR

Detalii
Exclusiv Discount

Bucuresti, Floreasca

3 camere cu loc parcare subteran inclus

96 mp 6 2024

400.000 EUR

Detalii
Apartamente 3 camere vandute in Aviatiei, Bucuresti Apartamente 3 camere de vanzare in Aviatiei, Bucuresti

Afla primul de cele mai bune oferte
inainte sa ajunga pe piata

Aboneaza-te la newsletter

Aboneaza-te la notificari