Baneasa 4 camere 146 mp P 2008

Apartamentul propus spre achizitionare a fost preluat si fotografiat, de catre un broker al SVN Romania, una dintre cele mai mari companii de consultanta imobiliara, ce face parte din grupul SVN, brand recunoscut, la nivel mondial, pentru calitatea serviciilor imobiliare oferite.

SVN Romania va propune spre achizitie un apartament modern, finisat si mobilat conform tendintelor actuale, care nu mai necesita absolut nicio investitie. Locuinta este ideala pentru familii.

LOCALIZARE
Acest imobil este situat in cartierul Baneasa, fiind pozitionat in imediata apropiere a Petrom City, si a Scolii Gimnaziale Genesis.

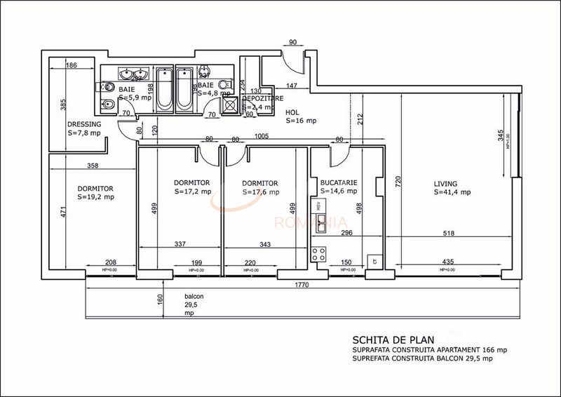
DATE TEHNICE
Proprietatea este dispusa pe 4 camere, dupa cum urmeaza:
- Holul de acces de 16 mp;
- Livingul, are o suprafata generoasa de 41,4mp ce detine suprafata vitrata mare care are deschidere la terasa de 29,5 mp;
- Bucataria, cu suprafata generoasa 14,6 mp ce are deschidere la terasa;
- Dormitorul matrimonial in suprafata generoasa 19,2 mp acesta beneficiaza de un dressing de 7,8 mp, are acess la o baie de 5,9 mp, iar acesta la randul lui are deschidere la terasa;
- Al doilea dormitor are o suprafata de 17,6 mp;
- Al treilea dormitor are o suprafata de 17,2 mp;
- Baia matrimoniala de 5,9 mp aceasta fiind dotata cu aerisire artificaila;
- A doua baie are 4,8 mp, acesta la randul ar aerisire artificiala.

FINISAJE
Imobilul detine finisaje inalte, acesta nemainecesitand imbunatatiri.

DOTARI
- Centrala termica;
- Tamplarie PVC, cu geam termopan;
- Usa metalica;
- Aer conditionat;

AVANTAJE
- Zona linistita ferita de zgomot;
- Loc de joaca pentru copii in complex;
- Rulouri de aluminiu, electrice la ferestre;
- Piscina si sala de fitness pentru locatarii complexului;

IMPREJURIMI
- Supermarket LIDL se afla la aproximativ 5 minute pietonal (550 m);
- Scoala Genesis se afla la aproximativ 8 minute pietonal (850 m)
- Scoala Gimnaziala Nicolae Grigorescu se afla la circa 18 minute pietonal si 5 minute cu masina (1,6 km);
- Casa Presei Libere si parcu Regele MIhai I (Herastrau) se afla la circa 7 minute de mers cu masina (3,1 km)
- Baneasa Shopping City se afla la aproximativ 10 minute distanta cu masina (4,7 km)

Apartamentul este situat intr-o zona de blocuri, accesul fiind unul facil.

OBSERVATII
- Tranzactionarea proprietatii se va face cu mobilierul aferent prezentei oferte.
- Certificat Energetic: Nu este disponibil. Acesta va fi disponibil la momentul vanzarii.
- Zona rezidentiala de interes inalt;
- Se accepta achizitionarea prin accesarea unui credit bancar;

SVN Romania, in calitate de companie imobiliara, care promoveaza acest imobil, incearca sa ofere detalii tehnice, in raport cu situatia reala a proprietatii prezentate, cu amendamentul ca acestea nu constituie sau nu fac parte dintr-o oferta aferenta unui contract.
Datele enumerate in aceasta specificatie, au fost preluate verbal, ca ghid informativ, pentru potentialii cumparatori, in momentul preluarii spre promovare, a imobilului mai sus prezentat, de la apartinatorul de drept, acestea nefiind verificate in amanunt, de noi, pentru a va oferi o garantie. Astfel, toata documentatia va fi verificata, integral, in momentul in care se solicita actele proprietatii, ca si pas premergator contractului de vanzare - cumparare, in cazul in care exista un interes pentru acest imobil.
Cand alegeti SVN determinati mobilizarea intregii organizatii de experti SVN si a retelei noastre de incredere, in sensul actiunii in numele dumneavoastra. Aceasta Retea de Valori Comune reprezinta elementul distinctiv al SVN .
Daca aveti nevoie de clarificari sau informatii suplimentare, broker-ul care administreaza aceasta oferta, va poate oferi detalii complete.
Nota: Structura acestei prezentari si informatiile mai sus detaliate, nu pot fi preluate, fara acordul scris al SVN Romania.

An constructie 2008

Suprafata construita 204 mp

Suprafata utila 146 mp

Suprafata terasa 30

Regim Inaltime P / 4

Etaj P

Nr. camere 4 camere

Nr. bai 2

Nr. balcoane 2 balcoane

Confort 1

Compartimentare Decomandat

Tip constructie In bloc

Status constructie Finalizat

Disponibila incepand cu 2024-03-08

Judet Bucuresti

Oras/ Sector Sector 1

Zona Baneasa

Gps lat 44.491842

Gps lng 26.068271

Detector de gaze

Internet prin cablu

Cablu TV

Supraveghere video

Interfon

Curent electric

Supraveghere 24/7

Geamuri termopan

Repartitoare

Parchet

Apometre

Gresie

Faianta

Gaz

Incalzire proprie

Mobilat

Aer conditionat

Bucatarie mobilata

Boxa

Telefon

4 Camere Petrom City Baneasa

Proprietate vanduta

Ai o proprietate similara? Vinde-o cu noi.
Vinde apartament

Cod: REA1003745

Proprietati similare

Bucuresti, Baneasa

Apartament, 4 camere

153 mp 9 2020

399.900 EUR

Detalii

Bucuresti, Baneasa

Apartament, 4 camere

200 mp 5 2008

369.900 EUR

Detalii

Bucuresti, Baneasa, Sisesti

Apartament, 4 camere

145 mp 3 2021

349.500 EUR

Detalii

Bucuresti, Bucurestii Noi

4 camere cu loc parcare subteran inclus

137 mp 1 2024

349.900 EUR

Detalii

Bucuresti, Bucurestii Noi

4 camere cu loc parcare exterior inclus

125 mp P 2024

349.900 EUR

Detalii

Bucuresti, Baneasa

Apartament, 4 camere

87 mp P 2015

398.900 EUR

Detalii

Bucuresti, Aviatiei

Apartament, 4 camere

157.4 mp 1 2024

360.000 EUR

Detalii

Bucuresti, Aviatiei

Apartament, 4 camere

156.95 mp 1 2024

380.000 EUR

Detalii
Apartamente 4 camere vandute in Baneasa, Bucuresti Apartamente 4 camere de vanzare in Baneasa, Bucuresti

Afla primul de cele mai bune oferte
inainte sa ajunga pe piata

Aboneaza-te la newsletter

Aboneaza-te la notificari