4 camere cu loc parcare exterior inclus, Bucuresti / Baneasa
SVN Romania va propune spre achizitie un apartament de 4 camere modern si spatios, cu un loc de parcare inclus. Locuinta este ideala pentru o familie.
LOCALIZARE
Acest imobil este situat in cadrul complexului Greenfield, fiind pozitionat in imediata apropiere a Padurii Baneasa si a Gradinii Zoologice.
DATE TEHNICE
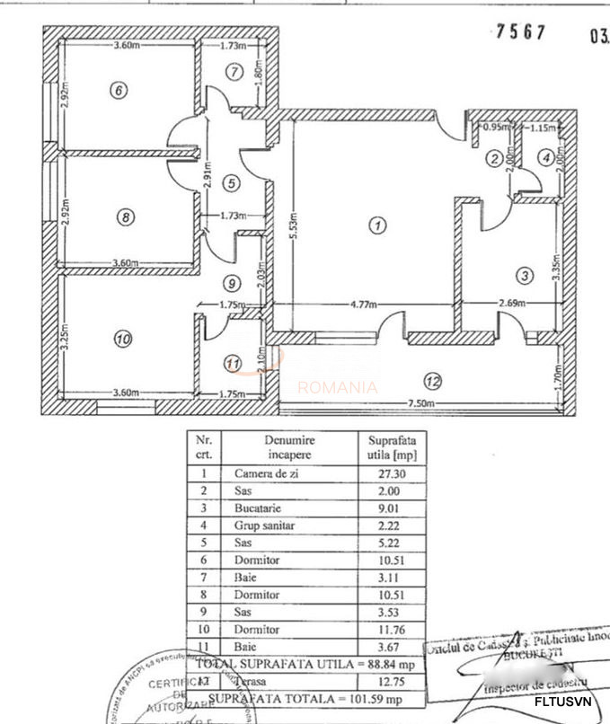
Proprietatea este dispusa pe 2 camere, dupa cum urmeaza:
- Livingul are o suprafata generoasa de 27 mp, care are deschidere la o tereasa de 12,75 mp;
- Bucataria are o suprafata 9 mp, aceasta avand deschidere catre aceasi tereasa;
- Dormitorul matrimonial cu o suprafata de 11,76 mp beneficiaza de suprafata vitrata mare si un hol de 3,53 mp prevazut cu un dresing spatios;
- Al doilea dormitor de 10.51 mp, dotat cu dresing pe tot peretele usii, cu fereastra generoasa;
- Al treilea dormitor cu suprafata de 10,51 mp fiind amenajat similar cu cel de al doilea;
- Baia matrimoniala in suprafata 3,67 mp, este dotata cu cada si beneficiaza de aerisire naturala;
- Holul de 5,22 mp ce separa zona de zi de dormitor si bai;
- A doua baie de 3,11 mp aceasta fiind dotata cu cabina de dus.
- Grup sanitar de 2,22 mp.
FINISAJE
Imobilul detine finisaje de calitate inalta, acesta nemainecesitand imbunatatiri.
DOTARI
- Centrala termica;
- Incalzire in pardoseala;
- Aer conditionat;
- Tamplarie PVC, cu geam termopan;
- Usi interior de lemn;
- Pardoseli de parchet si gresie;
- Usa metalica.
AVANTAJE
- Terasa de 13 mp confera saptiul de relaxare ideal;
- Loc de parcare;
- Spatii de depozitare numeroase si generoase;
- Localizat la padurea Baneasa, acest complex beneficiaza de aer curat si liniste;
- In proximitate se afla patru unitati de invatamant particulare: Avenor College (chiar la liziera Padurii Baneasa), Scoala Americana, Liceul Francez si Scoala Germana.
- Servicii de paza 24/7;
- Comunitate tanara.
IMPREJURIMI
- Apartamentul este situat intr-o zona de blocuri, accesul fiind unul facil.
- Accesul auto, pana la mall Baneasa, se poate face in circa 12 minute. Pana la zona de centru a orasului se fac aproximativ 25 de minute iar pana la Aeroportul Henri Coanda se poate ajunge in circa 12 minute.
OBSERVATII
- Tranzactionarea proprietatii se va face partial cu mobilierul aferent prezentei oferte.
- Certificat Eergetic: Clasa A
- Zona rezidentiala de interes inalt;
- Se accepta achizitionarea prin accesarea unui credit bancar sau surse proprii.
SVN Romania, in calitate de companie imobiliara, care promoveaza acest imobil, incearca sa ofere detalii tehnice, in raport cu situatia reala a proprietatii prezentate, cu amendamentul ca acestea nu constituie sau nu fac parte dintr-o oferta aferenta unui contract.
Datele enumerate in aceasta specificatie, au fost preluate verbal, ca ghid informativ, pentru potentialii cumparatori, in momentul preluarii spre promovare, a imobilului mai sus prezentat, de la apartinatorul de drept, acestea nefiind verificate in amanunt, de noi, pentru a va oferi o garantie. Astfel, toata documentatia va fi verificata, integral, in momentul in care se solicita actele proprietatii, ca si pas premergator contractului de vanzare - cumparare, in cazul in care exista un interes pentru acest imobil.
Cand alegeti SVN determinati mobilizarea intregii organizatii de experti SVN si a retelei noastre de incredere, in sensul actiunii in numele dumneavoastra. Aceasta Retea de Valori Comune reprezinta elementul distinctiv al SVN .
Daca aveti nevoie de clarificari sau informatii suplimentare, broker-ul care administreaza aceasta oferta, va poate oferi detalii complete.
Nota: Structura acestei prezentari si informatiile mai sus detaliate, nu pot fi preluate, fara acordul scris al SVN Romania.
Atribute
An constructie 2017
Suprafata construita 101.6 mp
Suprafata utila 90 mp
Suprafata terasa 12.75 mp
Regim Inaltime 3 / 4
Etaj 3
Nr. camere 4 camere
Nr. bai 3
Nr. balcoane 0 balcoane
Confort 1
Compartimentare Decomandat
Tip constructie In bloc
Status constructie Finalizat
Disponibila incepand cu 2021-11-23
Judet Bucuresti
Oras/ Sector Sector 1
Zona Baneasa
Gps lat 44.533487
Gps lng 26.094591
Nr. terase 1
Clasa energetica 1
Consum energie primara 125.45
Indice consum co2 28.17
Facilitati
Supraveghere 24/7
Detector de gaze
Interfon
Curent electric
Supraveghere video
Internet prin fibra optica
Cablu TV
Geamuri termopan
Repartitoare
Parchet
Apometre
Gresie
Telefon
Faianta
Gaz
Loc parcare exterior
Incalzire proprie
Mobilat
Aer conditionat
Bucatarie mobilata
Lift
4 Camere Greenfield Padurea Baneasa Loc de Parcare
Proprietate vanduta
Ai o proprietate similara? Vinde-o cu noi.
  Vinde apartament  
 
  
  
  
  
  
  
  
  
  
  
  
  
  
  
  
  
  
  
  
  
   
   
   
   
   
  
  
   
   
   
   
   
  
  
   
   
   
   
   
  
  
   
   
   
   
   
  
  
   
   
   
   
   
  
  
   
   
   
   
   
  
  
   
   
   
   
   
  
  
   
   
   
   
  