Baneasa 4 camere 113 mp 5 2010

SVN Residentialist va propune spre vanzare un apartament cu 4 camere, cu vedere panoramica superba catre lacul Grivita, situat la etajul 5 din 5 al unui imobil boutique cu doar 17 apartamente, dotat cu lift. Proprietatea impresioneaza prin spatiu, luminozitate si compartimentare eficienta, fiind ideala pentru o familie care cauta confort si intimitate.

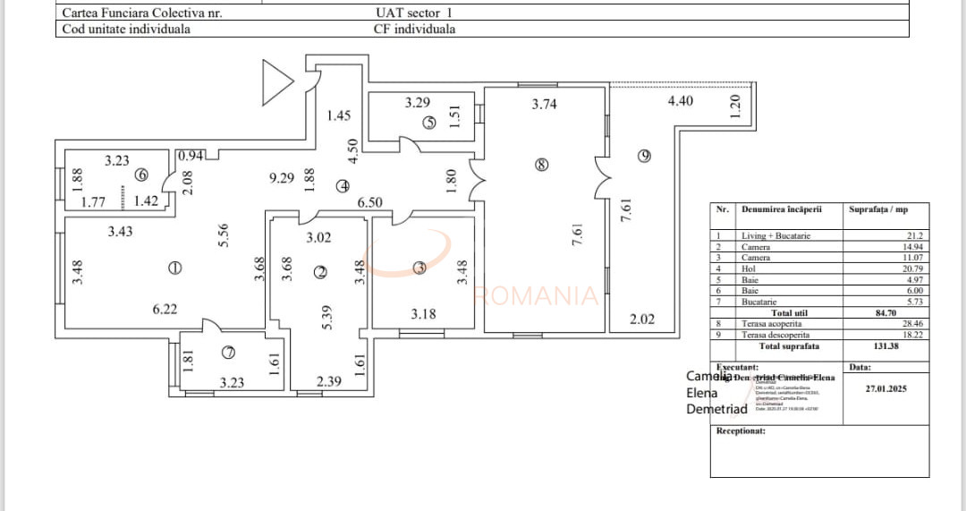
Apartamentul are o suprafata utila totala de 131 mp si este compus dintr-un living generos, doua dormitoare, doua bai, o bucatarie inchisa cu usa de sticla si deschidere catre living, precum si un hol amplu. Livingul este echipat cu sistem Home Cinema 5.1, video proiector si ecran retractabil cu latimea de 3 metri, oferind un spatiu ideal pentru relaxare si entertainment.

Un element distinctiv al proprietatii il reprezinta terasa acoperita de 28 mp, complet inchisa si incalzita cu calorifere, utilizata in prezent ca a patra camera. In completare, apartamentul beneficiaza de o terasa deschisa de 18 mp, cu magazie de depozitare, perfecta pentru zona de relaxare in aer liber.

Apartamentul are expunere sud, est si nord, ceea ce asigura lumina naturala pe tot parcursul zilei si o panorama deosebita. Este dotat cu centrala termica proprie, aer conditionat de 24000 BTU, ferestre termopan PVC si rulouri exterioare. Tavanele inalte, multiplele spatii de depozitare, magazia de pe terasa, dulapul de depozitare de la subsol si spatiul de depozitare din pod completeaza functionalitatea acestei proprietati.

In pret este inclus un loc de parcare situat in incinta inchisa a imobilului. Apartamentul este spatios, luminos si bine intretinut, reprezentand o oportunitate rara pentru cei care isi doresc un camin cu vedere spectaculoasa si suprafete generoase.

An constructie 2010

Suprafata construita 131 mp

Suprafata utila 113 mp

Suprafata terasa 18 mp

Regim Inaltime 5 / 5

Etaj 5

Nr. camere 4 camere

Nr. bai 2

Nr. balcoane 0 balcoane

Confort 1

Compartimentare Semidecomandat

Tip constructie In bloc

Status constructie Finalizat

Disponibila incepand cu 2026-01-23

Judet Bucuresti

Oras/ Sector Sector 1

Zona Baneasa

Gps lat 44.504061

Gps lng 26.043350

Nr. terase 1

Internet prin fibra optica

Curent electric

Cablu TV

Internet Wireless

Interfon

Detector de gaze

Supraveghere 24/7

Geamuri termopan

Repartitoare

Balcon inchis

Parchet

Apometre

Gresie

Faianta

Gaz

Loc parcare exterior

Incalzire proprie

Calorifere

WC serviciu

Mobilat

Aer conditionat

Bucatarie mobilata

Bloc reabiliat termic

Lift

Valoare proprietate (€)

Perioada (ani)

Procent avans (41.700 €)


Suma creditata 236.300

Dobanda 4.9%

Rata lunara 5.842 lei

Broker Imobiliar

Dan Ghita , Consultant imobiliar Vezi toate proprietatile

0317100200

Apartament 4 Camere I De Vanzare I Sisesti I Baneasa

Pret vanzare
278.000 €

Telefon Consultant imobiliar
0317100200

Cod: REA1026964

Proprietati similare

Bucuresti, Baneasa, Sisesti

Apartament, 4 camere

118.96 mp M 2026

300.000 EUR

Detalii

Bucuresti, Baneasa, Sisesti

Apartament, 4 camere

83 mp 1 2017

259.000 EUR

Detalii

Bucuresti, Bucurestii Noi

Apartament, 4 camere

91 mp 1 2018

255.000 EUR

Detalii

Bucuresti, Baneasa

Apartament, 4 camere

92.43 mp 2 1982

265.000 EUR

Detalii

Bucuresti, Bucurestii Noi

Apartament, 4 camere

92 mp P 2024

259.000 EUR

Detalii

Bucuresti, Bucurestii Noi

Apartament, 4 camere

97.5 mp P 2024

260.000 EUR

Detalii

Bucuresti, Aviatiei

4 camere cu loc parcare exterior inclus

89 mp 1 1987

295.000 EUR

Detalii

Bucuresti, Aviatiei

Apartament, 4 camere

81 mp P 1987

270.000 EUR

Detalii
Apartamente 4 camere vandute in Baneasa, Bucuresti Apartamente 4 camere de vanzare in Baneasa, Bucuresti

Afla primul de cele mai bune oferte
inainte sa ajunga pe piata

Aboneaza-te la newsletter

Aboneaza-te la notificari