Baneasa 5 camere 155.66 mp 2 2021

SVN ROMANIA are placerea sa va prezinte un apartament duplex exclusivist de 212 mp, situat intr-un bloc boutique la etajele 2 si 3, langa Padurea Baneasa. Aceasta proprietate fabuloasa se remarca prin eleganta, functionalitate si un design armonios, indeplinind toate standardele noastre de lux si confort.

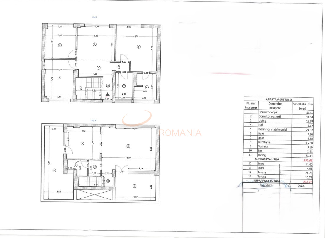
Cu o compartimentare inteligenta, apartamentul ofera 5 camere, incluzand un master bedroom spatios de 24 mp cu baie proprie, inca 2 dormitoare, o camera de relaxare, un living generos si o bucatarie inchisa si spatioasa, perfecta pentru o familie numeroasa. De asemenea, duplexul dispune de 3 bai.

Imobilul se desfasoara pe doua nivele si include anexe special amenajate pentru uscatorie si depozitare. Terasele sunt complet utilate si mobilate, iar una dintre ele este dotata cu o sauna privata, oferind un spatiu ideal pentru relaxare.

Zona este extrem de linistita si insorita, avand in apropiere un loc de joaca pentru copii, amenajat de comunitatea locala si Padurea Baneasa. Proprietatea beneficiaza de 2 locuri de parcare incluse in pret.

Atat suprafata impresionanta cat si locatia avantajoasa recomanda aceasta proprietate drept o buna investitie.

Pentru mai multe detalii si vizionari, nu ezitati sa ne contactati.

An constructie 2021

Suprafata construita 212.24 mp

Suprafata utila 155.66 mp

Suprafata terasa 40.07

Regim Inaltime 2 / 3

Etaj 2

Nr. camere 5 camere

Nr. bai 1

Nr. balcoane 0 balcoane

Confort 1

Compartimentare Decomandat

Tip constructie In bloc

Status constructie Finalizat

Disponibila incepand cu 2024-07-02

Judet Bucuresti

Oras/ Sector Sector 1

Zona Baneasa

Gps lat 44.508648

Gps lng 26.047286

Nr. terase 2

Supraveghere video

Supraveghere 24/7

Internet prin fibra optica

Internet Wireless

Interfon

Geamuri termopan

Parchet

Gresie

Telefon

Faianta

Loc parcare exterior

Incalzire proprie

Incalzire prin pardoseala

WC serviciu

Mobilat

Aer conditionat

Bucatarie mobilata

Lift

Valoare proprietate (€)

Perioada (ani)

Procent avans (108.000 €)


Suma creditata 612.000

Dobanda 4.9%

Rata lunara 15.131 lei

Broker Imobiliar

Raluca Dobrisan , Consultant imobiliar Vezi toate proprietatile

0317100200

Duplex Padurea Baneasa l terasa 40mp

Pret vanzare
720.000 €

Telefon Consultant imobiliar
0317100200

Cod: REA1020230

Proprietati similare

Exclusiv Discount

Bucuresti, Herastrau

Apartament, 5 camere

199 mp 8 2009

669.900 EUR

Detalii

Bucuresti, Herastrau

5 camere cu loc parcare subteran inclus

202 mp 3 2007

720.000 EUR

Detalii

Bucuresti, Herastrau

5 camere cu loc parcare subteran inclus

152.31 mp 2 2007

650.000 EUR

Detalii

Bucuresti, Pipera, Iancu Nicolae

5 camere cu loc parcare subteran inclus

164 mp 3 2024

785.000 EUR

Detalii

Bucuresti, Aviatiei

Apartament, 5 camere

150 mp P 2022

689.000 EUR

Detalii

Bucuresti, Aviatiei

Apartament, 5 camere

150 mp P 2021

649.000 EUR

Detalii

Bucuresti, Dorobanti, Capitale

Apartament, 5 camere

221 mp P 1941

740.000 EUR

Detalii

Bucuresti, Pipera

Apartament, 5 camere

221 mp 4 2024

698.698 EUR

Detalii
Apartamente 5 camere vandute in Baneasa, Bucuresti Apartamente 5 camere de vanzare in Baneasa, Bucuresti

Afla primul de cele mai bune oferte
inainte sa ajunga pe piata

Aboneaza-te la newsletter

Aboneaza-te la notificari