Calea Victoriei 7 camere 244 mp 5 1996

SVN Residentialist va propune spre vanzare o proprietate premium - un apartament de 7 camere in cartieru Victoriei.

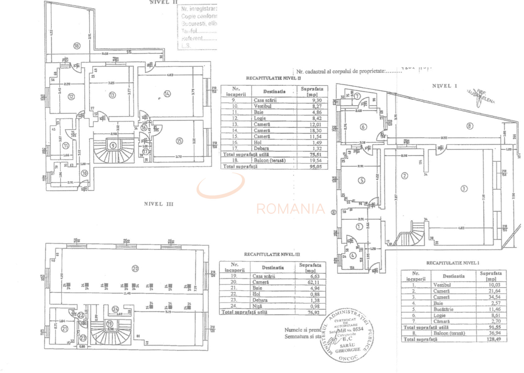
Apartamentul are o suprafata utila totala de 300 mp,din care 244 mp suprafata utila si 2 terase generoase de 20 si respectiv 36 mp. Este situat la etajele 5,6 si 7 al cladirii, conexiunea facandu-se printr-o scara interioara, avand vedere mixta.

Apartamentul a fost renovat integral in anul 2023, instalatiile electrice si sanitare au fost schimbate iar finisajele de care dispune apartamentul fiind de cea mai inalta calitate.

De asemenea, dispune de centrala proprie, marca Buderus iar ferestrele sunt din tamplarie PVC Salamander, tripan cu 5 camere.

Anul constructiei imobilului este 1996, blocul avand o pozitie excelenta, la doar 3 minute de metroul Piata Victoriei.

Imobilul este reabilitat termic, astfel costurile de intretinere fiind foarte mici.

Apartamentul este o optiune excelenta atat pentru locuinta cat si pentru investitie.Pretul este 750. 000 euro negociabil cu loc de parcare suprateran, in curtea imobilul inclus (Nu ADP).

Pentru mai multe informatii, dar si pentru a programa o vizionare nu ezitati sa ma contactati!

An constructie 1996

Suprafata construita 300 mp

Suprafata utila 244 mp

Suprafata terasa 56

Regim Inaltime 5 / 9

Etaj 5

Nr. camere 7 camere

Nr. bai 3

Nr. balcoane 2 balcoane

Confort 1

Compartimentare Semidecomandat

Tip constructie In bloc

Status constructie Finalizat

Disponibila incepand cu 2024-03-02

Judet Bucuresti

Oras/ Sector Sector 1

Zona Calea Victoriei

Gps lat 44.449390

Gps lng 26.083004

Curent electric

Detector de gaze

Internet prin fibra optica

Supraveghere 24/7

Geamuri termopan

Parchet

Apometre

Gresie

Telefon

Loc parcare subteran

Lift

Interfon

Internet Wireless

Faianta

Calorifere

Incalzire proprie

WC serviciu

Aer conditionat

Bloc reabiliat termic

Valoare proprietate (€)

Perioada (ani)

Procent avans (112.500 €)


Suma creditata 637.500

Dobanda 4.9%

Rata lunara 15.761 lei

Broker Imobiliar

Anamaria Halasanu , Consultant imobiliar Vezi toate proprietatile

0317100200

Apartament premium Victoriei

Pret vanzare
750.000 €

Telefon Consultant imobiliar
0317100200

Cod: REA1017379

Proprietati similare

Bucuresti, Dorobanti, Capitale

Apartament, 7 camere

250 mp 1 1930

730.000 EUR

Detalii
Apartamente 7 camere vandute in Ultracentral, Bucuresti Apartamente 7 camere de vanzare in Ultracentral, Bucuresti

Afla primul de cele mai bune oferte
inainte sa ajunga pe piata

Aboneaza-te la newsletter

Aboneaza-te la notificari